20885
20885
20885
20885
20885
20885

Jeux de plans - Sets of plans
Prix régulier$1,740.00
/

Ce site est protégé par hCaptcha, et la Politique de confidentialité et les Conditions de service de hCaptcha s’appliquent.

Description

"Cinéma maison au-dessus du garage Vestibule fermé"

Caractéristiques

Mesures : Impérial

Style d'architecture Européen Coût de construction 
Montant approximatif équivalent à celui d'un entrepreneur général (région de la Rive-Sud de Montréal) pour une construction clé en main sans terrain ni infrastructures.
435892 $
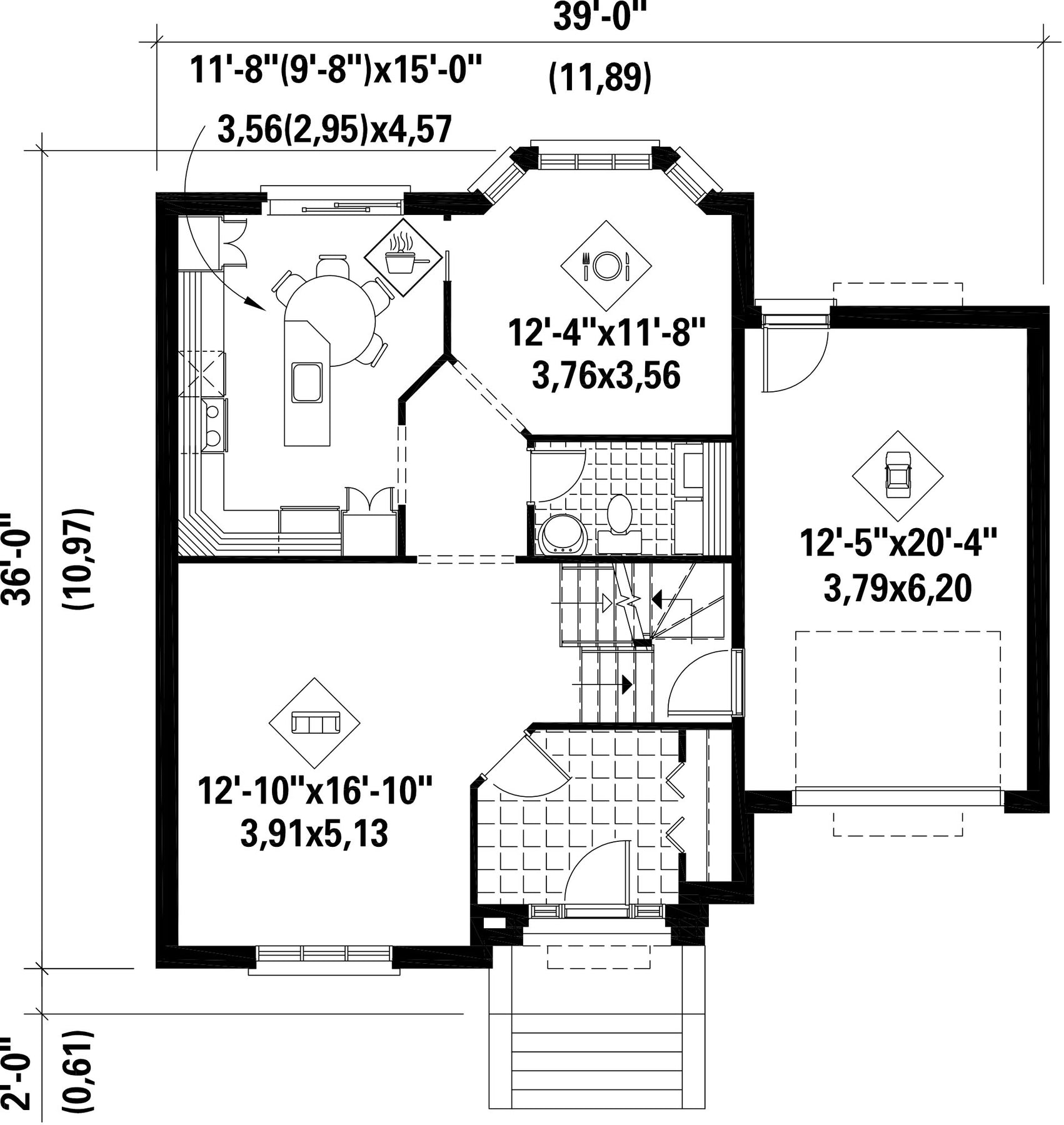
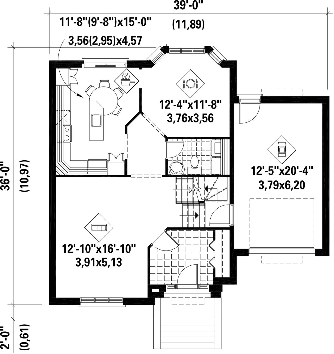
Façade 39 pi Surface habitable totale 2048 pi²
Profondeur 36 piNombre de salles de bain 1
Hauteur 36 pi 4 poNombre de chambres 4
Chambre des maîtres Penderie Chambre des maîtres - commentaires Chambre des maîtres avec penderie
Surface rez-de-chaussée 876 pi² Finition extérieure Brique + Pierre
Surface étage 1172 pi² Type de cuisine Coin repas + Comptoir repas + Forme en L + Salle à manger + Îlot
Surface garage 286 pi² Garage 1
Mur garage 8 piMur rez-de-chaussée 8 pi
Mur étage 8 piInclinaison toit avant/arrière 12/12
Inclinaison toit gauche/droite 12/12
Style d'architecture Européen
Coût de construction 
Montant approximatif équivalent à celui d'un entrepreneur général (région de la Rive-Sud de Montréal) pour une construction clé en main sans terrain ni infrastructures.
435892 $
Façade 39 pi
Surface habitable totale 2048 pi²
Profondeur 36 pi
Nombre de salles de bain 1
Hauteur 36 pi 4 po
Nombre de chambres 4
Chambre des maîtres Penderie
Chambre des maîtres - commentaires Chambre des maîtres avec penderie
Surface rez-de-chaussée 876 pi²
Finition extérieure Brique + Pierre
Surface étage 1172 pi²
Type de cuisine Coin repas + Comptoir repas + Forme en L + Salle à manger + Îlot
Surface garage 286 pi²
Garage 1
Mur garage 8 pi
Mur rez-de-chaussée 8 pi
Mur étage 8 pi
Inclinaison toit avant/arrière 12/12
Inclinaison toit gauche/droite 12/12

Ces plans de maison pourraient également vous intéresser


Vu récemment