20771
20771
20771
20771
20771
20771

Jeux de plans - Sets of plans
Prix régulier$2,140.00
/

Ce site est protégé par hCaptcha, et la Politique de confidentialité et les Conditions de service de hCaptcha s’appliquent.

Description

"Vestibule fermé Salle familiale abaissée avec foyer Plafond de 14'-2"" de haut dans le salon Chambre des maîtres avec penderie Salle de lavage au rez-de-chaussée"

Caractéristiques

Mesures : Impérial

Style d'architecture Européen Coût de construction 
Montant approximatif équivalent à celui d'un entrepreneur général (région de la Rive-Sud de Montréal) pour une construction clé en main sans terrain ni infrastructures.
556471 $
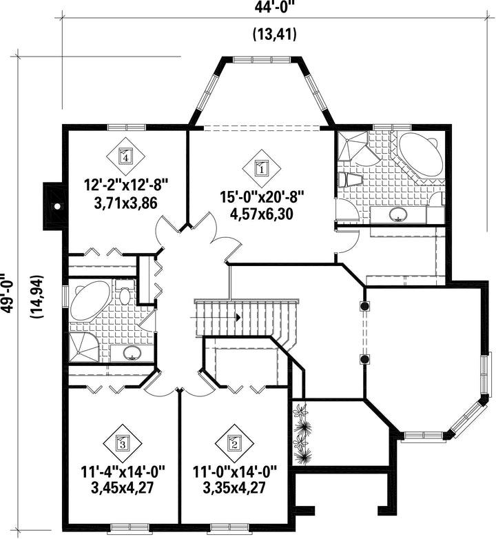
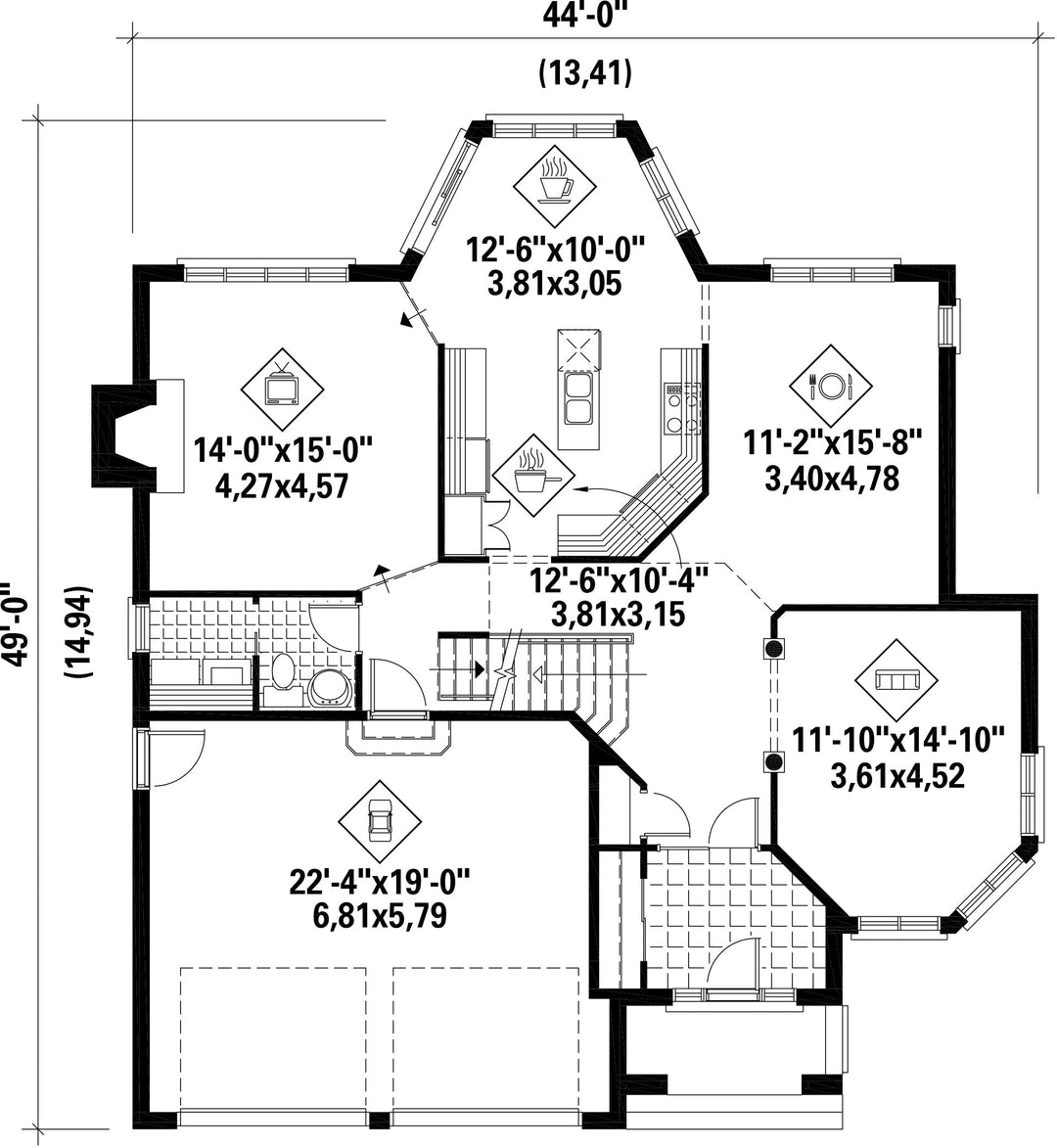
Façade 44 pi Surface habitable totale 2530 pi²
Profondeur 49 piNombre de salles de bain 2
Hauteur 33 pi 8 poNombre de chambres 4
Chambre des maîtres Bain podium + Douche + Lavabo simple + Penderie + Portes doubles + Toilettes Chambre des maîtres - commentaires Porte double
Surface rez-de-chaussée 1253 pi² Finition extérieure Aluminium + Brique + Pierre
Surface étage 1277 pi² Type de cuisine Coin repas + Forme en U + Laboratoire + Salle à manger + Îlot
Surface garage 451 pi² Garage 2
Mur garage 8 piMur rez-de-chaussée 8 pi
Mur étage 8 piInclinaison toit avant/arrière 10/12
Inclinaison toit gauche/droite 10/12
Style d'architecture Européen
Coût de construction 
Montant approximatif équivalent à celui d'un entrepreneur général (région de la Rive-Sud de Montréal) pour une construction clé en main sans terrain ni infrastructures.
556471 $
Façade 44 pi
Surface habitable totale 2530 pi²
Profondeur 49 pi
Nombre de salles de bain 2
Hauteur 33 pi 8 po
Nombre de chambres 4
Chambre des maîtres Bain podium + Douche + Lavabo simple + Penderie + Portes doubles + Toilettes
Chambre des maîtres - commentaires Porte double
Surface rez-de-chaussée 1253 pi²
Finition extérieure Aluminium + Brique + Pierre
Surface étage 1277 pi²
Type de cuisine Coin repas + Forme en U + Laboratoire + Salle à manger + Îlot
Surface garage 451 pi²
Garage 2
Mur garage 8 pi
Mur rez-de-chaussée 8 pi
Mur étage 8 pi
Inclinaison toit avant/arrière 10/12
Inclinaison toit gauche/droite 10/12

Ces plans de maison pourraient également vous intéresser


Vu récemment