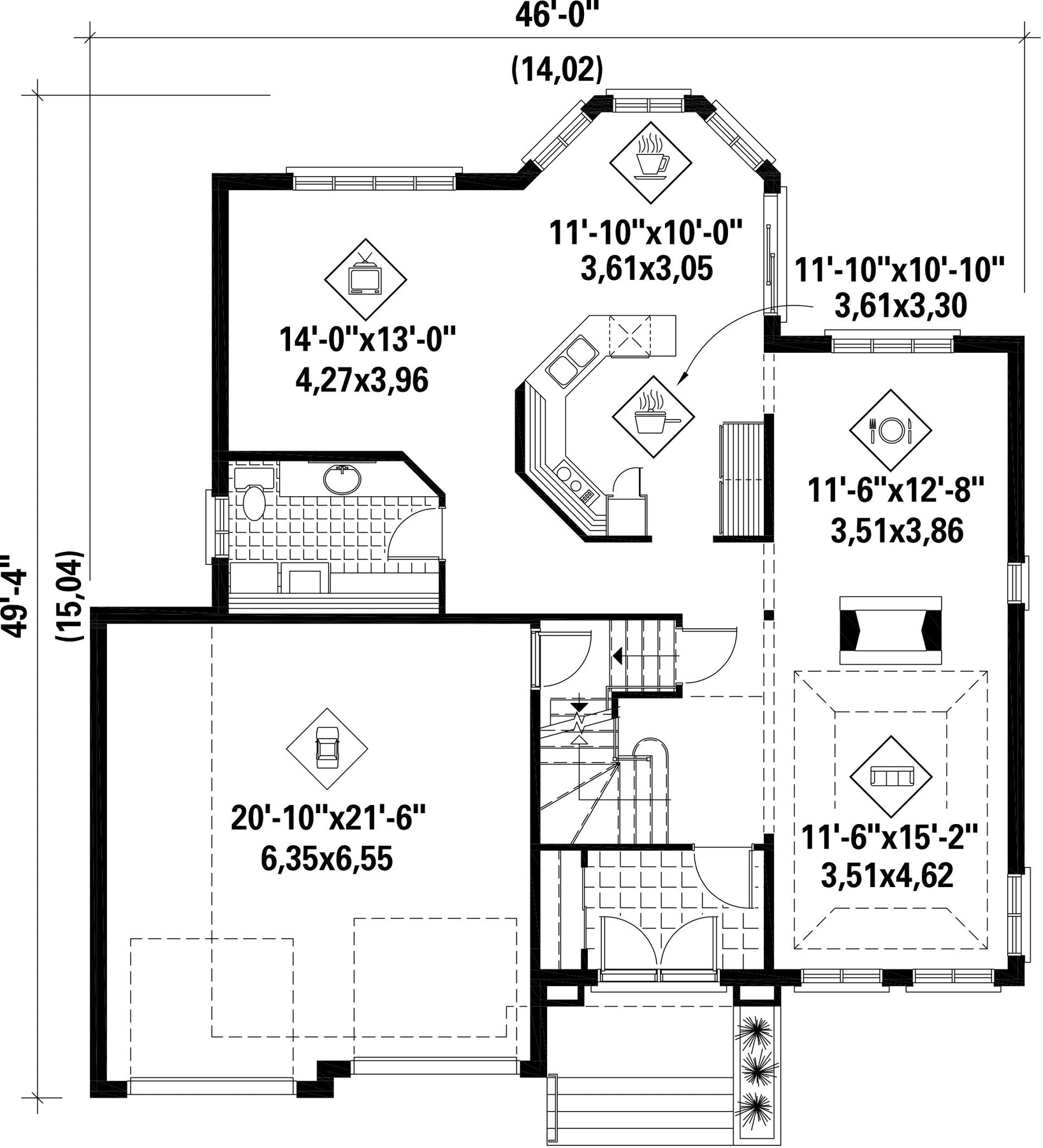
Description
    
    	"Vestibule fermé
Foyer à 2 faces
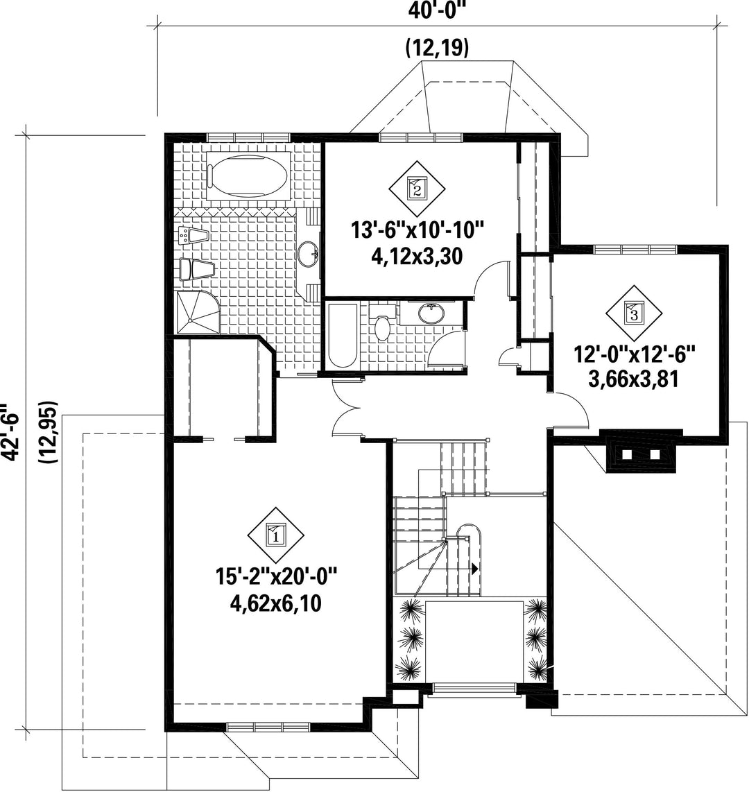
Vue sur le portique de l'étage
Chambre des maîtres avec penderie
Laveuse et sécheuse au rez-de-chaussée"
     
    
  
Caractéristiques
Mesures : Impérial| Style d'architecture | Européen | 
                        
                            Coût de construction 
                             
                                
                                Montant approximatif équivalent à celui d'un entrepreneur général (région de la Rive-Sud de Montréal) pour une construction clé en main sans terrain ni infrastructures.
                             
                        
                        
                     | 
                    600882 $ | 
|---|---|---|---|
| Façade | 46 pi | Surface habitable totale | 2582 pi² | 
| Profondeur | 45 pi 6 po | Nombre de salles de bain | 2 | 
| Hauteur | 38 pi 2 po | Nombre de chambres | 3 | 
| Chambre des maîtres | Bain podium + Douche + Lavabo simple + Penderie + Portes doubles + Toilettes | Chambre des maîtres - commentaires | Grande pièce | 
| Surface rez-de-chaussée | 1260 pi² | Finition extérieure | Agrégats + Pierre | 
| Surface étage | 1322 pi² | Type de cuisine | Coin repas + Forme en U + Salle à manger | 
| Surface garage | 505 pi² | Garage | 2 | 
| Mur garage | 8 pi | Mur rez-de-chaussée | 9 pi | 
| Mur étage | 8 pi | Inclinaison toit avant/arrière | 12/12 | 
| Inclinaison toit gauche/droite | 12/12 | 
| Style d'architecture | Européen | 
|---|---|
| 
                        
                            Coût de construction 
                             
                                
                                Montant approximatif équivalent à celui d'un entrepreneur général (région de la Rive-Sud de Montréal) pour une construction clé en main sans terrain ni infrastructures.
                             
                        
                        
                     | 
                    600882 $ | 
| Façade | 46 pi | 
| Surface habitable totale | 2582 pi² | 
| Profondeur | 45 pi 6 po | 
| Nombre de salles de bain | 2 | 
| Hauteur | 38 pi 2 po | 
| Nombre de chambres | 3 | 
| Chambre des maîtres | Bain podium + Douche + Lavabo simple + Penderie + Portes doubles + Toilettes | 
| Chambre des maîtres - commentaires | Grande pièce | 
| Surface rez-de-chaussée | 1260 pi² | 
| Finition extérieure | Agrégats + Pierre | 
| Surface étage | 1322 pi² | 
| Type de cuisine | Coin repas + Forme en U + Salle à manger | 
| Surface garage | 505 pi² | 
| Garage | 2 | 
| Mur garage | 8 pi | 
| Mur rez-de-chaussée | 9 pi | 
| Mur étage | 8 pi | 
| Inclinaison toit avant/arrière | 12/12 | 
| Inclinaison toit gauche/droite | 12/12 |