Description
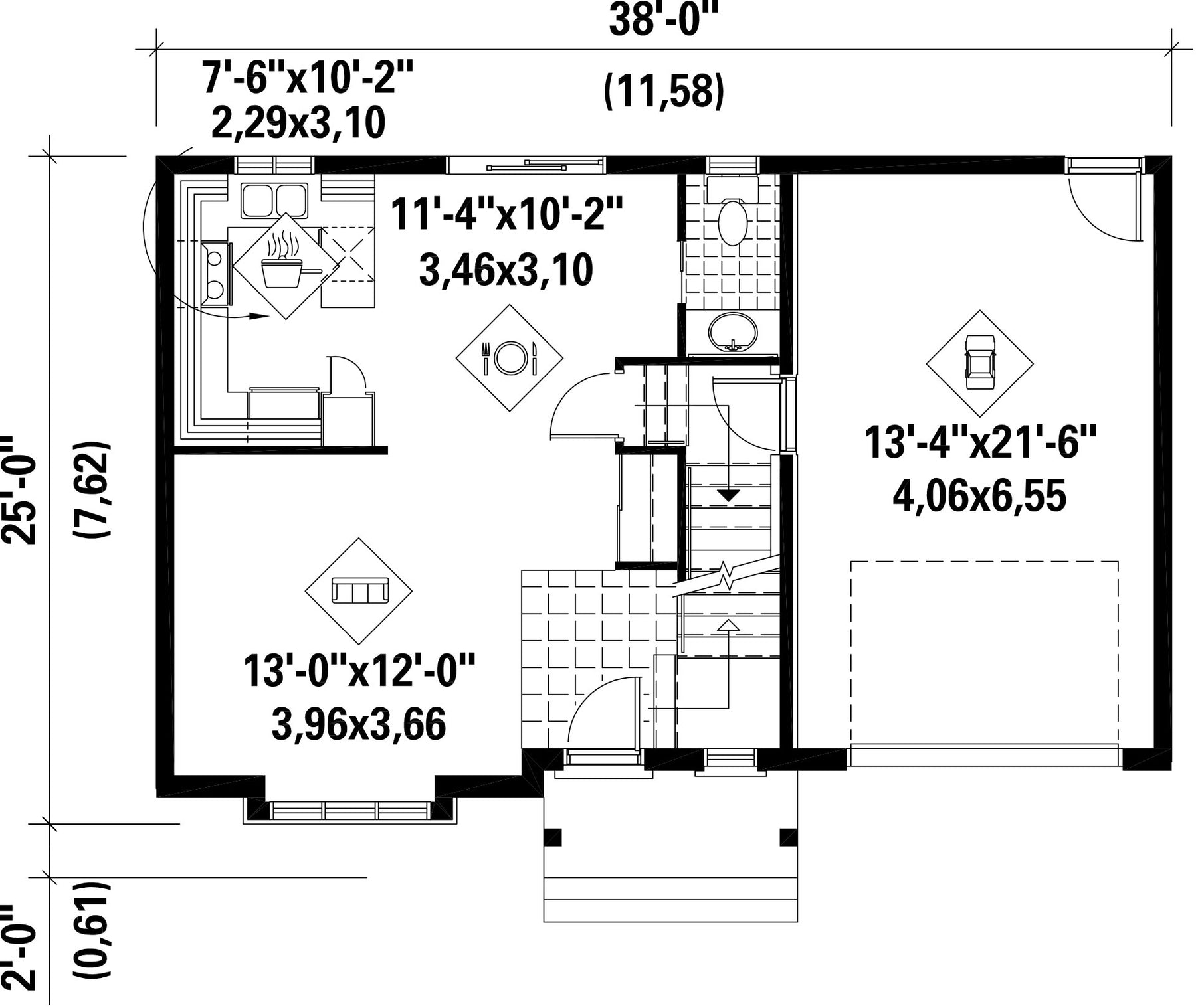
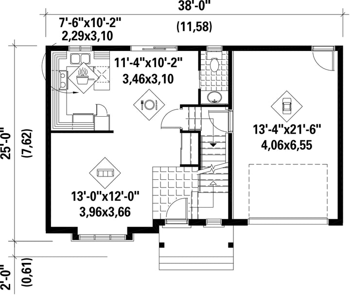
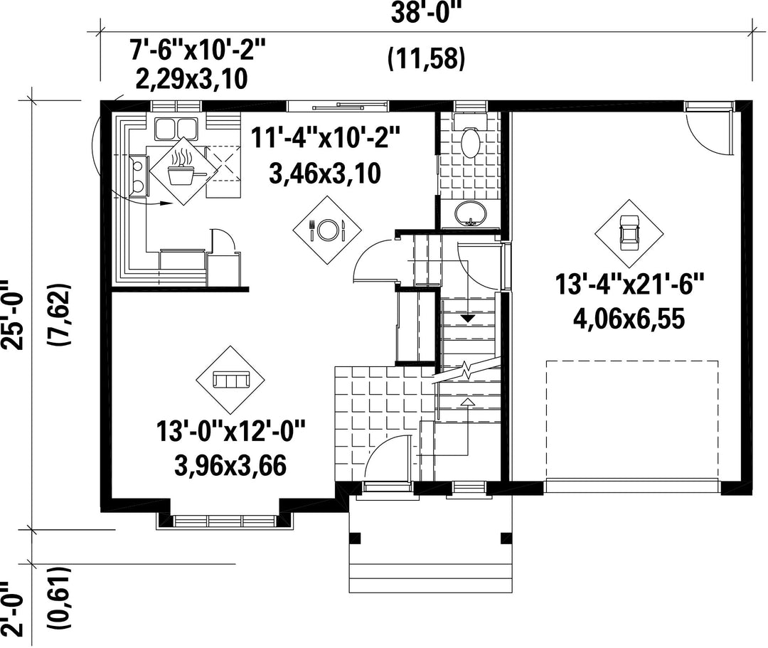
Cette maison à étage à la facture classique avec une façade en briques, des fenêtres à guillotine et des volets décoratifs, mesure 38 pieds de largeur et 25 pieds de profondeur, et possède une superficie habitable de 1 142 pieds carrés.
Possédant une superficie de 575 pieds carrés, le rez-de-chaussée compte un salon, une salle à manger, une cuisine en U, et une salle d’eau. La demeure dispose également d’un garage de 322 pieds carrés pouvant loger une voiture.
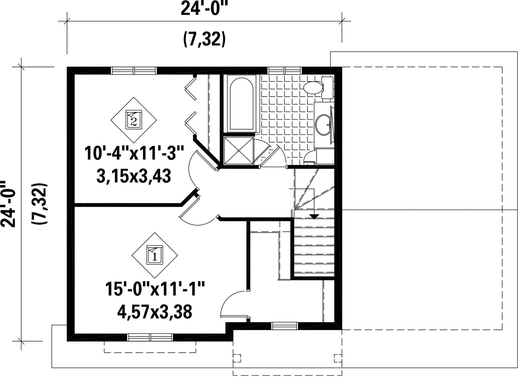
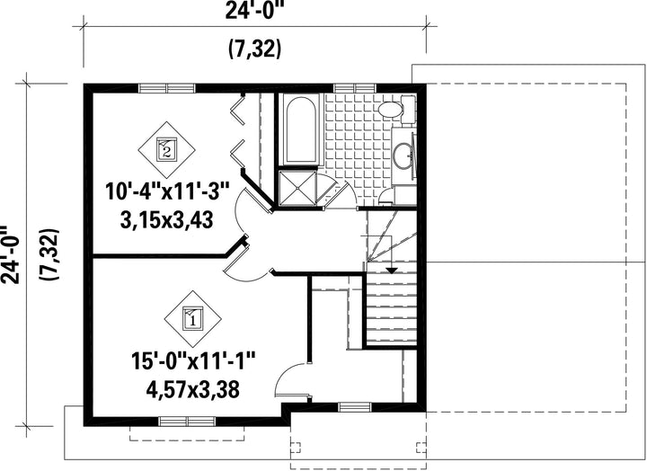
L’étage de 567 pieds carrés comprend une salle de bains et deux chambres dont une chambre principale aménagée avec une grande penderie.
Possédant une superficie de 575 pieds carrés, le rez-de-chaussée compte un salon, une salle à manger, une cuisine en U, et une salle d’eau. La demeure dispose également d’un garage de 322 pieds carrés pouvant loger une voiture.
L’étage de 567 pieds carrés comprend une salle de bains et deux chambres dont une chambre principale aménagée avec une grande penderie.
Caractéristiques
Mesures : Impérial| Style d'architecture | Européen |
Coût de construction
Montant approximatif équivalent à celui d'un entrepreneur général (région de la Rive-Sud de Montréal) pour une construction clé en main sans terrain ni infrastructures.
|
240468 $ |
|---|---|---|---|
| Façade | 38 pi | Surface habitable totale | 1142 pi² |
| Profondeur | 25 pi | Nombre de salles de bain | 1 |
| Hauteur | 28 pi 7 po | Nombre de chambres | 2 |
| Chambre des maîtres | Penderie | Chambre des maîtres - commentaires | Grande chambre |
| Surface rez-de-chaussée | 575 pi² | Finition extérieure | Aluminium + Brique |
| Surface étage | 567 pi² | Type de cuisine | Forme en U |
| Surface garage | 322 pi² | Garage | 1 |
| Mur garage | 8 pi | Mur rez-de-chaussée | 8 pi |
| Mur étage | 8 pi | Inclinaison toit avant/arrière | 12/12 |
| Inclinaison toit gauche/droite | 12/12 |
| Style d'architecture | Européen |
|---|---|
|
Coût de construction
Montant approximatif équivalent à celui d'un entrepreneur général (région de la Rive-Sud de Montréal) pour une construction clé en main sans terrain ni infrastructures.
|
240468 $ |
| Façade | 38 pi |
| Surface habitable totale | 1142 pi² |
| Profondeur | 25 pi |
| Nombre de salles de bain | 1 |
| Hauteur | 28 pi 7 po |
| Nombre de chambres | 2 |
| Chambre des maîtres | Penderie |
| Chambre des maîtres - commentaires | Grande chambre |
| Surface rez-de-chaussée | 575 pi² |
| Finition extérieure | Aluminium + Brique |
| Surface étage | 567 pi² |
| Type de cuisine | Forme en U |
| Surface garage | 322 pi² |
| Garage | 1 |
| Mur garage | 8 pi |
| Mur rez-de-chaussée | 8 pi |
| Mur étage | 8 pi |
| Inclinaison toit avant/arrière | 12/12 |
| Inclinaison toit gauche/droite | 12/12 |