Description
Cette prestigieuse maison à étage mesure 36 pieds de largeur sur 32 pieds de profondeur, et offre une surface habitable de 1 514 pieds carrés. Son entrée imposante, ses jeux de pignons, sa façade de pierres et de briques et ses détails architecturaux lui confèrent une apparence des plus élégantes.
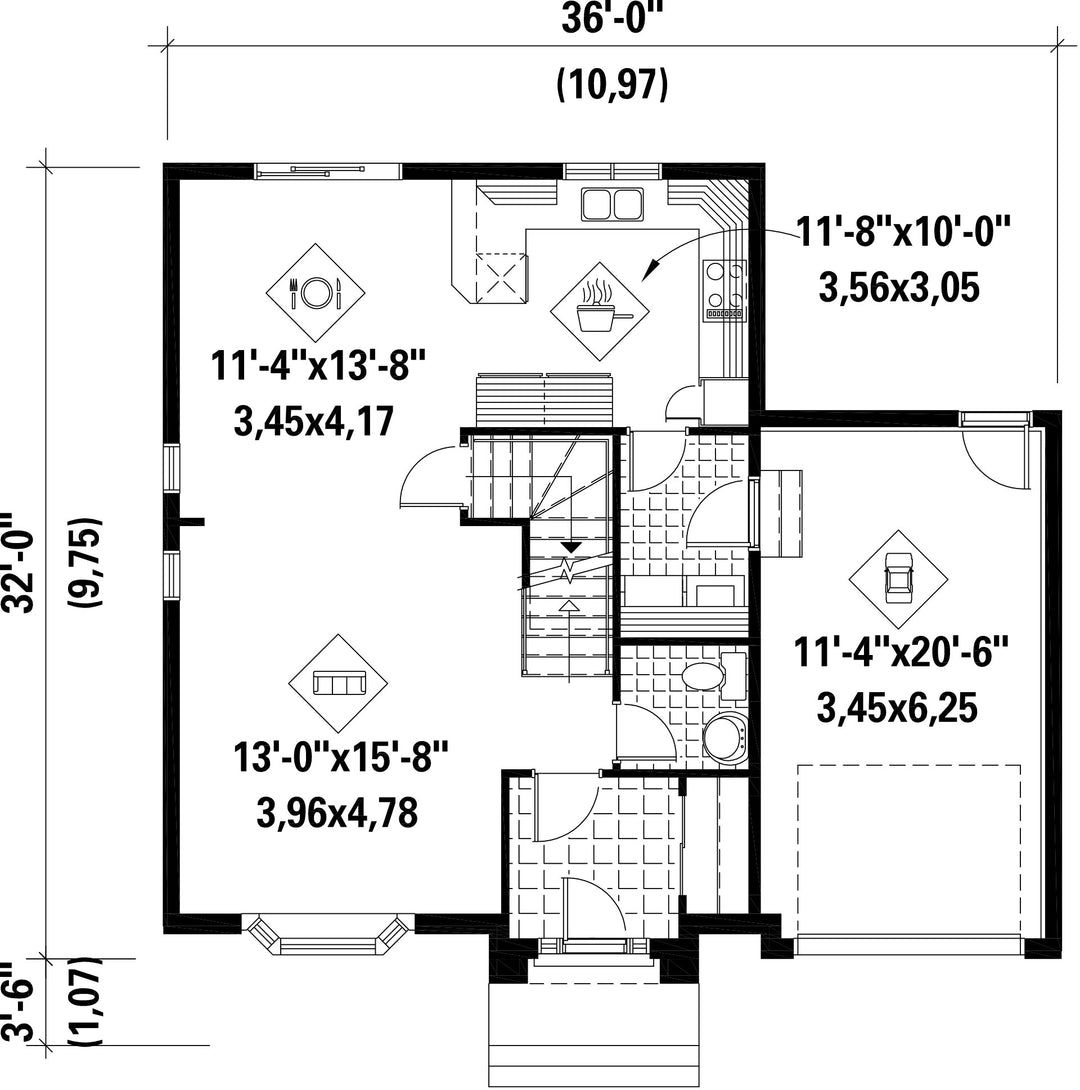
Disposant d’une superficie de 753 pieds carrés, le rez-de-chaussée compte un salon et une salle à manger à aire ouverte, une cuisine en U avec comptoir repas, une salle d’eau avec salle de lavage attenante, ainsi qu’un garage de 264 pieds carrés pouvant loger une voiture.
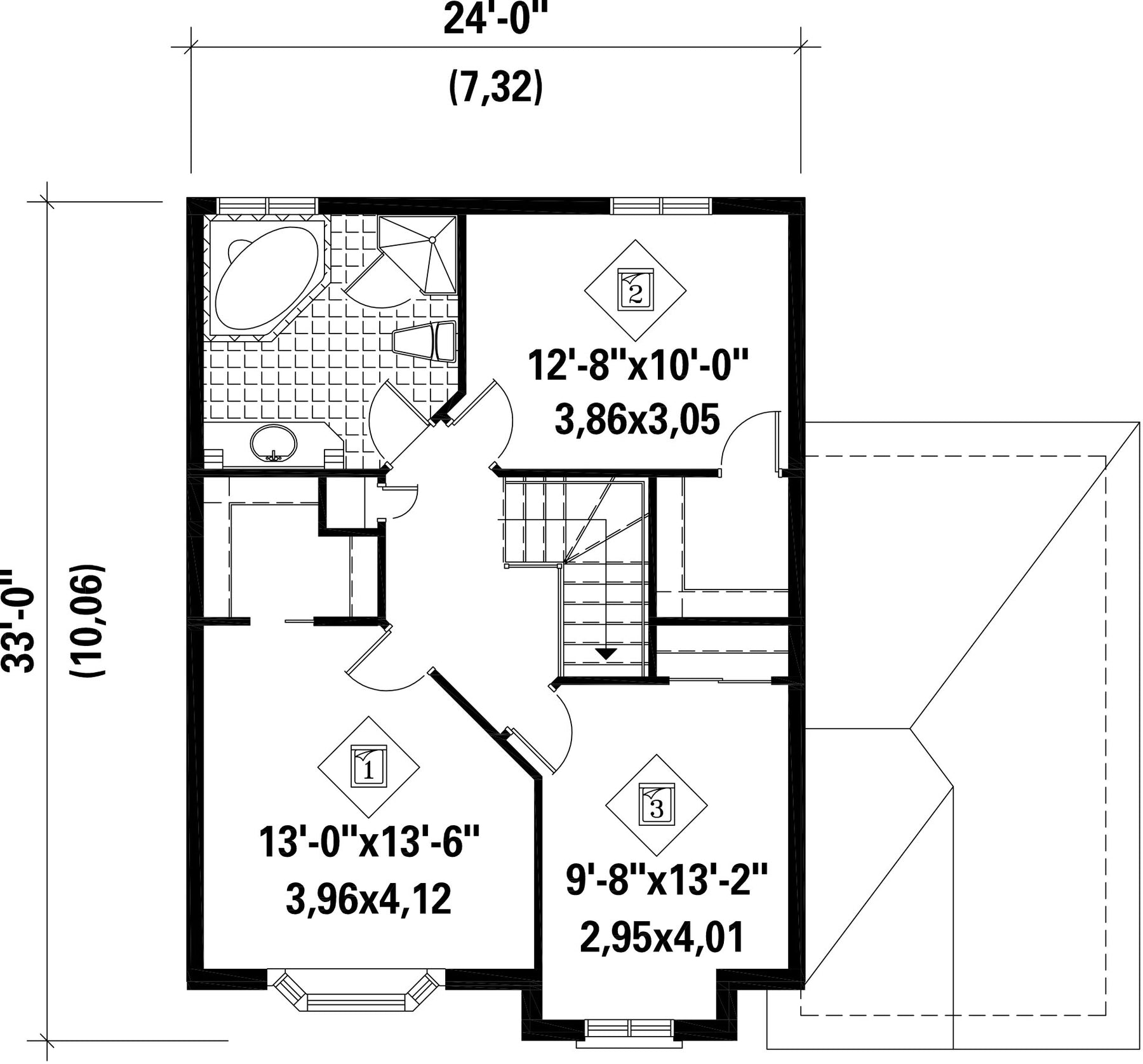
L’étage de 761 pieds carrés comprend une salle de bains familiale et trois chambres dont une chambre des maîtres disposant d’une vaste penderie.
Disposant d’une superficie de 753 pieds carrés, le rez-de-chaussée compte un salon et une salle à manger à aire ouverte, une cuisine en U avec comptoir repas, une salle d’eau avec salle de lavage attenante, ainsi qu’un garage de 264 pieds carrés pouvant loger une voiture.
L’étage de 761 pieds carrés comprend une salle de bains familiale et trois chambres dont une chambre des maîtres disposant d’une vaste penderie.
Caractéristiques
Mesures : Impérial| Style d'architecture | Européen |
Coût de construction
Montant approximatif équivalent à celui d'un entrepreneur général (région de la Rive-Sud de Montréal) pour une construction clé en main sans terrain ni infrastructures.
|
316301 $ |
|---|---|---|---|
| Façade | 36 pi | Surface habitable totale | 1514 pi² |
| Profondeur | 32 pi | Nombre de salles de bain | 1 |
| Hauteur | 37 pi 10 po | Nombre de chambres | 3 |
| Chambre des maîtres | Penderie | Chambre des maîtres - commentaires | Fenêtre en baie, avec tablette |
| Surface rez-de-chaussée | 753 pi² | Finition extérieure | Aluminium + Brique + Pierre |
| Surface étage | 761 pi² | Type de cuisine | Comptoir repas + Forme en U |
| Surface garage | 264 pi² | Garage | 1 |
| Mur garage | 8 pi | Mur rez-de-chaussée | 9 pi |
| Mur étage | 8 pi | Inclinaison toit avant/arrière | 12/12 |
| Inclinaison toit gauche/droite | 16/12 |
| Style d'architecture | Européen |
|---|---|
|
Coût de construction
Montant approximatif équivalent à celui d'un entrepreneur général (région de la Rive-Sud de Montréal) pour une construction clé en main sans terrain ni infrastructures.
|
316301 $ |
| Façade | 36 pi |
| Surface habitable totale | 1514 pi² |
| Profondeur | 32 pi |
| Nombre de salles de bain | 1 |
| Hauteur | 37 pi 10 po |
| Nombre de chambres | 3 |
| Chambre des maîtres | Penderie |
| Chambre des maîtres - commentaires | Fenêtre en baie, avec tablette |
| Surface rez-de-chaussée | 753 pi² |
| Finition extérieure | Aluminium + Brique + Pierre |
| Surface étage | 761 pi² |
| Type de cuisine | Comptoir repas + Forme en U |
| Surface garage | 264 pi² |
| Garage | 1 |
| Mur garage | 8 pi |
| Mur rez-de-chaussée | 9 pi |
| Mur étage | 8 pi |
| Inclinaison toit avant/arrière | 12/12 |
| Inclinaison toit gauche/droite | 16/12 |