20463
20463
20463
20463
20463
20463

Jeux de plans - Sets of plans
Prix régulier$2,440.00
/

Ce site est protégé par hCaptcha, et la Politique de confidentialité et les Conditions de service de hCaptcha s’appliquent.

Description

"Maison prestigieuse avec garage triple Salle de lecture avec tourelle Mezzanine avec vue sur le hall d'entrée et la salle familiale Plafond du rez-de-chaussée à 9'0"" Salle de lavage au rez-de-chaussée"

Caractéristiques

Mesures : Impérial

Style d'architecture Européen Coût de construction 
Montant approximatif équivalent à celui d'un entrepreneur général (région de la Rive-Sud de Montréal) pour une construction clé en main sans terrain ni infrastructures.
1006229 $
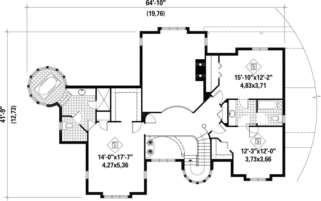
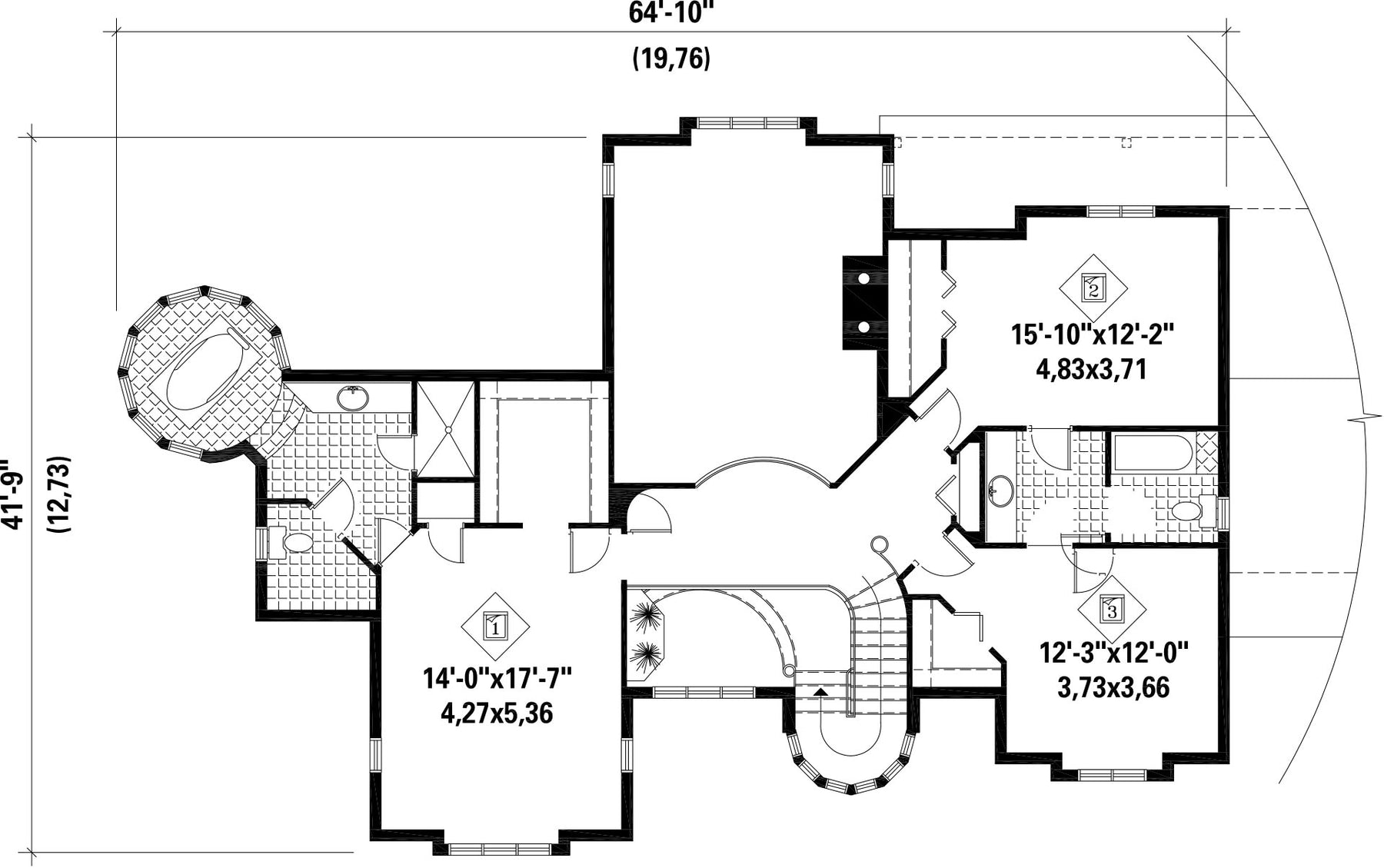
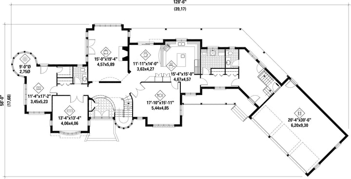
Façade 127 pi 6 po Surface habitable totale 4216 pi²
Profondeur 58 piNombre de salles de bain 2
Hauteur 33 piNombre de chambres 3
Chambre des maîtres Bain podium + Douche + Lavabo simple + Penderie + Toilettes Chambre des maîtres - commentaires Toilette fermée
Surface rez-de-chaussée 2462 pi² Finition extérieure Agrégats + Pierre
Surface étage 1754 pi² Type de cuisine Coin repas + Forme en U + Salle à manger + Îlot
Surface garage 696 pi² Garage 3 et plus
Mur garage 8 piMur rez-de-chaussée 9 pi
Mur étage 8 piInclinaison toit avant/arrière 12/12
Inclinaison toit gauche/droite 12/12
Style d'architecture Européen
Coût de construction 
Montant approximatif équivalent à celui d'un entrepreneur général (région de la Rive-Sud de Montréal) pour une construction clé en main sans terrain ni infrastructures.
1006229 $
Façade 127 pi 6 po
Surface habitable totale 4216 pi²
Profondeur 58 pi
Nombre de salles de bain 2
Hauteur 33 pi
Nombre de chambres 3
Chambre des maîtres Bain podium + Douche + Lavabo simple + Penderie + Toilettes
Chambre des maîtres - commentaires Toilette fermée
Surface rez-de-chaussée 2462 pi²
Finition extérieure Agrégats + Pierre
Surface étage 1754 pi²
Type de cuisine Coin repas + Forme en U + Salle à manger + Îlot
Surface garage 696 pi²
Garage 3 et plus
Mur garage 8 pi
Mur rez-de-chaussée 9 pi
Mur étage 8 pi
Inclinaison toit avant/arrière 12/12
Inclinaison toit gauche/droite 12/12

Ces plans de maison pourraient également vous intéresser


Vu récemment