Description
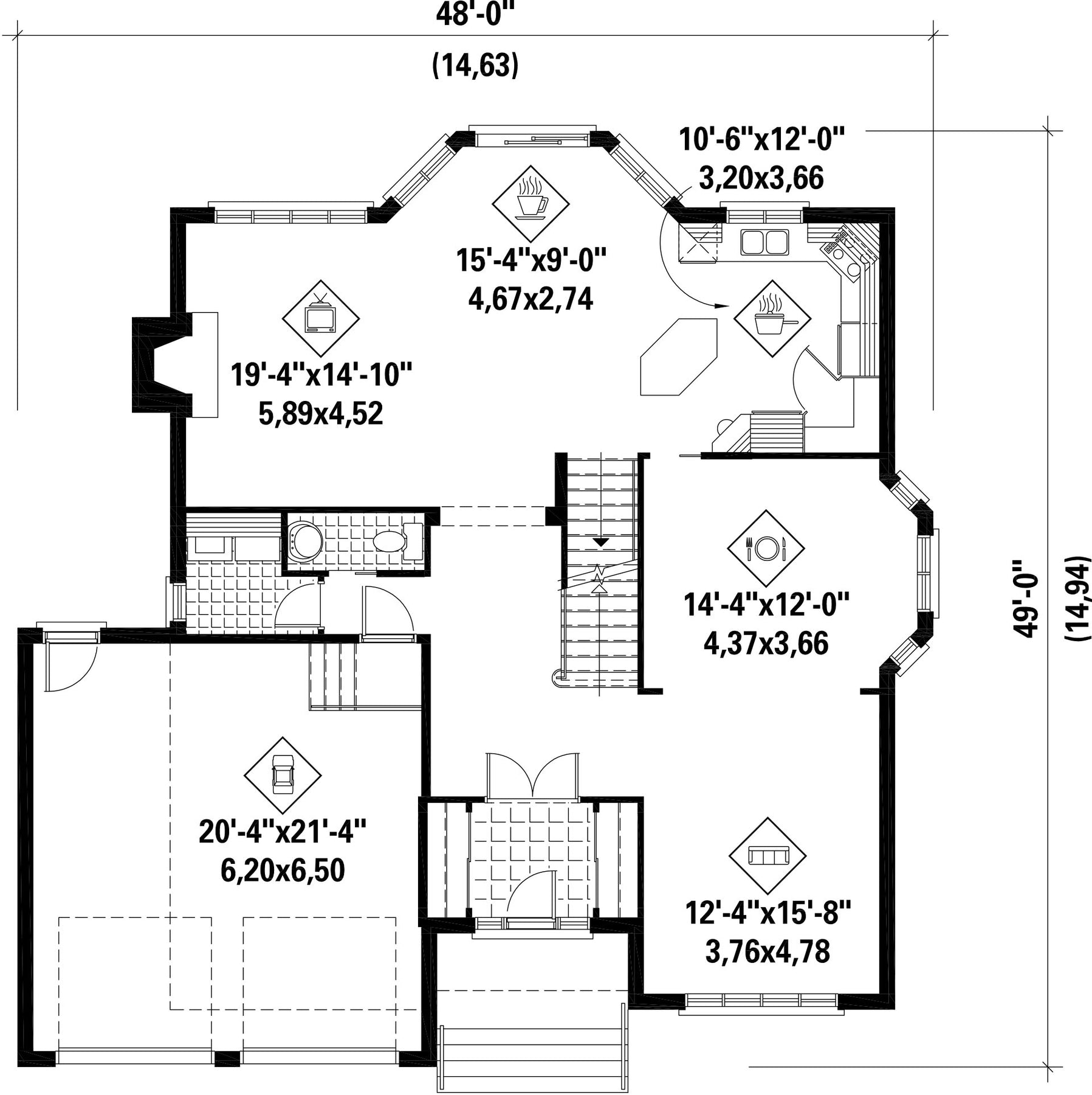
Avec sa façade en pierres, son balcon français et son imposante fenestration, cette maison à étage est des plus élégantes. La demeure mesure 48 pieds de largeur sur 49 pieds de profondeur et possède une surface habitable de 3 323 pieds carrés. Elle dispose également d’un garage de 481 pieds carré pouvant loger deux voitures.
Réparti sur 1 366 pieds carrés, le rez-de-chaussée comporte un vestibule fermé avec deux placards, une salle familiale avec foyer, un salon et une salle à manger à aire ouverte, une cuisine avec îlot et coin repas, et une salle d’eau adjacente à une salle de lavage.
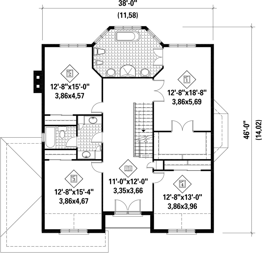
L’étage occupe 1 604 pieds carrés et abrite un coin lecture, une salle de bains, ainsi que quatre chambres dont une chambre principale dotée de portes françaises, d’une vaste penderie et d’une grande salle de bains privée.
Finalement, sous les combles se trouve un loft de 353 pieds carré pouvant servir de bureau ou d’atelier.
Réparti sur 1 366 pieds carrés, le rez-de-chaussée comporte un vestibule fermé avec deux placards, une salle familiale avec foyer, un salon et une salle à manger à aire ouverte, une cuisine avec îlot et coin repas, et une salle d’eau adjacente à une salle de lavage.
L’étage occupe 1 604 pieds carrés et abrite un coin lecture, une salle de bains, ainsi que quatre chambres dont une chambre principale dotée de portes françaises, d’une vaste penderie et d’une grande salle de bains privée.
Finalement, sous les combles se trouve un loft de 353 pieds carré pouvant servir de bureau ou d’atelier.
Caractéristiques
Mesures : Impérial| Style d'architecture | Européen |
Coût de construction
Montant approximatif équivalent à celui d'un entrepreneur général (région de la Rive-Sud de Montréal) pour une construction clé en main sans terrain ni infrastructures.
|
727495 $ |
|---|---|---|---|
| Façade | 48 pi | Surface habitable totale | 3323 pi² |
| Profondeur | 49 pi | Nombre de salles de bain | 2 |
| Hauteur | 43 pi 2 po | Nombre de chambres | 4 |
| Chambre des maîtres | Bain podium + Douche + Lavabo double + Penderie + Portes doubles + Toilettes | Chambre des maîtres - commentaires | Bidet, porte double dans la salle de bain et la penderie |
| Surface rez-de-chaussée | 1366 pi² | Finition extérieure | Agrégats + Pierre |
| Surface étage | 1604 pi² | Type de cuisine | Coin repas + Forme en U + Salle à manger + Îlot |
| Surface garage | 481 pi² | Garage | 2 |
| Mur garage | 8 pi | Mur rez-de-chaussée | 9 pi |
| Mur étage | 8 pi | Inclinaison toit avant/arrière | 12/12 |
| Inclinaison toit gauche/droite | 16/12 |
| Style d'architecture | Européen |
|---|---|
|
Coût de construction
Montant approximatif équivalent à celui d'un entrepreneur général (région de la Rive-Sud de Montréal) pour une construction clé en main sans terrain ni infrastructures.
|
727495 $ |
| Façade | 48 pi |
| Surface habitable totale | 3323 pi² |
| Profondeur | 49 pi |
| Nombre de salles de bain | 2 |
| Hauteur | 43 pi 2 po |
| Nombre de chambres | 4 |
| Chambre des maîtres | Bain podium + Douche + Lavabo double + Penderie + Portes doubles + Toilettes |
| Chambre des maîtres - commentaires | Bidet, porte double dans la salle de bain et la penderie |
| Surface rez-de-chaussée | 1366 pi² |
| Finition extérieure | Agrégats + Pierre |
| Surface étage | 1604 pi² |
| Type de cuisine | Coin repas + Forme en U + Salle à manger + Îlot |
| Surface garage | 481 pi² |
| Garage | 2 |
| Mur garage | 8 pi |
| Mur rez-de-chaussée | 9 pi |
| Mur étage | 8 pi |
| Inclinaison toit avant/arrière | 12/12 |
| Inclinaison toit gauche/droite | 16/12 |