20367
20367
20367
20367
20367
20367
20367
20367

Jeux de plans - Sets of plans
Prix régulier$1,683.00
/

Ce site est protégé par hCaptcha, et la Politique de confidentialité et les Conditions de service de hCaptcha s’appliquent.

Description

"Grenier habitable type loft Foyer de pierres central"

Caractéristiques

Mesures : Impérial

Style d'architecture Européen Coût de construction 
Montant approximatif équivalent à celui d'un entrepreneur général (région de la Rive-Sud de Montréal) pour une construction clé en main sans terrain ni infrastructures.
786866 $
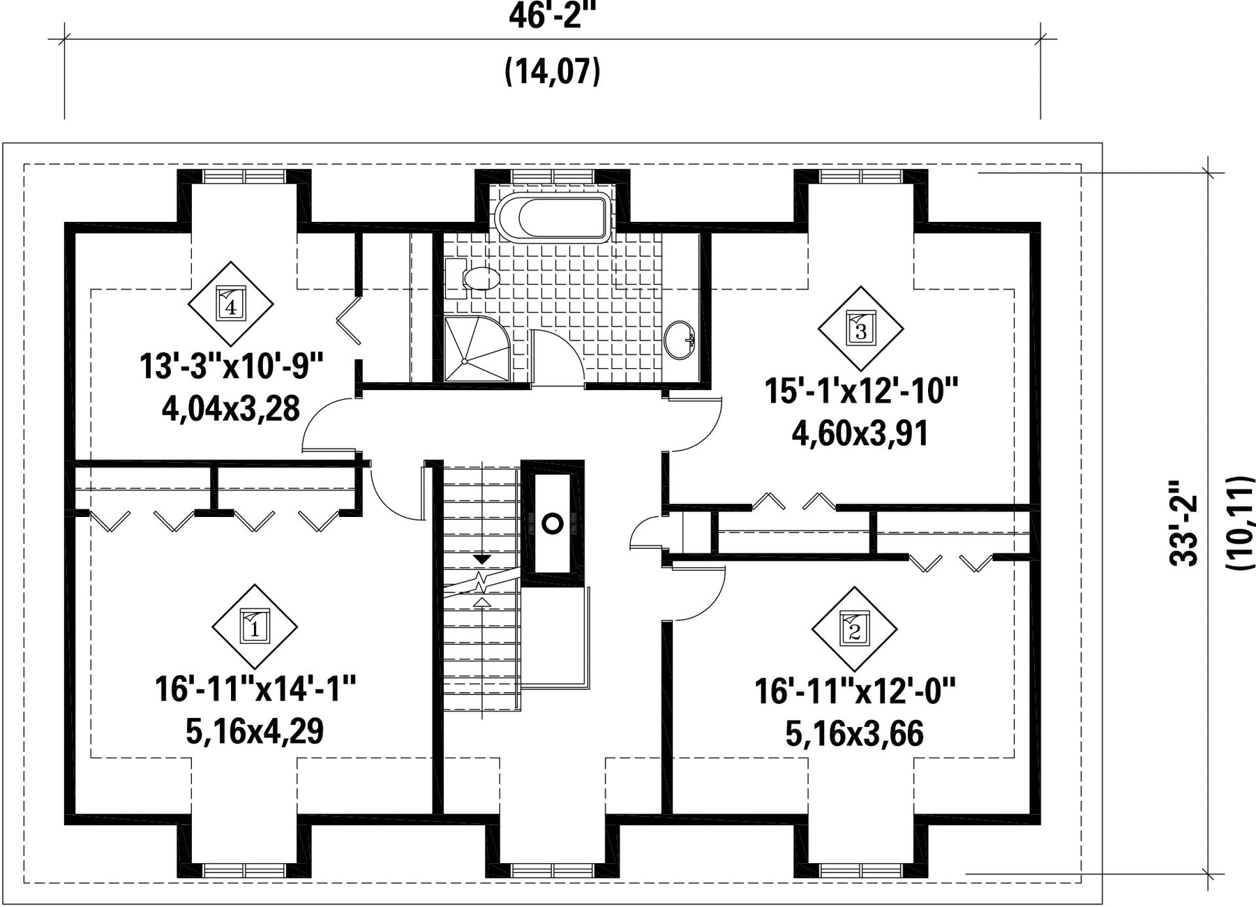
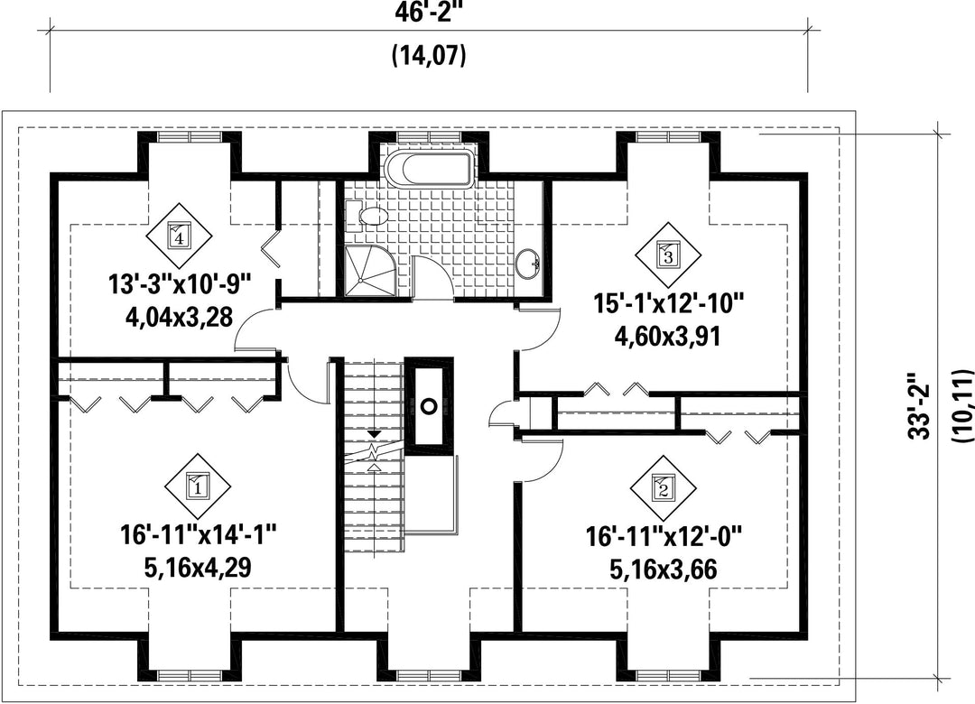
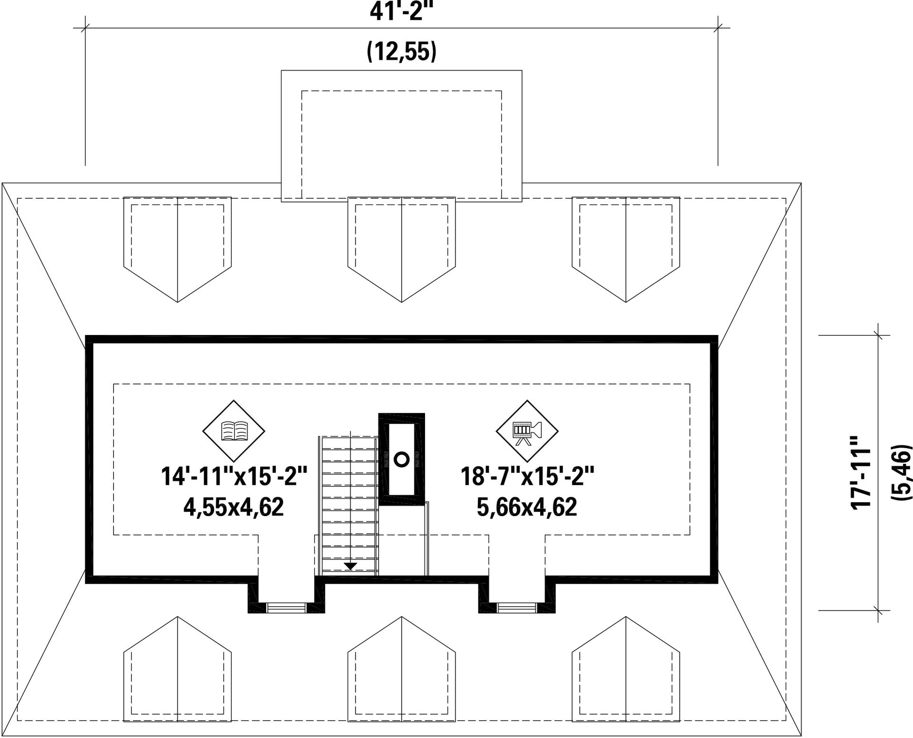
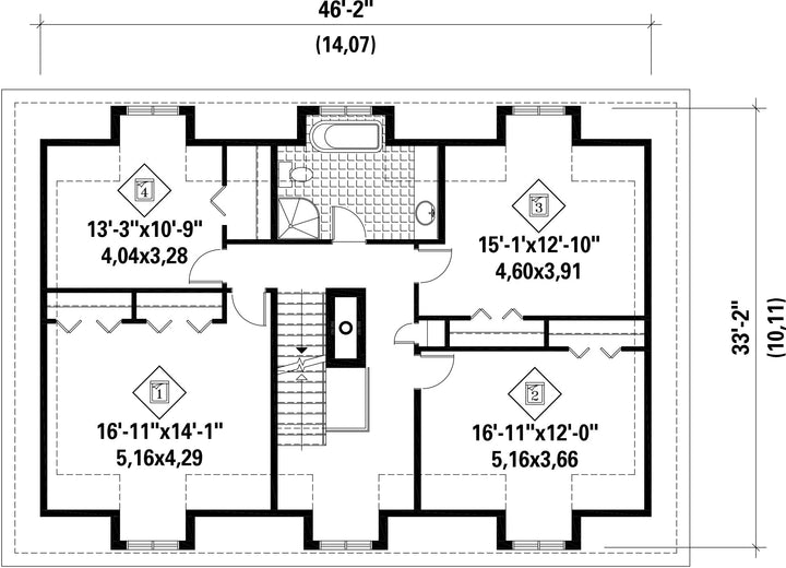
Façade 50 pi Surface habitable totale 3876 pi²
Profondeur 41 piNombre de salles de bain 2
Hauteur 38 pi 4 poNombre de chambres 5
Chambre des maîtres - commentaires ---
Surface rez-de-chaussée 1791 pi² Finition extérieure Bardeau de cèdre + Bois + Pierre
Surface étage 1403 pi² Type de cuisine Coin repas + Comptoir repas + Salle à manger
Garage 0
Mur rez-de-chaussée 8 pi
Mur étage 8 piInclinaison toit avant/arrière 18/12
Inclinaison toit gauche/droite 36/12
Style d'architecture Européen
Coût de construction 
Montant approximatif équivalent à celui d'un entrepreneur général (région de la Rive-Sud de Montréal) pour une construction clé en main sans terrain ni infrastructures.
786866 $
Façade 50 pi
Surface habitable totale 3876 pi²
Profondeur 41 pi
Nombre de salles de bain 2
Hauteur 38 pi 4 po
Nombre de chambres 5
Chambre des maîtres - commentaires ---
Surface rez-de-chaussée 1791 pi²
Finition extérieure Bardeau de cèdre + Bois + Pierre
Surface étage 1403 pi²
Type de cuisine Coin repas + Comptoir repas + Salle à manger
Garage 0
Mur rez-de-chaussée 8 pi
Mur étage 8 pi
Inclinaison toit avant/arrière 18/12
Inclinaison toit gauche/droite 36/12

Ces plans de maison pourraient également vous intéresser


Vu récemment