20343
20343
20343
20343
20343
20343

Jeux de plans - Sets of plans
Prix régulier$2,540.00
/

Ce site est protégé par hCaptcha, et la Politique de confidentialité et les Conditions de service de hCaptcha s’appliquent.

Description

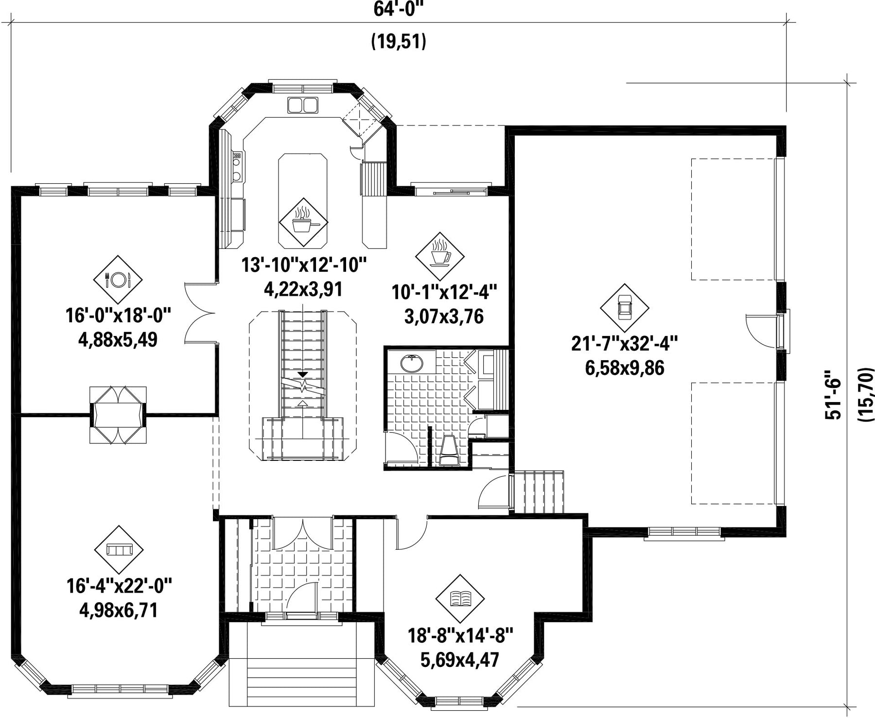
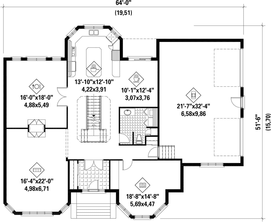
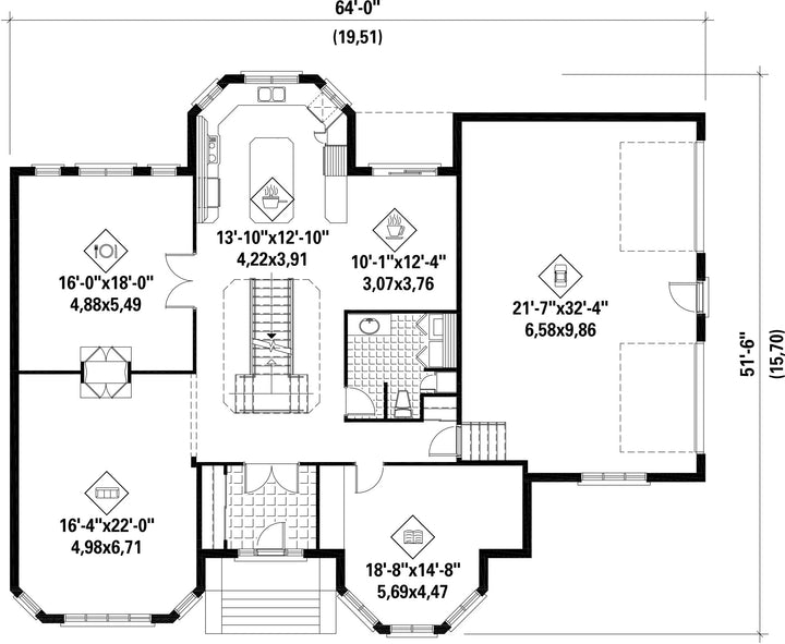
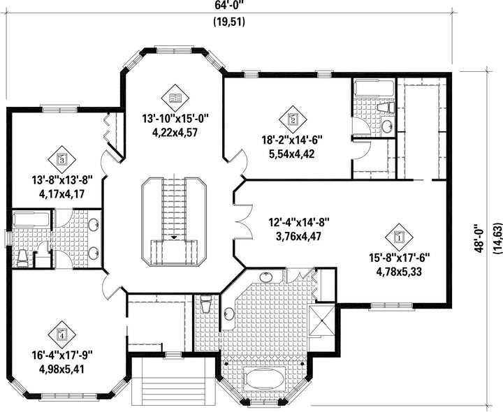
"Très vastes pièces Foyer à 2 faces entre le salon et la salle à manger Escalier en T Entrées de garages latérales Laveuse et sécheuse au rez-de-chaussée"

Caractéristiques

Mesures : Impérial

Style d'architecture Européen Coût de construction 
Montant approximatif équivalent à celui d'un entrepreneur général (région de la Rive-Sud de Montréal) pour une construction clé en main sans terrain ni infrastructures.
1040135 $
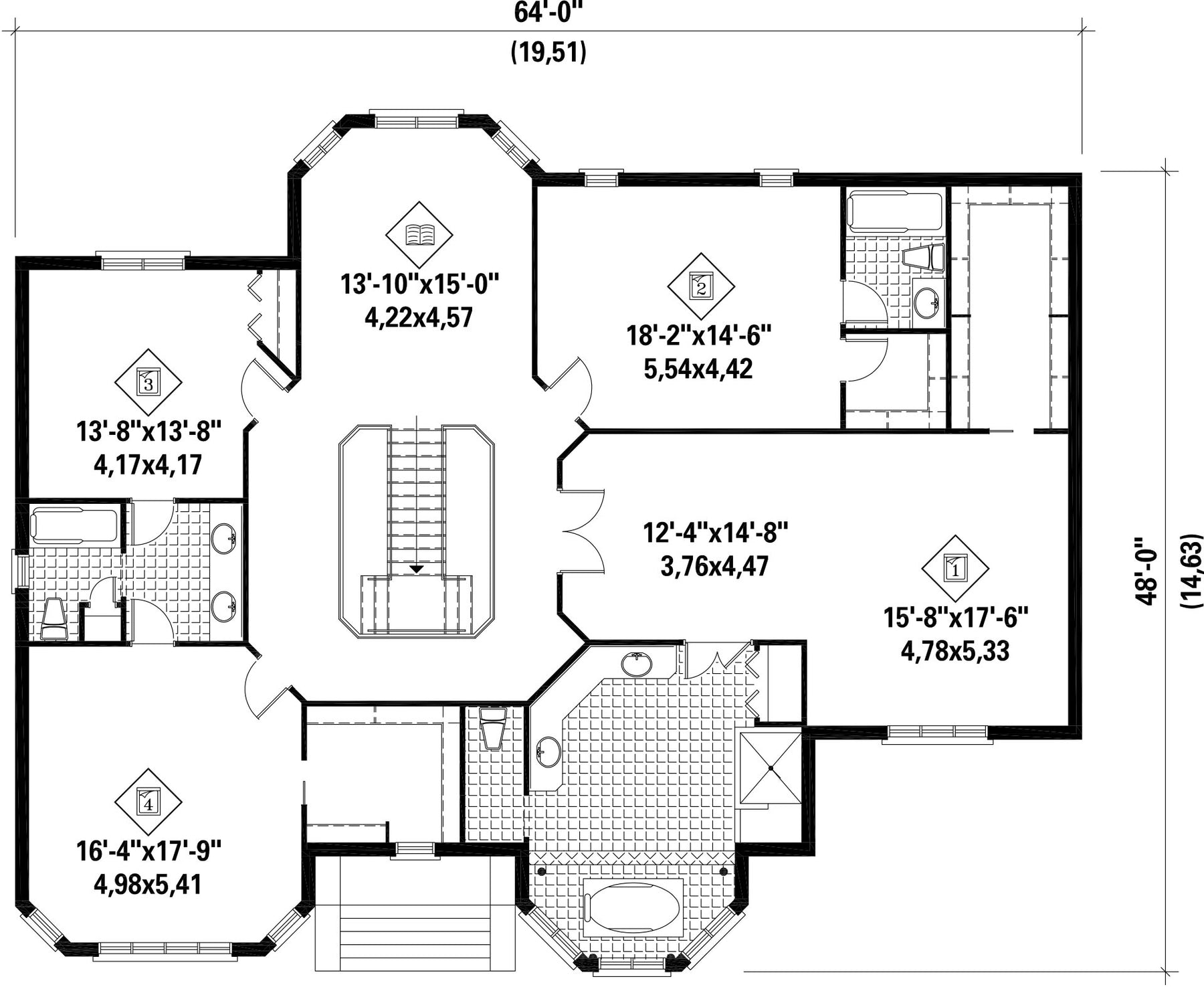
Façade 64 pi Surface habitable totale 4508 pi²
Profondeur 51 pi 6 poNombre de salles de bain 3
Hauteur 43 piNombre de chambres 4
Chambre des maîtres Bain podium + Douche + Lavabo double + Penderie + Portes doubles + Toilettes Chambre des maîtres - commentaires Immense chambre
Surface rez-de-chaussée 1855 pi² Finition extérieure Brique + Pierre
Surface étage 2653 pi² Type de cuisine Coin repas + Comptoir repas + Forme en U + Salle à manger + Îlot
Surface garage 754 pi² Garage 2
Mur garage 8 piMur rez-de-chaussée 9 pi
Mur étage 8 piInclinaison toit avant/arrière 12/12
Inclinaison toit gauche/droite 12/12
Style d'architecture Européen
Coût de construction 
Montant approximatif équivalent à celui d'un entrepreneur général (région de la Rive-Sud de Montréal) pour une construction clé en main sans terrain ni infrastructures.
1040135 $
Façade 64 pi
Surface habitable totale 4508 pi²
Profondeur 51 pi 6 po
Nombre de salles de bain 3
Hauteur 43 pi
Nombre de chambres 4
Chambre des maîtres Bain podium + Douche + Lavabo double + Penderie + Portes doubles + Toilettes
Chambre des maîtres - commentaires Immense chambre
Surface rez-de-chaussée 1855 pi²
Finition extérieure Brique + Pierre
Surface étage 2653 pi²
Type de cuisine Coin repas + Comptoir repas + Forme en U + Salle à manger + Îlot
Surface garage 754 pi²
Garage 2
Mur garage 8 pi
Mur rez-de-chaussée 9 pi
Mur étage 8 pi
Inclinaison toit avant/arrière 12/12
Inclinaison toit gauche/droite 12/12

Ces plans de maison pourraient également vous intéresser


Vu récemment