20339
20339
20339
20339
20339
20339

Jeux de plans - Sets of plans
Prix régulier$1,089.00
/

Ce site est protégé par hCaptcha, et la Politique de confidentialité et les Conditions de service de hCaptcha s’appliquent.

Description

"Vestibule fermé Coin lecture avec plafond cathédrale Balcon en L couvert Salle de lavage à l'étage"

Caractéristiques

Mesures : Impérial

Style d'architecture Européen Coût de construction 
Montant approximatif équivalent à celui d'un entrepreneur général (région de la Rive-Sud de Montréal) pour une construction clé en main sans terrain ni infrastructures.
333845 $
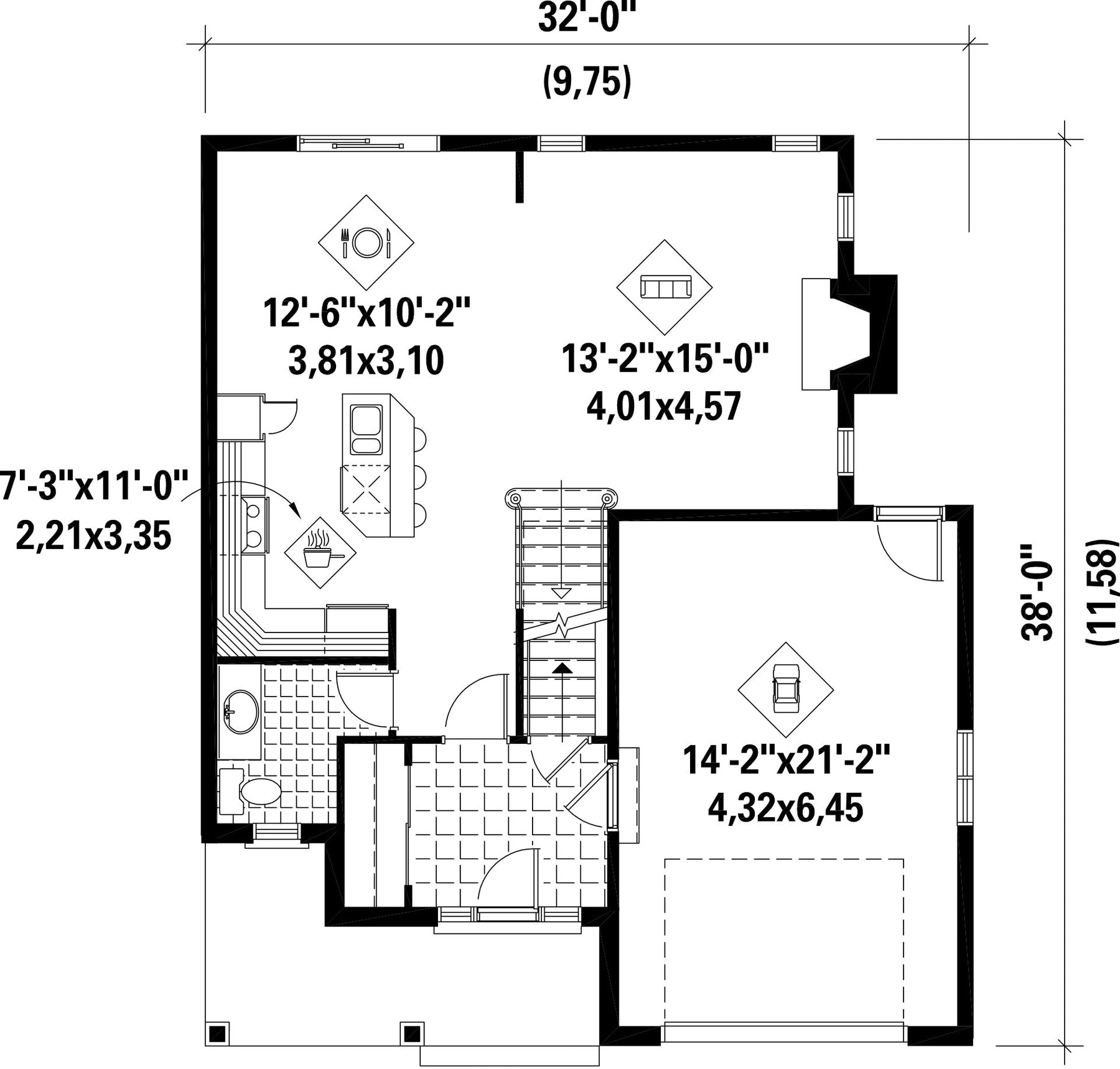
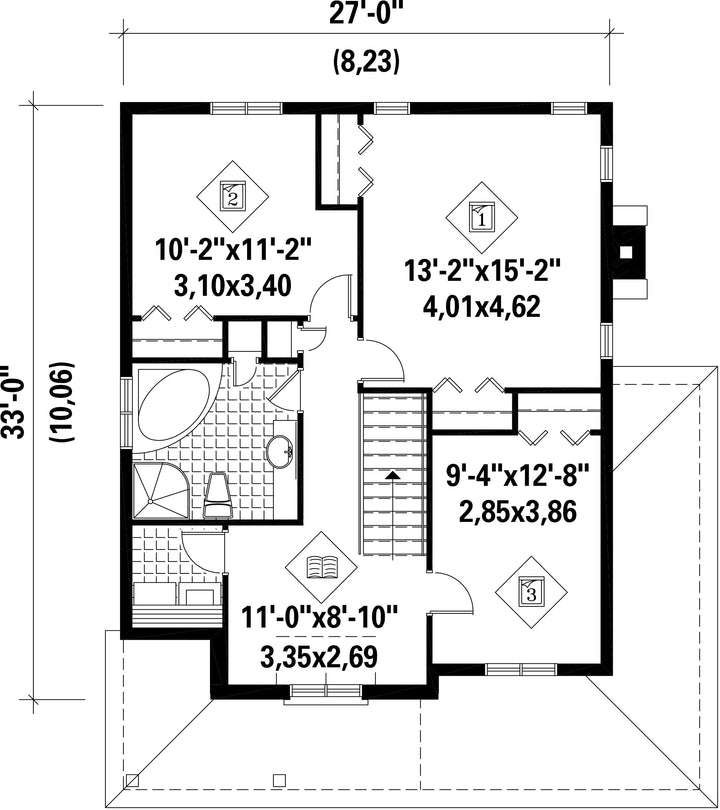
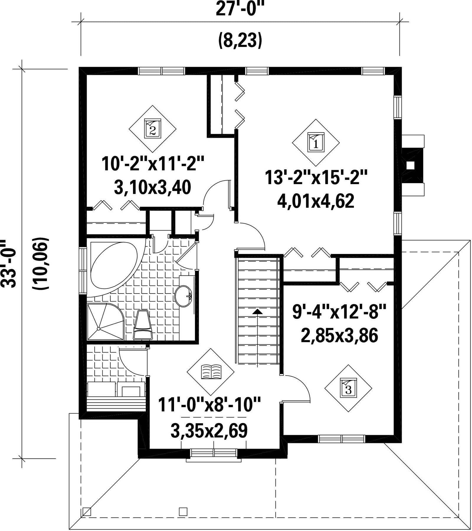
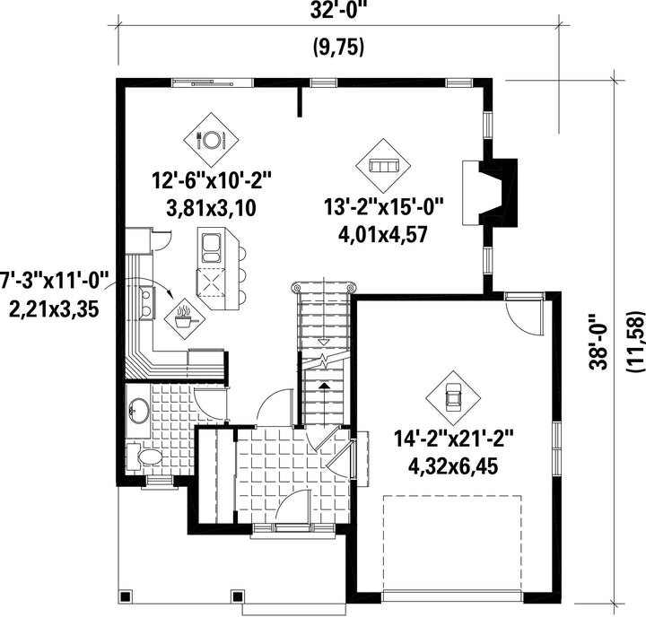
Façade 32 pi Surface habitable totale 1570 pi²
Profondeur 38 piNombre de salles de bain 1
Hauteur 29 pi 10 poNombre de chambres 3
Chambre des maîtres - commentaires ---
Surface rez-de-chaussée 711 pi² Finition extérieure Agrégats + Aluminium + Brique
Surface étage 859 pi² Type de cuisine Comptoir repas + Forme en L + Laboratoire + Îlot
Surface garage 328 pi² Garage 1
Mur garage 8 piMur rez-de-chaussée 8 pi
Mur étage 8 piInclinaison toit avant/arrière 8/12
Inclinaison toit gauche/droite 10/12
Style d'architecture Européen
Coût de construction 
Montant approximatif équivalent à celui d'un entrepreneur général (région de la Rive-Sud de Montréal) pour une construction clé en main sans terrain ni infrastructures.
333845 $
Façade 32 pi
Surface habitable totale 1570 pi²
Profondeur 38 pi
Nombre de salles de bain 1
Hauteur 29 pi 10 po
Nombre de chambres 3
Chambre des maîtres - commentaires ---
Surface rez-de-chaussée 711 pi²
Finition extérieure Agrégats + Aluminium + Brique
Surface étage 859 pi²
Type de cuisine Comptoir repas + Forme en L + Laboratoire + Îlot
Surface garage 328 pi²
Garage 1
Mur garage 8 pi
Mur rez-de-chaussée 8 pi
Mur étage 8 pi
Inclinaison toit avant/arrière 8/12
Inclinaison toit gauche/droite 10/12

Ces plans de maison pourraient également vous intéresser


Vu récemment