Description
Cette prestigieuse maison à étage se distingue par une façade de pierres, une fenestration imposante et de fausses lucarnes. Elle mesure 44 pieds de largeur sur 26 pieds de profondeur et offre une surface habitable de 1 500 pieds carrés.
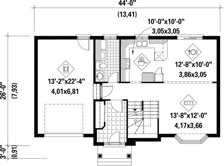
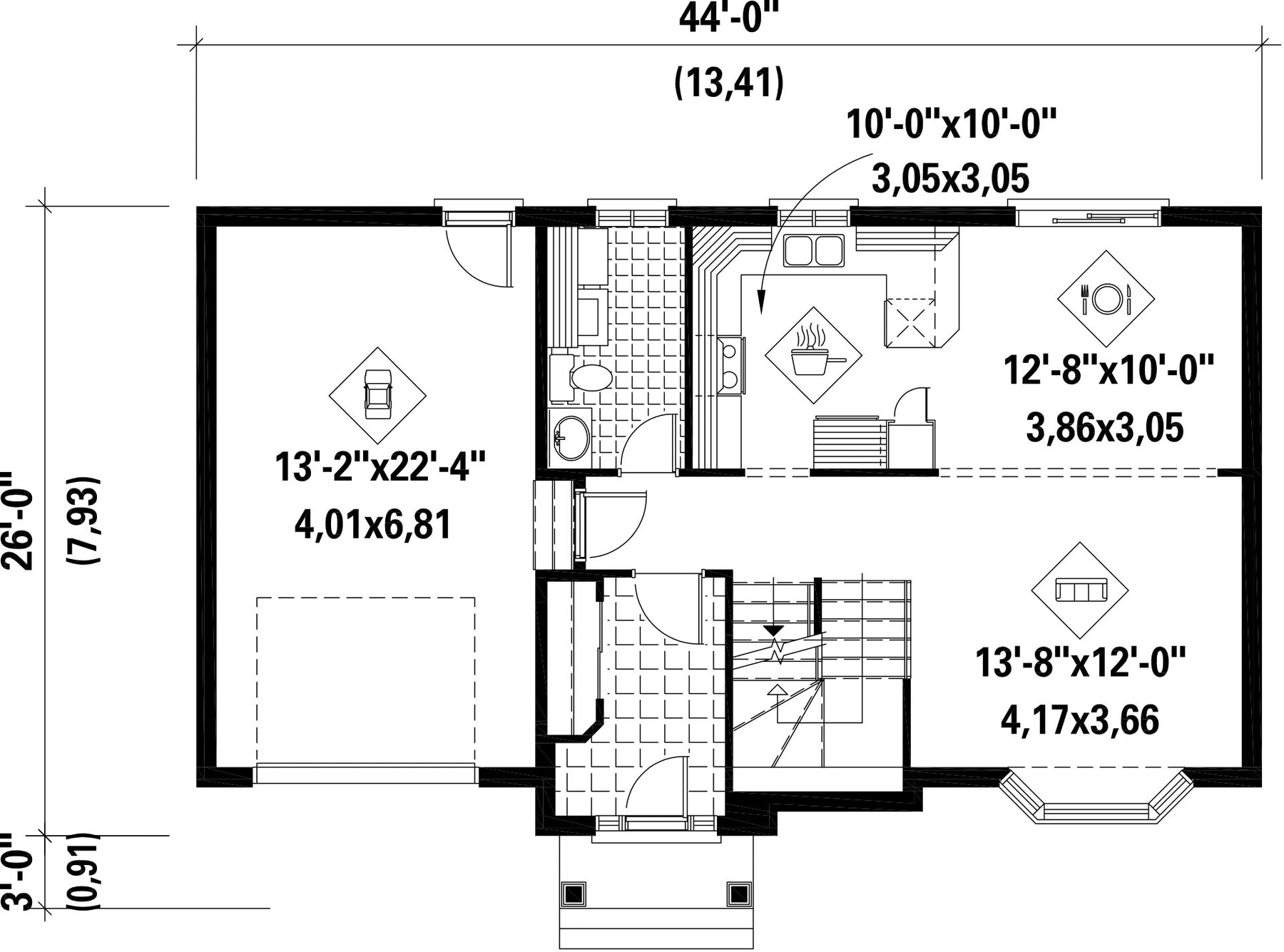
Le rez-de-chaussée fait 756 pieds carrés et comporte un vestibule fermé, un salon, une salle à manger, une cuisine en L avec comptoir-repas, une salle d’eau et un garage simple de 336 pieds carrés.
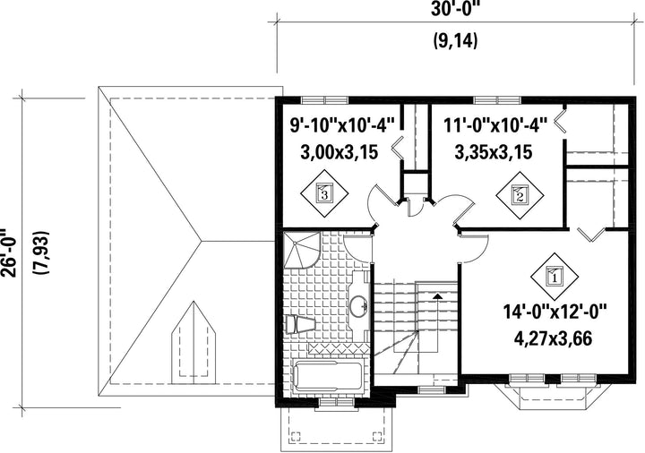
L’étage de 744 pieds carrés comprend une grande chambre principale disposant d’une penderie, deux chambres secondaires et une salle de bains familiale.
Le rez-de-chaussée fait 756 pieds carrés et comporte un vestibule fermé, un salon, une salle à manger, une cuisine en L avec comptoir-repas, une salle d’eau et un garage simple de 336 pieds carrés.
L’étage de 744 pieds carrés comprend une grande chambre principale disposant d’une penderie, deux chambres secondaires et une salle de bains familiale.
Caractéristiques
Mesures : Impérial| Style d'architecture | Européen |
Coût de construction
Montant approximatif équivalent à celui d'un entrepreneur général (région de la Rive-Sud de Montréal) pour une construction clé en main sans terrain ni infrastructures.
|
353742 $ |
|---|---|---|---|
| Façade | 44 pi | Surface habitable totale | 1500 pi² |
| Profondeur | 26 pi | Nombre de salles de bain | 1 |
| Hauteur | 34 pi 4 po | Nombre de chambres | 3 |
| Chambre des maîtres | Penderie | ||
| Surface rez-de-chaussée | 756 pi² | Finition extérieure | Agrégats + Pierre |
| Surface étage | 744 pi² | Type de cuisine | Comptoir repas + Forme en L |
| Surface garage | 336 pi² | Garage | 1 |
| Mur garage | 8 pi | Mur rez-de-chaussée | 9 pi |
| Mur étage | 8 pi | Inclinaison toit avant/arrière | 12/12 |
| Inclinaison toit gauche/droite | 18/12 |
| Style d'architecture | Européen |
|---|---|
|
Coût de construction
Montant approximatif équivalent à celui d'un entrepreneur général (région de la Rive-Sud de Montréal) pour une construction clé en main sans terrain ni infrastructures.
|
353742 $ |
| Façade | 44 pi |
| Surface habitable totale | 1500 pi² |
| Profondeur | 26 pi |
| Nombre de salles de bain | 1 |
| Hauteur | 34 pi 4 po |
| Nombre de chambres | 3 |
| Chambre des maîtres | Penderie |
| Surface rez-de-chaussée | 756 pi² |
| Finition extérieure | Agrégats + Pierre |
| Surface étage | 744 pi² |
| Type de cuisine | Comptoir repas + Forme en L |
| Surface garage | 336 pi² |
| Garage | 1 |
| Mur garage | 8 pi |
| Mur rez-de-chaussée | 9 pi |
| Mur étage | 8 pi |
| Inclinaison toit avant/arrière | 12/12 |
| Inclinaison toit gauche/droite | 18/12 |