20257
20257
20257
20257
20257
20257

Jeux de plans - Sets of plans
Prix régulier$2,140.00
/

Ce site est protégé par hCaptcha, et la Politique de confidentialité et les Conditions de service de hCaptcha s’appliquent.

Description

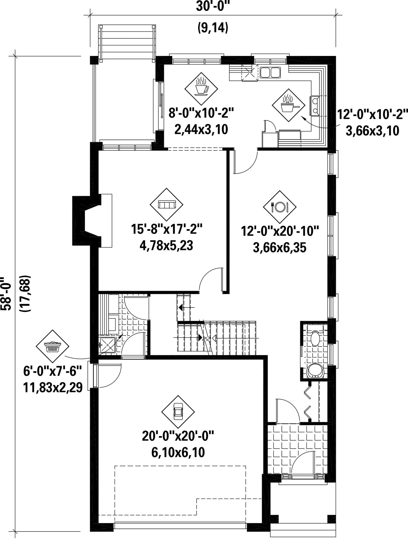
"Grande salle à manger Coin lecture dans la chambre principale Cuisine avec grand espace de travail Briques sur les quatres facades"

Caractéristiques

Mesures : Impérial

Style d'architecture Européen Coût de construction 
Montant approximatif équivalent à celui d'un entrepreneur général (région de la Rive-Sud de Montréal) pour une construction clé en main sans terrain ni infrastructures.
584832 $
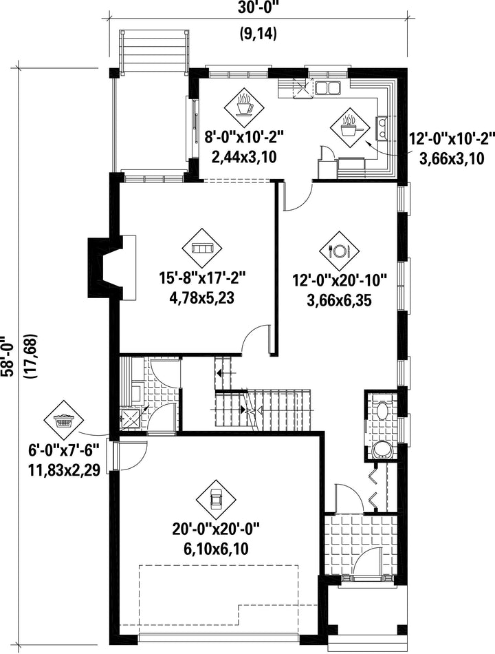
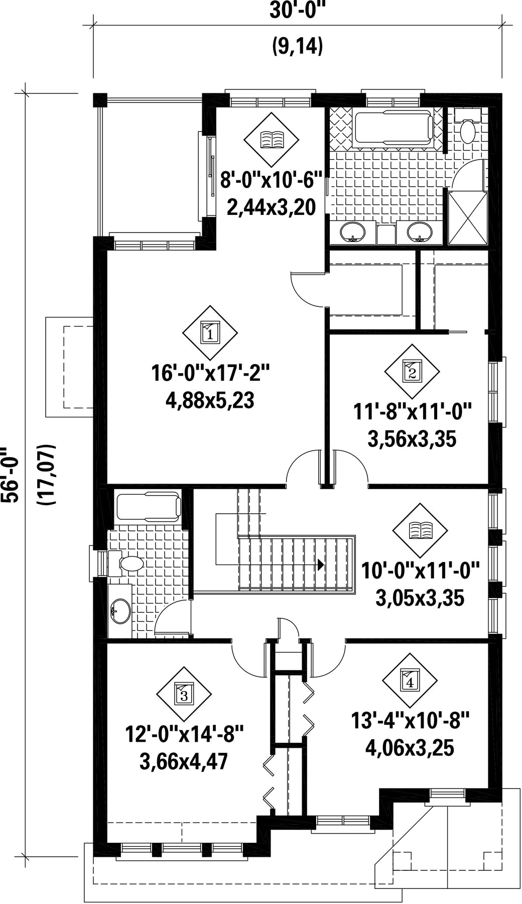
Façade 30 pi Surface habitable totale 2705 pi²
Profondeur 58 piNombre de salles de bain 3
Hauteur 31 pi 11 poNombre de chambres 4
Chambre des maîtres Baignoire + Douche + Lavabo double + Penderie + Toilettes Chambre des maîtres - commentaires Coin lecture
Surface rez-de-chaussée 1159 pi² Finition extérieure Brique + Pierre
Surface étage 1546 pi² Type de cuisine Coin repas + Forme en U
Surface garage 449 pi² Garage 2
Mur garage 8 piMur rez-de-chaussée 9 pi
Mur étage 8 piInclinaison toit avant/arrière 8/12
Inclinaison toit gauche/droite 8/12
Style d'architecture Européen
Coût de construction 
Montant approximatif équivalent à celui d'un entrepreneur général (région de la Rive-Sud de Montréal) pour une construction clé en main sans terrain ni infrastructures.
584832 $
Façade 30 pi
Surface habitable totale 2705 pi²
Profondeur 58 pi
Nombre de salles de bain 3
Hauteur 31 pi 11 po
Nombre de chambres 4
Chambre des maîtres Baignoire + Douche + Lavabo double + Penderie + Toilettes
Chambre des maîtres - commentaires Coin lecture
Surface rez-de-chaussée 1159 pi²
Finition extérieure Brique + Pierre
Surface étage 1546 pi²
Type de cuisine Coin repas + Forme en U
Surface garage 449 pi²
Garage 2
Mur garage 8 pi
Mur rez-de-chaussée 9 pi
Mur étage 8 pi
Inclinaison toit avant/arrière 8/12
Inclinaison toit gauche/droite 8/12

Ces plans de maison pourraient également vous intéresser


Vu récemment