20217
20217
20217
20217
20217
20217

Jeux de plans - Sets of plans
Prix régulier$1,240.00
/

Ce site est protégé par hCaptcha, et la Politique de confidentialité et les Conditions de service de hCaptcha s’appliquent.

Description

Rez-de-chaussée à aire ouverte

Caractéristiques

Mesures : Impérial

Style d'architecture Européen Coût de construction 
Montant approximatif équivalent à celui d'un entrepreneur général (région de la Rive-Sud de Montréal) pour une construction clé en main sans terrain ni infrastructures.
245131 $
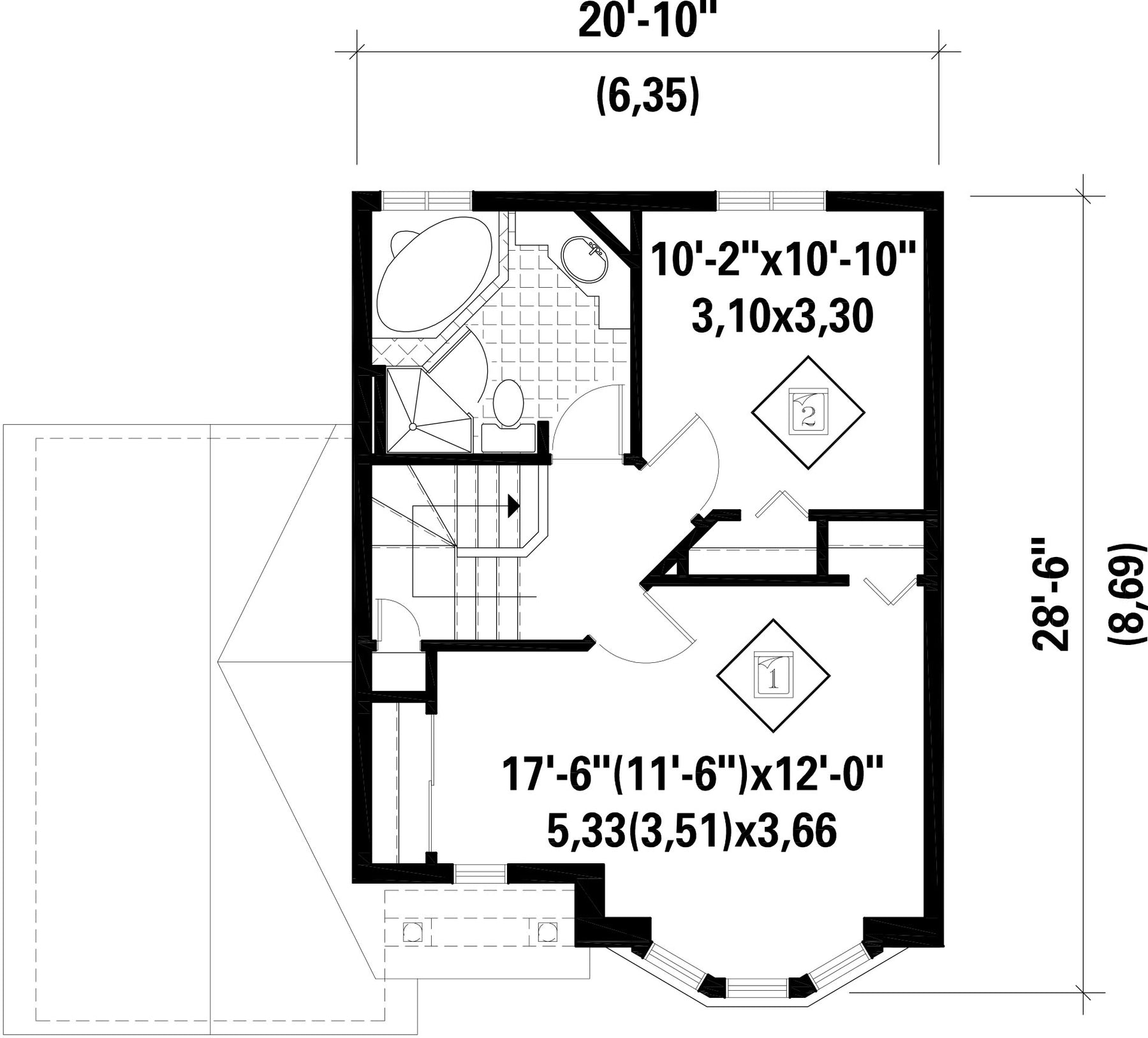
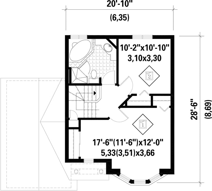
Façade 32 pi 4 po Surface habitable totale 1105 pi²
Profondeur 29 pi 6 poNombre de salles de bain 1
Hauteur 28 pi 8 poNombre de chambres 2
Chambre des maîtres - commentaires Grande chambre des maîtres avec tourelle et garde-robe double
Surface rez-de-chaussée 554 pi² Finition extérieure Aluminium + Brique
Surface étage 551 pi² Type de cuisine Comptoir repas + Forme en U + Salle à manger
Surface garage 245 pi² Garage 1
Mur garage 8 piMur rez-de-chaussée 8 pi
Mur étage 8 piInclinaison toit avant/arrière 8/12
Inclinaison toit gauche/droite 12/12
Style d'architecture Européen
Coût de construction 
Montant approximatif équivalent à celui d'un entrepreneur général (région de la Rive-Sud de Montréal) pour une construction clé en main sans terrain ni infrastructures.
245131 $
Façade 32 pi 4 po
Surface habitable totale 1105 pi²
Profondeur 29 pi 6 po
Nombre de salles de bain 1
Hauteur 28 pi 8 po
Nombre de chambres 2
Chambre des maîtres - commentaires Grande chambre des maîtres avec tourelle et garde-robe double
Surface rez-de-chaussée 554 pi²
Finition extérieure Aluminium + Brique
Surface étage 551 pi²
Type de cuisine Comptoir repas + Forme en U + Salle à manger
Surface garage 245 pi²
Garage 1
Mur garage 8 pi
Mur rez-de-chaussée 8 pi
Mur étage 8 pi
Inclinaison toit avant/arrière 8/12
Inclinaison toit gauche/droite 12/12

Ces plans de maison pourraient également vous intéresser


Vu récemment