20201
20201
20201
20201
20201
20201

Jeux de plans - Sets of plans
Prix régulier$1,565.00
/

Ce site est protégé par hCaptcha, et la Politique de confidentialité et les Conditions de service de hCaptcha s’appliquent.

Description

"Vestibule fermé Laveuse et sécheuse au rez-de-chaussée"

Caractéristiques

Mesures : Impérial

Style d'architecture Européen Coût de construction 
Montant approximatif équivalent à celui d'un entrepreneur général (région de la Rive-Sud de Montréal) pour une construction clé en main sans terrain ni infrastructures.
358083 $
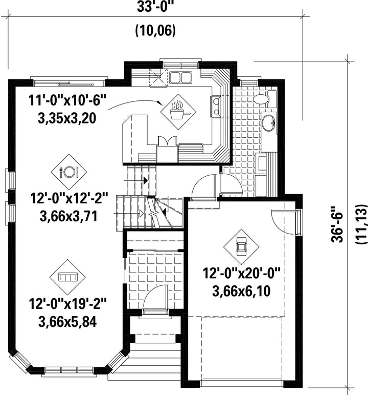
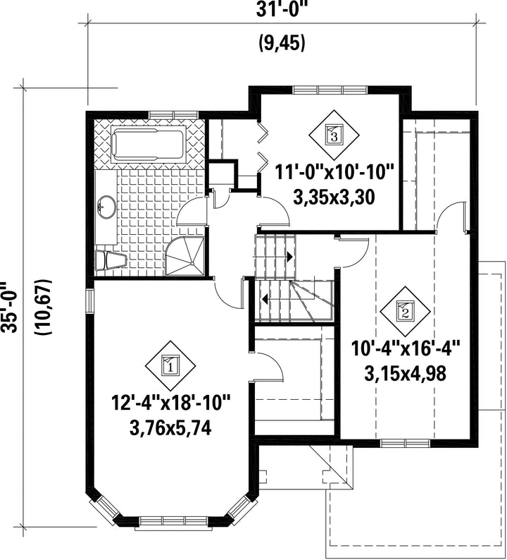
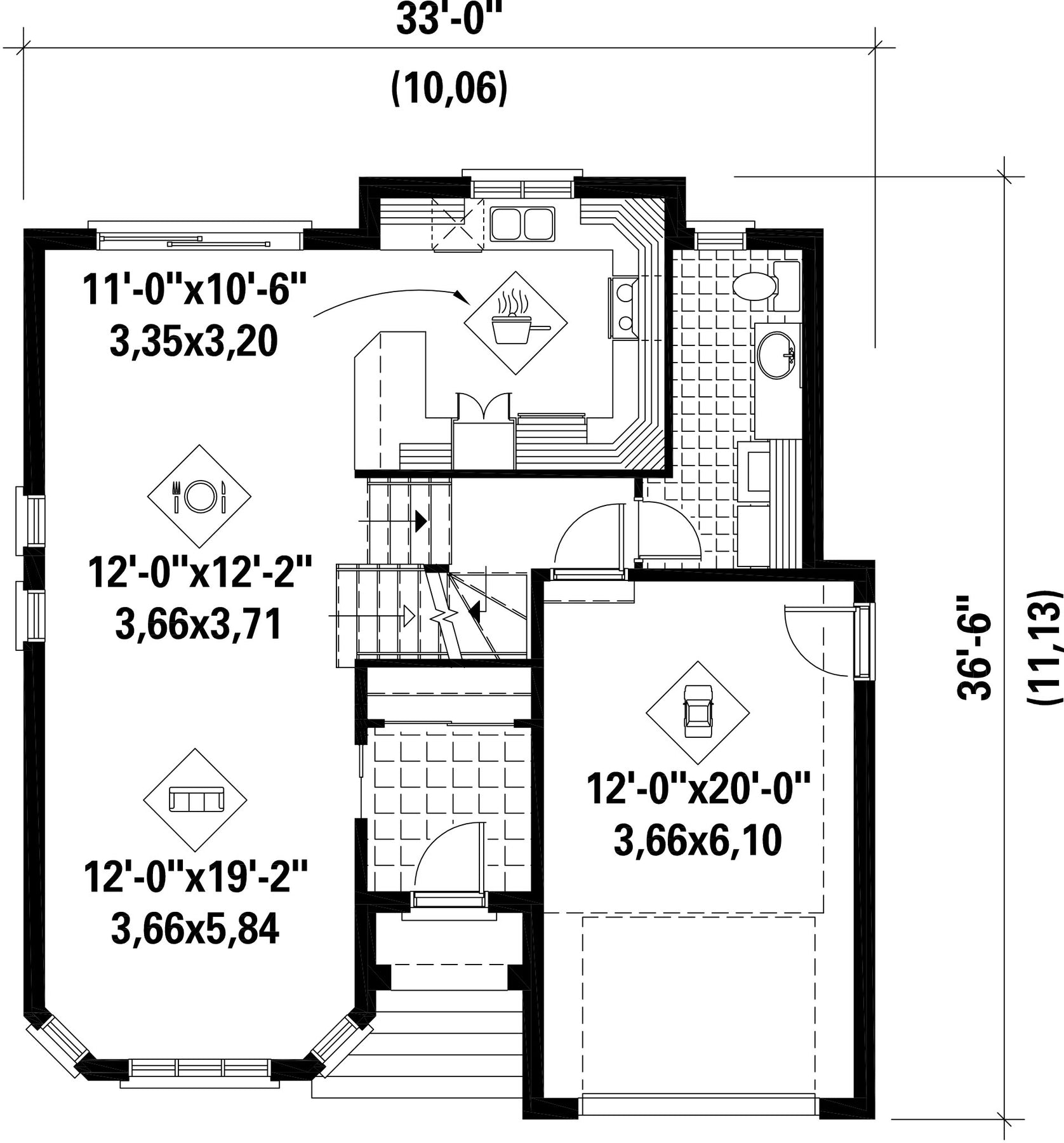
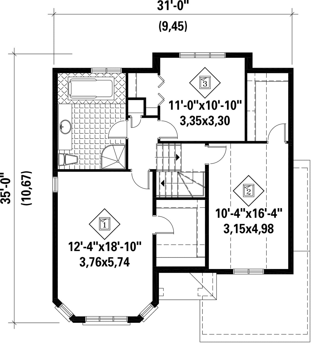
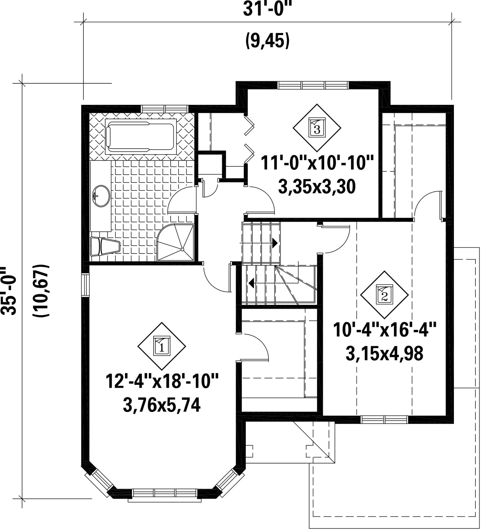
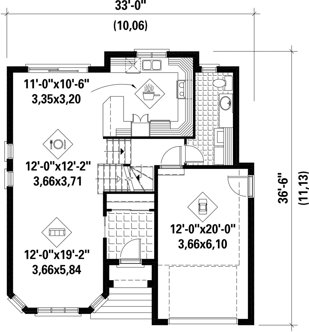
Façade 33 pi Surface habitable totale 1720 pi²
Profondeur 36 pi 6 poNombre de salles de bain 1
Hauteur 35 piNombre de chambres 3
Chambre des maîtres Penderie Chambre des maîtres - commentaires Plusieurs fenêtres
Surface rez-de-chaussée 790 pi² Finition extérieure Aluminium + Brique
Surface étage 930 pi² Type de cuisine Comptoir repas + Forme en U
Surface garage 276 pi² Garage 1
Mur garage 8 piMur rez-de-chaussée 8 pi
Mur étage 8 piInclinaison toit avant/arrière 12/12
Inclinaison toit gauche/droite 12/12
Style d'architecture Européen
Coût de construction 
Montant approximatif équivalent à celui d'un entrepreneur général (région de la Rive-Sud de Montréal) pour une construction clé en main sans terrain ni infrastructures.
358083 $
Façade 33 pi
Surface habitable totale 1720 pi²
Profondeur 36 pi 6 po
Nombre de salles de bain 1
Hauteur 35 pi
Nombre de chambres 3
Chambre des maîtres Penderie
Chambre des maîtres - commentaires Plusieurs fenêtres
Surface rez-de-chaussée 790 pi²
Finition extérieure Aluminium + Brique
Surface étage 930 pi²
Type de cuisine Comptoir repas + Forme en U
Surface garage 276 pi²
Garage 1
Mur garage 8 pi
Mur rez-de-chaussée 8 pi
Mur étage 8 pi
Inclinaison toit avant/arrière 12/12
Inclinaison toit gauche/droite 12/12

Ces plans de maison pourraient également vous intéresser


Vu récemment