20148
20148
20148
20148
20148
20148

Jeux de plans - Sets of plans
Prix régulier$1,440.00
/

Ce site est protégé par hCaptcha, et la Politique de confidentialité et les Conditions de service de hCaptcha s’appliquent.

Description

"Rez-de-chaussée à aire ouverte Laveuse et sécheuse au rez-de-chaussée"

Caractéristiques

Mesures : Impérial

Style d'architecture Européen Coût de construction 
Montant approximatif équivalent à celui d'un entrepreneur général (région de la Rive-Sud de Montréal) pour une construction clé en main sans terrain ni infrastructures.
300476 $
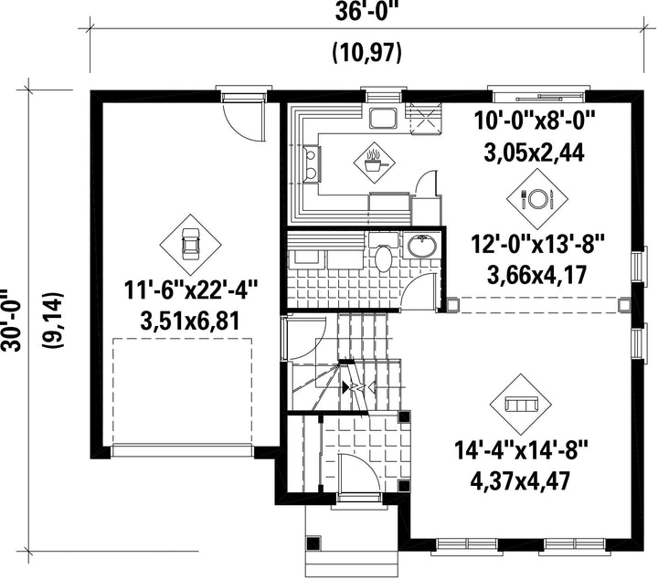
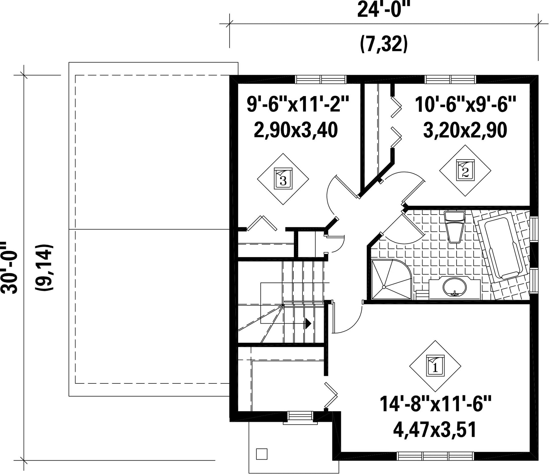
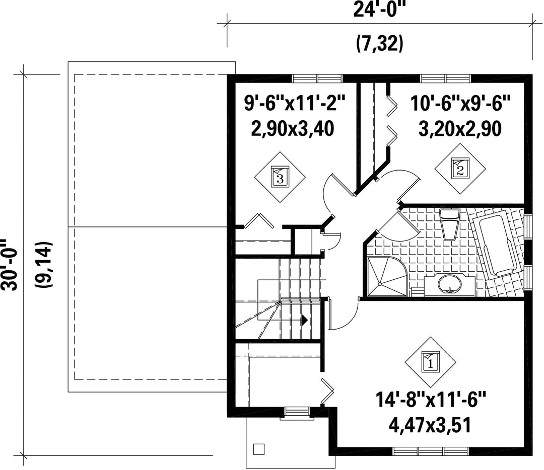
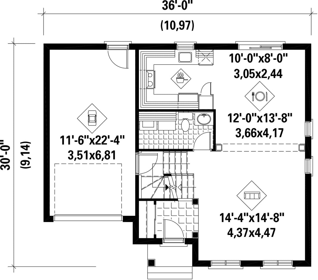
Façade 36 pi Surface habitable totale 1392 pi²
Profondeur 30 piNombre de salles de bain 1
Hauteur 32 pi 2 poNombre de chambres 3
Chambre des maîtres Penderie Chambre des maîtres - commentaires Penderie avec fenêtre
Surface rez-de-chaussée 696 pi² Finition extérieure Aluminium + Brique
Surface étage 696 pi² Type de cuisine Forme en U
Surface garage 288 pi² Garage 1
Mur garage 8 piMur rez-de-chaussée 8 pi
Mur étage 8 piInclinaison toit avant/arrière 8/12
Style d'architecture Européen
Coût de construction 
Montant approximatif équivalent à celui d'un entrepreneur général (région de la Rive-Sud de Montréal) pour une construction clé en main sans terrain ni infrastructures.
300476 $
Façade 36 pi
Surface habitable totale 1392 pi²
Profondeur 30 pi
Nombre de salles de bain 1
Hauteur 32 pi 2 po
Nombre de chambres 3
Chambre des maîtres Penderie
Chambre des maîtres - commentaires Penderie avec fenêtre
Surface rez-de-chaussée 696 pi²
Finition extérieure Aluminium + Brique
Surface étage 696 pi²
Type de cuisine Forme en U
Surface garage 288 pi²
Garage 1
Mur garage 8 pi
Mur rez-de-chaussée 8 pi
Mur étage 8 pi
Inclinaison toit avant/arrière 8/12

Ces plans de maison pourraient également vous intéresser


Vu récemment