Description
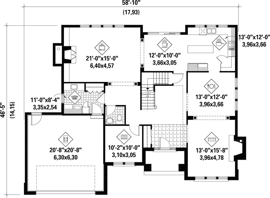
Cette élégante maison à étage au style raffiné se démarque par son revêtement de panneaux de cèdre, de pierres et d’aluminium. La demeure, qui occupe 58 pieds 10 pouces de largeur sur 46 pieds 5 pouces de profondeur, a une surface habitable de 3 341 pieds carrés.
Offrant une surface habitable de 1 681 pieds carrés, le rez-de-chaussée compte un salon avec foyer, une salle de lecture, une salle à manger, une cuisine avec un îlot et un coin-repas, une salle familiale avec foyer, une salle d’eau, une salle de lavage et un garage double de 480 pieds carrés.
L’étage qui couvre 1 660 pieds carrés comprend une chambre principale avec une penderie, une salle de bains privée et un balcon, une salle de bains familiale ainsi que trois chambres supplémentaires dont une possède également une salle de bains privée.
Offrant une surface habitable de 1 681 pieds carrés, le rez-de-chaussée compte un salon avec foyer, une salle de lecture, une salle à manger, une cuisine avec un îlot et un coin-repas, une salle familiale avec foyer, une salle d’eau, une salle de lavage et un garage double de 480 pieds carrés.
L’étage qui couvre 1 660 pieds carrés comprend une chambre principale avec une penderie, une salle de bains privée et un balcon, une salle de bains familiale ainsi que trois chambres supplémentaires dont une possède également une salle de bains privée.
Caractéristiques
Mesures : Impérial| Style d'architecture | Européen |
Coût de construction
Montant approximatif équivalent à celui d'un entrepreneur général (région de la Rive-Sud de Montréal) pour une construction clé en main sans terrain ni infrastructures.
|
696472 $ |
|---|---|---|---|
| Façade | 58 pi 10 po | Surface habitable totale | 3341 pi² |
| Profondeur | 46 pi 5 po | Nombre de salles de bain | 4 |
| Hauteur | 33 pi | Nombre de chambres | 4 |
| Chambre des maîtres | Baignoire + Douche + Lavabo simple + Penderie + Portes doubles + Toilettes | Chambre des maîtres - commentaires | Vue du bain de la chambre |
| Surface rez-de-chaussée | 1681 pi² | Finition extérieure | Aluminium + Bardeau de cèdre + Pierre |
| Surface étage | 1660 pi² | Type de cuisine | Coin repas + Forme en U + Salle à manger + Îlot |
| Surface garage | 480 pi² | Garage | 2 |
| Mur garage | 8 pi | Mur rez-de-chaussée | 9 pi |
| Mur étage | 8 pi | Inclinaison toit avant/arrière | 8/12 |
| Inclinaison toit gauche/droite | 8/12 |
| Style d'architecture | Européen |
|---|---|
|
Coût de construction
Montant approximatif équivalent à celui d'un entrepreneur général (région de la Rive-Sud de Montréal) pour une construction clé en main sans terrain ni infrastructures.
|
696472 $ |
| Façade | 58 pi 10 po |
| Surface habitable totale | 3341 pi² |
| Profondeur | 46 pi 5 po |
| Nombre de salles de bain | 4 |
| Hauteur | 33 pi |
| Nombre de chambres | 4 |
| Chambre des maîtres | Baignoire + Douche + Lavabo simple + Penderie + Portes doubles + Toilettes |
| Chambre des maîtres - commentaires | Vue du bain de la chambre |
| Surface rez-de-chaussée | 1681 pi² |
| Finition extérieure | Aluminium + Bardeau de cèdre + Pierre |
| Surface étage | 1660 pi² |
| Type de cuisine | Coin repas + Forme en U + Salle à manger + Îlot |
| Surface garage | 480 pi² |
| Garage | 2 |
| Mur garage | 8 pi |
| Mur rez-de-chaussée | 9 pi |
| Mur étage | 8 pi |
| Inclinaison toit avant/arrière | 8/12 |
| Inclinaison toit gauche/droite | 8/12 |