20002
20002
20002
20002
20002
20002

Jeux de plans - Sets of plans
Prix régulier$2,140.00
/

Ce site est protégé par hCaptcha, et la Politique de confidentialité et les Conditions de service de hCaptcha s’appliquent.

Description

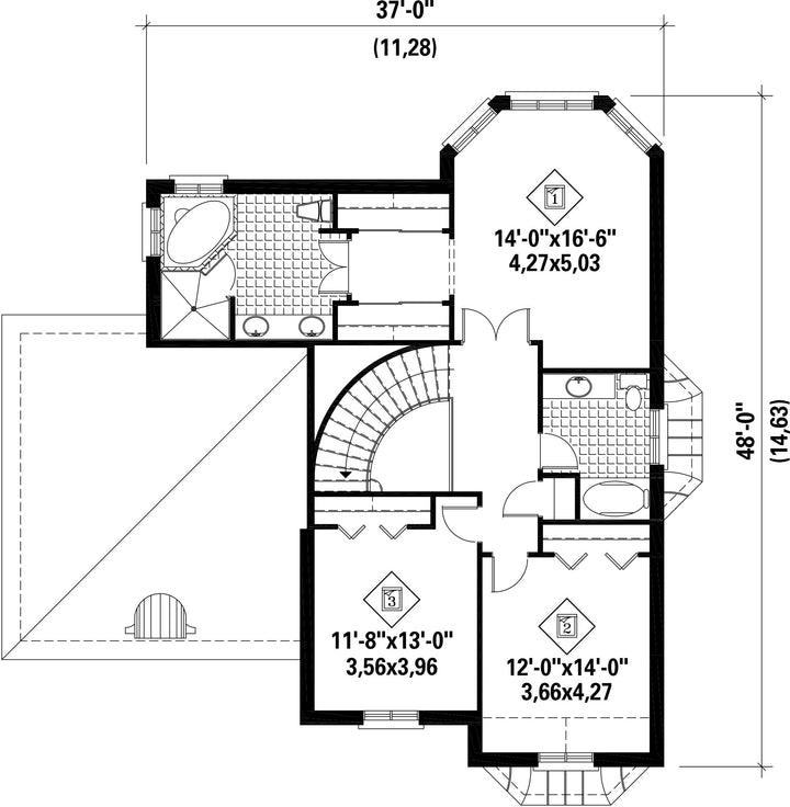
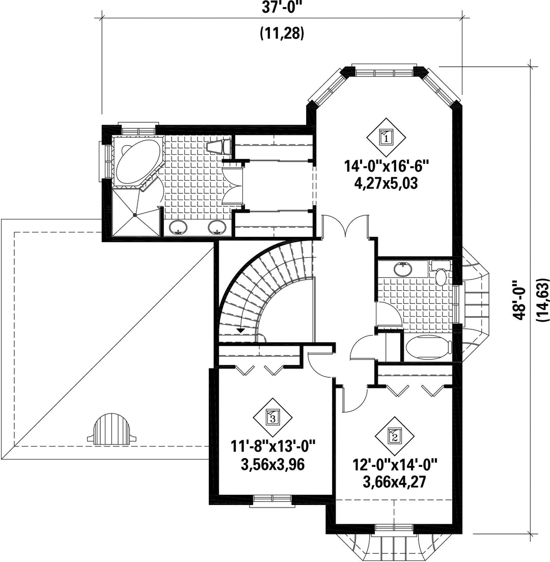
"Escalier en rond Salle de lecture au rez-de-chaussée Vestibule fermé"

Caractéristiques

Mesures : Impérial

Style d'architecture Européen Coût de construction 
Montant approximatif équivalent à celui d'un entrepreneur général (région de la Rive-Sud de Montréal) pour une construction clé en main sans terrain ni infrastructures.
602023 $
Façade 48 pi Surface habitable totale 2535 pi²
Profondeur 50 piNombre de salles de bain 2
Hauteur 37 pi 9 poNombre de chambres 3
Chambre des maîtres Bain podium + Douche + Lavabo double + Portes doubles + Toilettes Chambre des maîtres - commentaires 2 garde-robes
Surface rez-de-chaussée 1273 pi² Finition extérieure Pierre
Surface étage 1262 pi² Type de cuisine Coin repas + Forme en U + Salle à manger + Îlot
Surface garage 439 pi² Garage 2
Mur garage 8 piMur rez-de-chaussée 9 pi
Mur étage 8 piInclinaison toit avant/arrière 14/12
Inclinaison toit gauche/droite 14/12
Style d'architecture Européen
Coût de construction 
Montant approximatif équivalent à celui d'un entrepreneur général (région de la Rive-Sud de Montréal) pour une construction clé en main sans terrain ni infrastructures.
602023 $
Façade 48 pi
Surface habitable totale 2535 pi²
Profondeur 50 pi
Nombre de salles de bain 2
Hauteur 37 pi 9 po
Nombre de chambres 3
Chambre des maîtres Bain podium + Douche + Lavabo double + Portes doubles + Toilettes
Chambre des maîtres - commentaires 2 garde-robes
Surface rez-de-chaussée 1273 pi²
Finition extérieure Pierre
Surface étage 1262 pi²
Type de cuisine Coin repas + Forme en U + Salle à manger + Îlot
Surface garage 439 pi²
Garage 2
Mur garage 8 pi
Mur rez-de-chaussée 9 pi
Mur étage 8 pi
Inclinaison toit avant/arrière 14/12
Inclinaison toit gauche/droite 14/12

Ces plans de maison pourraient également vous intéresser


Vu récemment