Description
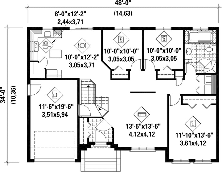
Cette maison de plain-pied aux jolis pignons avec façade en briques et pierres mesure 48 pieds de largeur sur 34 pieds de profondeur. Elle offre une surface habitable de 1 297 pieds carrés en plus d’un garage simple de 263 pieds carrés.
Grâce à sa fenestration abondante et à son aménagement intérieur bien pensé, cette maison est lumineuse et invitante. Elle comprend un vestibule fermé, un salon, une salle à manger adjacente à la cuisine, une salle de bains, ainsi que trois chambres, dont deux de dimensions identiques et une chambre principale très lumineuse grâce à ses deux grandes fenêtres.
Grâce à sa fenestration abondante et à son aménagement intérieur bien pensé, cette maison est lumineuse et invitante. Elle comprend un vestibule fermé, un salon, une salle à manger adjacente à la cuisine, une salle de bains, ainsi que trois chambres, dont deux de dimensions identiques et une chambre principale très lumineuse grâce à ses deux grandes fenêtres.
Caractéristiques
Mesures : Impérial| Style d'architecture | Européen |
Coût de construction
Montant approximatif équivalent à celui d'un entrepreneur général (région de la Rive-Sud de Montréal) pour une construction clé en main sans terrain ni infrastructures.
|
334436 $ |
|---|---|---|---|
| Façade | 48 pi | Surface habitable totale | 1297 pi² |
| Profondeur | 34 pi | Nombre de salles de bain | 1 |
| Hauteur | 23 pi 11 po | Nombre de chambres | 3 |
| Chambre des maîtres - commentaires | Beaucoup de fenestration dans la chambre des maîtres | ||
| Surface rez-de-chaussée | 1297 pi² | Finition extérieure | Aluminium + Brique + Pierre |
| Type de cuisine | Îlot | ||
| Surface garage | 263 pi² | Garage | 1 |
| Mur garage | 8 pi | Mur rez-de-chaussée | 8 pi |
| Inclinaison toit avant/arrière | 8/12 | ||
| Inclinaison toit gauche/droite | 12/12 |
| Style d'architecture | Européen |
|---|---|
|
Coût de construction
Montant approximatif équivalent à celui d'un entrepreneur général (région de la Rive-Sud de Montréal) pour une construction clé en main sans terrain ni infrastructures.
|
334436 $ |
| Façade | 48 pi |
| Surface habitable totale | 1297 pi² |
| Profondeur | 34 pi |
| Nombre de salles de bain | 1 |
| Hauteur | 23 pi 11 po |
| Nombre de chambres | 3 |
| Chambre des maîtres - commentaires | Beaucoup de fenestration dans la chambre des maîtres |
| Surface rez-de-chaussée | 1297 pi² |
| Finition extérieure | Aluminium + Brique + Pierre |
| Type de cuisine | Îlot |
| Surface garage | 263 pi² |
| Garage | 1 |
| Mur garage | 8 pi |
| Mur rez-de-chaussée | 8 pi |
| Inclinaison toit avant/arrière | 8/12 |
| Inclinaison toit gauche/droite | 12/12 |