Description
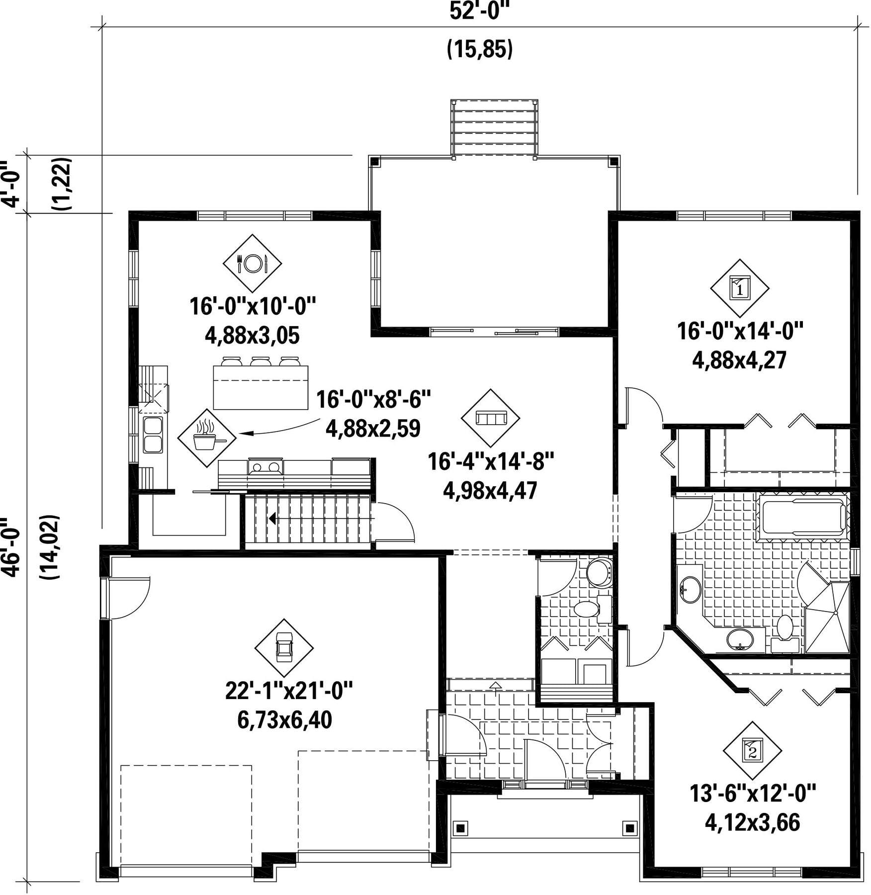
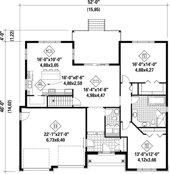
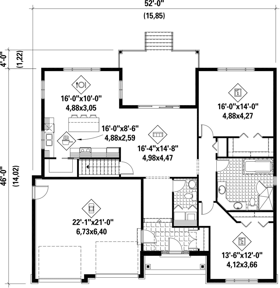
Avec son revêtement de pierre et d’aluminium, ainsi que ses fenêtres agrémentées de volets, cette élégante maison de plain-pied se démarque résolument. La demeure mesure 52 pieds de largeur sur 46 pieds de profondeur et sa surface habitable est de 1608 pieds carrés.
L'intérieur compte deux chambres, une salle de bains, une salle d’eau, une cuisine avec îlot, une salle à manger, un salon, ainsi qu’un garage double attenant à la maison.
L'intérieur compte deux chambres, une salle de bains, une salle d’eau, une cuisine avec îlot, une salle à manger, un salon, ainsi qu’un garage double attenant à la maison.
Caractéristiques
Mesures : Impérial| Style d'architecture | Européen |
Coût de construction
Montant approximatif équivalent à celui d'un entrepreneur général (région de la Rive-Sud de Montréal) pour une construction clé en main sans terrain ni infrastructures.
|
435911 $ |
|---|---|---|---|
| Façade | 52 pi | Surface habitable totale | 1608 pi² |
| Profondeur | 46 pi | Nombre de salles de bain | 1 |
| Hauteur | 28 pi 3 po | Nombre de chambres | 2 |
| Chambre des maîtres | Penderie | Chambre des maîtres - commentaires | Grande chambre des maîtres |
| Surface rez-de-chaussée | 1608 pi² | Finition extérieure | Aluminium + Pierre |
| Type de cuisine | Comptoir repas + Îlot | ||
| Surface garage | 499 pi² | Garage | 2 |
| Mur garage | 8 pi | Mur rez-de-chaussée | 8 pi |
| Inclinaison toit avant/arrière | 8/12 | ||
| Style d'architecture | Européen |
|---|---|
|
Coût de construction
Montant approximatif équivalent à celui d'un entrepreneur général (région de la Rive-Sud de Montréal) pour une construction clé en main sans terrain ni infrastructures.
|
435911 $ |
| Façade | 52 pi |
| Surface habitable totale | 1608 pi² |
| Profondeur | 46 pi |
| Nombre de salles de bain | 1 |
| Hauteur | 28 pi 3 po |
| Nombre de chambres | 2 |
| Chambre des maîtres | Penderie |
| Chambre des maîtres - commentaires | Grande chambre des maîtres |
| Surface rez-de-chaussée | 1608 pi² |
| Finition extérieure | Aluminium + Pierre |
| Type de cuisine | Comptoir repas + Îlot |
| Surface garage | 499 pi² |
| Garage | 2 |
| Mur garage | 8 pi |
| Mur rez-de-chaussée | 8 pi |
| Inclinaison toit avant/arrière | 8/12 |