Description
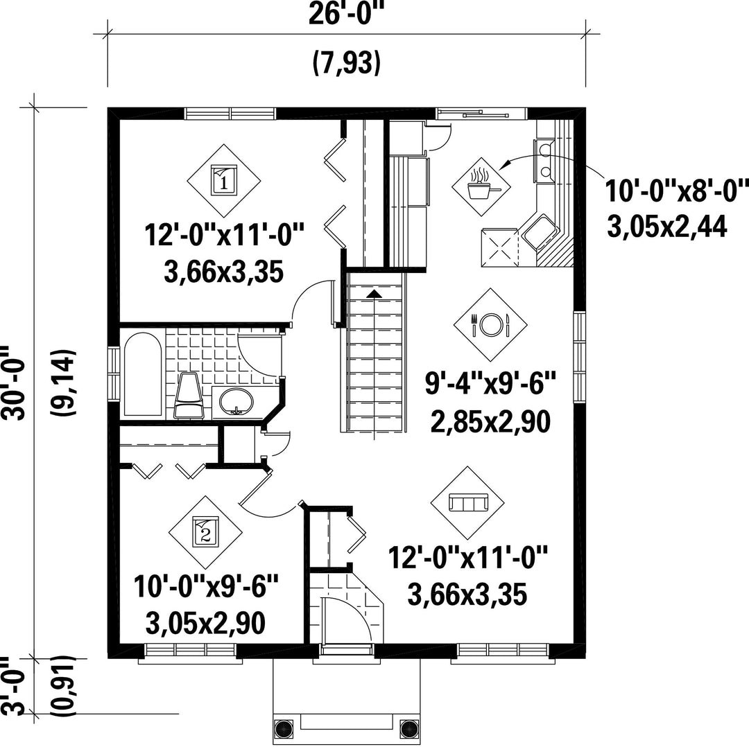
Cette maison de plain-pied d’apparence modeste ne manque toutefois pas de cachet grâce à son petit porche avec colonnes ornementales et ses moulures décoratives. Elle mesure 26 pieds de largeur sur 30 pieds de profondeur et offre une surface habitable de 780 pieds carrés.
La maison comprend un salon et une salle à manger à aire ouverte, une cuisine, deux chambres et une salle de bains.
La maison comprend un salon et une salle à manger à aire ouverte, une cuisine, deux chambres et une salle de bains.
Caractéristiques
Mesures : Impérial| Style d'architecture | Européen |
Coût de construction
Montant approximatif équivalent à celui d'un entrepreneur général (région de la Rive-Sud de Montréal) pour une construction clé en main sans terrain ni infrastructures.
|
184481 $ |
|---|---|---|---|
| Façade | 26 pi | Surface habitable totale | 780 pi² |
| Profondeur | 30 pi | Nombre de salles de bain | 1 |
| Hauteur | 20 pi 7 po | Nombre de chambres | 2 |
| Chambre des maîtres - commentaires | Garde-robe | ||
| Surface rez-de-chaussée | 780 pi² | Finition extérieure | Aluminium + Brique |
| Type de cuisine | Laboratoire + Salle à manger | ||
| Garage | 0 | ||
| Mur rez-de-chaussée | 8 pi | ||
| Inclinaison toit avant/arrière | 8/12 | ||
| Inclinaison toit gauche/droite | 8/12 |
| Style d'architecture | Européen |
|---|---|
|
Coût de construction
Montant approximatif équivalent à celui d'un entrepreneur général (région de la Rive-Sud de Montréal) pour une construction clé en main sans terrain ni infrastructures.
|
184481 $ |
| Façade | 26 pi |
| Surface habitable totale | 780 pi² |
| Profondeur | 30 pi |
| Nombre de salles de bain | 1 |
| Hauteur | 20 pi 7 po |
| Nombre de chambres | 2 |
| Chambre des maîtres - commentaires | Garde-robe |
| Surface rez-de-chaussée | 780 pi² |
| Finition extérieure | Aluminium + Brique |
| Type de cuisine | Laboratoire + Salle à manger |
| Garage | 0 |
| Mur rez-de-chaussée | 8 pi |
| Inclinaison toit avant/arrière | 8/12 |
| Inclinaison toit gauche/droite | 8/12 |