Description
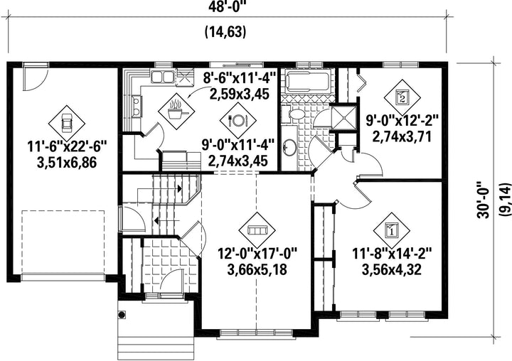
Cette maison de plain-pied se démarque avec sa brique posée à la verticale, ses détails architecturaux, ses colonnes décoratives et ses coins français. Elle mesure 48 pieds de largeur sur 30 pieds de profondeur et offre une surface habitable de 1 019 pieds carrés.
La résidence comprend un vestibule fermé, un salon avec plafond cathédrale, une salle à manger, une cuisine en U, une salle de bains, et deux chambres, dont une chambre principale avec deux placards. Le garage de 288 pieds carrés peut loger une voiture et possède deux portes – une qui donne accès à la maison et l’autre qui mène à la l’arrière-cour.
La résidence comprend un vestibule fermé, un salon avec plafond cathédrale, une salle à manger, une cuisine en U, une salle de bains, et deux chambres, dont une chambre principale avec deux placards. Le garage de 288 pieds carrés peut loger une voiture et possède deux portes – une qui donne accès à la maison et l’autre qui mène à la l’arrière-cour.
Caractéristiques
Mesures : Impérial| Style d'architecture | Européen |
Coût de construction
Montant approximatif équivalent à celui d'un entrepreneur général (région de la Rive-Sud de Montréal) pour une construction clé en main sans terrain ni infrastructures.
|
271423 $ |
|---|---|---|---|
| Façade | 48 pi | Surface habitable totale | 1019 pi² |
| Profondeur | 30 pi | Nombre de salles de bain | 1 |
| Hauteur | 24 pi 6 po | Nombre de chambres | 2 |
| Chambre des maîtres - commentaires | 2 garde-robes | ||
| Surface rez-de-chaussée | 1019 pi² | Finition extérieure | Aluminium + Brique |
| Type de cuisine | Forme en U + Salle à manger | ||
| Surface garage | 288 pi² | Garage | 1 |
| Mur garage | 8 pi | Mur rez-de-chaussée | 8 pi |
| Inclinaison toit avant/arrière | 10/12 | ||
| Inclinaison toit gauche/droite | 10/12 |
| Style d'architecture | Européen |
|---|---|
|
Coût de construction
Montant approximatif équivalent à celui d'un entrepreneur général (région de la Rive-Sud de Montréal) pour une construction clé en main sans terrain ni infrastructures.
|
271423 $ |
| Façade | 48 pi |
| Surface habitable totale | 1019 pi² |
| Profondeur | 30 pi |
| Nombre de salles de bain | 1 |
| Hauteur | 24 pi 6 po |
| Nombre de chambres | 2 |
| Chambre des maîtres - commentaires | 2 garde-robes |
| Surface rez-de-chaussée | 1019 pi² |
| Finition extérieure | Aluminium + Brique |
| Type de cuisine | Forme en U + Salle à manger |
| Surface garage | 288 pi² |
| Garage | 1 |
| Mur garage | 8 pi |
| Mur rez-de-chaussée | 8 pi |
| Inclinaison toit avant/arrière | 10/12 |
| Inclinaison toit gauche/droite | 10/12 |