Description
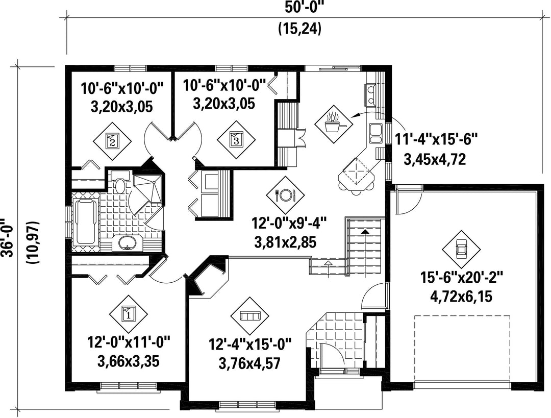
Cette maison de plain-pied se démarque par sa façade de brique, ses pignons et ses coins français. Elle occupe 50 pieds de largeur sur 36 pieds de profondeur et offre une surface habitable de 1 172 pieds carrés. Elle possède également un garage simple de 346 pieds carrés.
La résidence comprend un vestibule fermé, un salon en contrebas avec foyer en coin, une cuisine fonctionnelle avec comptoir-repas, une salle à manger ouverte, un grand placard pour la laveuse et la sécheuse, une salle de bains familiale et trois chambres à coucher.
La résidence comprend un vestibule fermé, un salon en contrebas avec foyer en coin, une cuisine fonctionnelle avec comptoir-repas, une salle à manger ouverte, un grand placard pour la laveuse et la sécheuse, une salle de bains familiale et trois chambres à coucher.
Caractéristiques
Mesures : Impérial| Style d'architecture | Européen |
Coût de construction
Montant approximatif équivalent à celui d'un entrepreneur général (région de la Rive-Sud de Montréal) pour une construction clé en main sans terrain ni infrastructures.
|
315668 $ |
|---|---|---|---|
| Façade | 50 pi | Surface habitable totale | 1172 pi² |
| Profondeur | 36 pi | Nombre de salles de bain | 1 |
| Hauteur | 25 pi 3 po | Nombre de chambres | 3 |
| Chambre des maîtres - commentaires | Grande chambre | ||
| Surface rez-de-chaussée | 1172 pi² | Finition extérieure | Agrégats + Aluminium + Brique |
| Type de cuisine | Comptoir repas + Laboratoire + Salle à manger | ||
| Surface garage | 346 pi² | Garage | 1 |
| Mur garage | 8 pi | Mur rez-de-chaussée | 8 pi |
| Inclinaison toit avant/arrière | 8/12 | ||
| Inclinaison toit gauche/droite | 12/12 |
| Style d'architecture | Européen |
|---|---|
|
Coût de construction
Montant approximatif équivalent à celui d'un entrepreneur général (région de la Rive-Sud de Montréal) pour une construction clé en main sans terrain ni infrastructures.
|
315668 $ |
| Façade | 50 pi |
| Surface habitable totale | 1172 pi² |
| Profondeur | 36 pi |
| Nombre de salles de bain | 1 |
| Hauteur | 25 pi 3 po |
| Nombre de chambres | 3 |
| Chambre des maîtres - commentaires | Grande chambre |
| Surface rez-de-chaussée | 1172 pi² |
| Finition extérieure | Agrégats + Aluminium + Brique |
| Type de cuisine | Comptoir repas + Laboratoire + Salle à manger |
| Surface garage | 346 pi² |
| Garage | 1 |
| Mur garage | 8 pi |
| Mur rez-de-chaussée | 8 pi |
| Inclinaison toit avant/arrière | 8/12 |
| Inclinaison toit gauche/droite | 12/12 |