10428
10428
10428
10428

Jeux de plans - Sets of plans
Prix régulier$1,440.00
/

Ce site est protégé par hCaptcha, et la Politique de confidentialité et les Conditions de service de hCaptcha s’appliquent.

Description

"Plafond du portique à 9'-6"" de haut"

Caractéristiques

Mesures : Impérial

Style d'architecture Européen Coût de construction 
Montant approximatif équivalent à celui d'un entrepreneur général (région de la Rive-Sud de Montréal) pour une construction clé en main sans terrain ni infrastructures.
365392 $
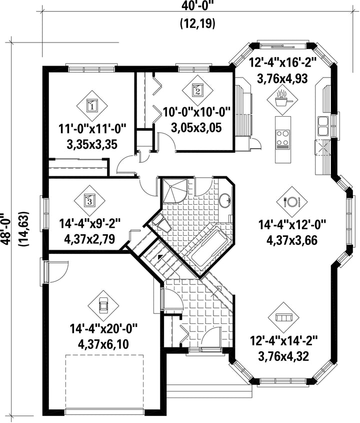
Façade 40 pi Surface habitable totale 1319 pi²
Profondeur 48 piNombre de salles de bain 1
Hauteur 24 pi 10 poNombre de chambres 3
Chambre des maîtres - commentaires Garde-robe
Surface rez-de-chaussée 1319 pi² Finition extérieure Agrégats + Brique
Type de cuisine Coin repas + Laboratoire + Salle à manger + Îlot
Surface garage 315 pi² Garage 1
Mur garage 8 piMur rez-de-chaussée 8 pi
Inclinaison toit avant/arrière 6/12
Inclinaison toit gauche/droite 12/12
Style d'architecture Européen
Coût de construction 
Montant approximatif équivalent à celui d'un entrepreneur général (région de la Rive-Sud de Montréal) pour une construction clé en main sans terrain ni infrastructures.
365392 $
Façade 40 pi
Surface habitable totale 1319 pi²
Profondeur 48 pi
Nombre de salles de bain 1
Hauteur 24 pi 10 po
Nombre de chambres 3
Chambre des maîtres - commentaires Garde-robe
Surface rez-de-chaussée 1319 pi²
Finition extérieure Agrégats + Brique
Type de cuisine Coin repas + Laboratoire + Salle à manger + Îlot
Surface garage 315 pi²
Garage 1
Mur garage 8 pi
Mur rez-de-chaussée 8 pi
Inclinaison toit avant/arrière 6/12
Inclinaison toit gauche/droite 12/12

Ces plans de maison pourraient également vous intéresser


Vu récemment