Description
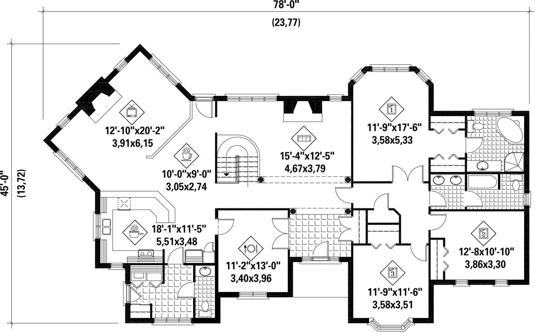
Cette maison de plain-pied de style contemporain mesure 78 pieds de largeur sur 45 pieds de profondeur et offre une surface habitable de 2 444 pieds carrés.
La vaste demeure compte trois chambres à coucher, une salle d’eau, deux salles de bains, une salle de lavage, un salon avec foyer, une cuisine, un coin-repas, une salle à manger et une salle familiale avec un second foyer.
La vaste demeure compte trois chambres à coucher, une salle d’eau, deux salles de bains, une salle de lavage, un salon avec foyer, une cuisine, un coin-repas, une salle à manger et une salle familiale avec un second foyer.
Caractéristiques
Mesures : Impérial| Style d'architecture | Européen |
Coût de construction
Montant approximatif équivalent à celui d'un entrepreneur général (région de la Rive-Sud de Montréal) pour une construction clé en main sans terrain ni infrastructures.
|
647646 $ |
|---|---|---|---|
| Façade | 78 pi | Surface habitable totale | 2444 pi² |
| Profondeur | 45 pi | Nombre de salles de bain | 2 |
| Hauteur | 26 pi 10 po | Nombre de chambres | 3 |
| Chambre des maîtres | Bain podium + Douche + Lavabo simple + Portes doubles + Toilettes | Chambre des maîtres - commentaires | 2 garde-robes |
| Surface rez-de-chaussée | 2444 pi² | Finition extérieure | Brique + Pierre |
| Type de cuisine | Coin repas + Comptoir repas + Forme en U + Salle à manger | ||
| Garage | 0 | ||
| Mur rez-de-chaussée | 8 pi | ||
| Inclinaison toit avant/arrière | 12/12 | ||
| Inclinaison toit gauche/droite | 12/12 |
| Style d'architecture | Européen |
|---|---|
|
Coût de construction
Montant approximatif équivalent à celui d'un entrepreneur général (région de la Rive-Sud de Montréal) pour une construction clé en main sans terrain ni infrastructures.
|
647646 $ |
| Façade | 78 pi |
| Surface habitable totale | 2444 pi² |
| Profondeur | 45 pi |
| Nombre de salles de bain | 2 |
| Hauteur | 26 pi 10 po |
| Nombre de chambres | 3 |
| Chambre des maîtres | Bain podium + Douche + Lavabo simple + Portes doubles + Toilettes |
| Chambre des maîtres - commentaires | 2 garde-robes |
| Surface rez-de-chaussée | 2444 pi² |
| Finition extérieure | Brique + Pierre |
| Type de cuisine | Coin repas + Comptoir repas + Forme en U + Salle à manger |
| Garage | 0 |
| Mur rez-de-chaussée | 8 pi |
| Inclinaison toit avant/arrière | 12/12 |
| Inclinaison toit gauche/droite | 12/12 |