Description
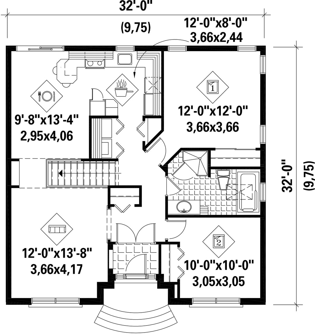
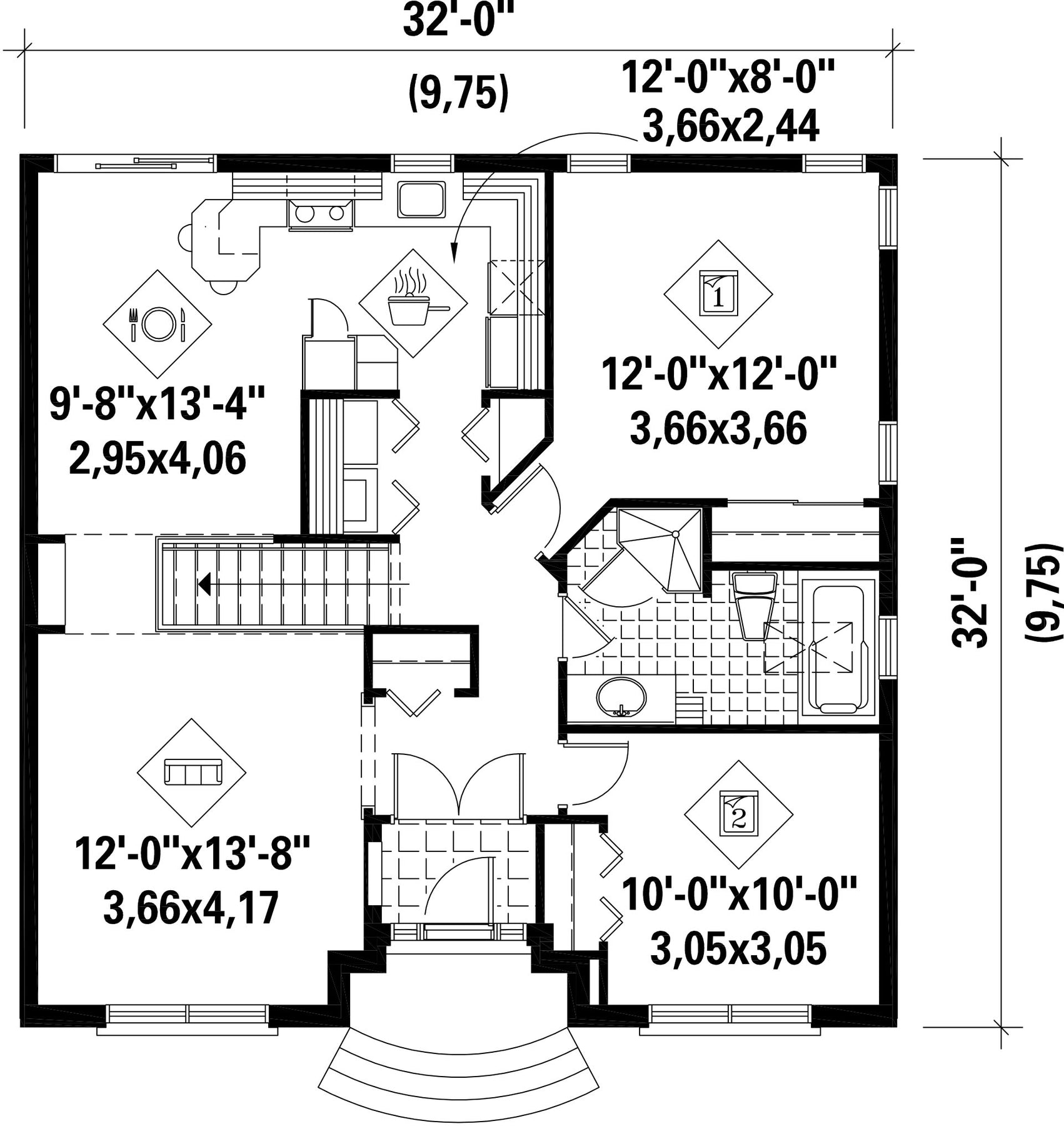
Cette maison de plain-pied présente plusieurs particularités intéressantes comme une façade de briques, un porche avec moulures décoratives, et deux grandes fenêtres à l’avant surmontées d’une clé de voûte. La résidence occupe 32 pieds de largeur sur 32 pieds de profondeur et offre une surface habitable de 1 003 pieds carrés.
Cette demeure comprend un salon, une cuisine en L avec comptoir repas, une salle à manger, deux chambres et une salle de bains.
Cette demeure comprend un salon, une cuisine en L avec comptoir repas, une salle à manger, deux chambres et une salle de bains.
Caractéristiques
Mesures : Impérial| Style d'architecture | Européen |
Coût de construction
Montant approximatif équivalent à celui d'un entrepreneur général (région de la Rive-Sud de Montréal) pour une construction clé en main sans terrain ni infrastructures.
|
238002 $ |
|---|---|---|---|
| Façade | 32 pi | Surface habitable totale | 1003 pi² |
| Profondeur | 32 pi | Nombre de salles de bain | 1 |
| Hauteur | 24 pi | Nombre de chambres | 2 |
| Chambre des maîtres - commentaires | Garde-robe | ||
| Surface rez-de-chaussée | 1003 pi² | Finition extérieure | Agrégats + Aluminium + Brique |
| Type de cuisine | Comptoir repas + Forme en L + Salle à manger | ||
| Garage | 0 | ||
| Mur rez-de-chaussée | 8 pi | ||
| Inclinaison toit avant/arrière | 8/12 | ||
| Inclinaison toit gauche/droite | 12/12 |
| Style d'architecture | Européen |
|---|---|
|
Coût de construction
Montant approximatif équivalent à celui d'un entrepreneur général (région de la Rive-Sud de Montréal) pour une construction clé en main sans terrain ni infrastructures.
|
238002 $ |
| Façade | 32 pi |
| Surface habitable totale | 1003 pi² |
| Profondeur | 32 pi |
| Nombre de salles de bain | 1 |
| Hauteur | 24 pi |
| Nombre de chambres | 2 |
| Chambre des maîtres - commentaires | Garde-robe |
| Surface rez-de-chaussée | 1003 pi² |
| Finition extérieure | Agrégats + Aluminium + Brique |
| Type de cuisine | Comptoir repas + Forme en L + Salle à manger |
| Garage | 0 |
| Mur rez-de-chaussée | 8 pi |
| Inclinaison toit avant/arrière | 8/12 |
| Inclinaison toit gauche/droite | 12/12 |