10047
10047
10047
10047
10047
10047

Jeux de plans - Sets of plans
Prix régulier$1,089.00
/

Ce site est protégé par hCaptcha, et la Politique de confidentialité et les Conditions de service de hCaptcha s’appliquent.

Description

Vivoir entre le rez-de-chaussée et l'étage

Caractéristiques

Mesures : Impérial

Style d'architecture Européen Coût de construction 
Montant approximatif équivalent à celui d'un entrepreneur général (région de la Rive-Sud de Montréal) pour une construction clé en main sans terrain ni infrastructures.
400823 $
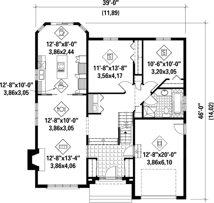
Façade 39 pi Surface habitable totale 1714 pi²
Profondeur 46 piNombre de salles de bain 1
Hauteur 29 pi 7 poNombre de chambres 3
Chambre des maîtres - commentaires ---
Surface rez-de-chaussée 1315 pi² Finition extérieure Aluminium + Brique
Surface étage 399 pi² Type de cuisine Coin repas + Laboratoire + Salle à manger + Îlot
Surface garage 278 pi² Garage 1
Mur garage 8 piMur rez-de-chaussée 10 pi
Mur étage 8 piInclinaison toit avant/arrière 10/12
Inclinaison toit gauche/droite 10/12
Style d'architecture Européen
Coût de construction 
Montant approximatif équivalent à celui d'un entrepreneur général (région de la Rive-Sud de Montréal) pour une construction clé en main sans terrain ni infrastructures.
400823 $
Façade 39 pi
Surface habitable totale 1714 pi²
Profondeur 46 pi
Nombre de salles de bain 1
Hauteur 29 pi 7 po
Nombre de chambres 3
Chambre des maîtres - commentaires ---
Surface rez-de-chaussée 1315 pi²
Finition extérieure Aluminium + Brique
Surface étage 399 pi²
Type de cuisine Coin repas + Laboratoire + Salle à manger + Îlot
Surface garage 278 pi²
Garage 1
Mur garage 8 pi
Mur rez-de-chaussée 10 pi
Mur étage 8 pi
Inclinaison toit avant/arrière 10/12
Inclinaison toit gauche/droite 10/12

Ces plans de maison pourraient également vous intéresser


Vu récemment