Description
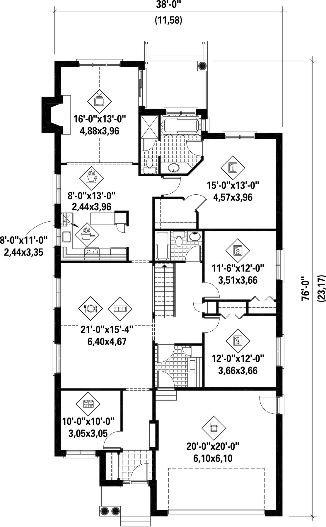
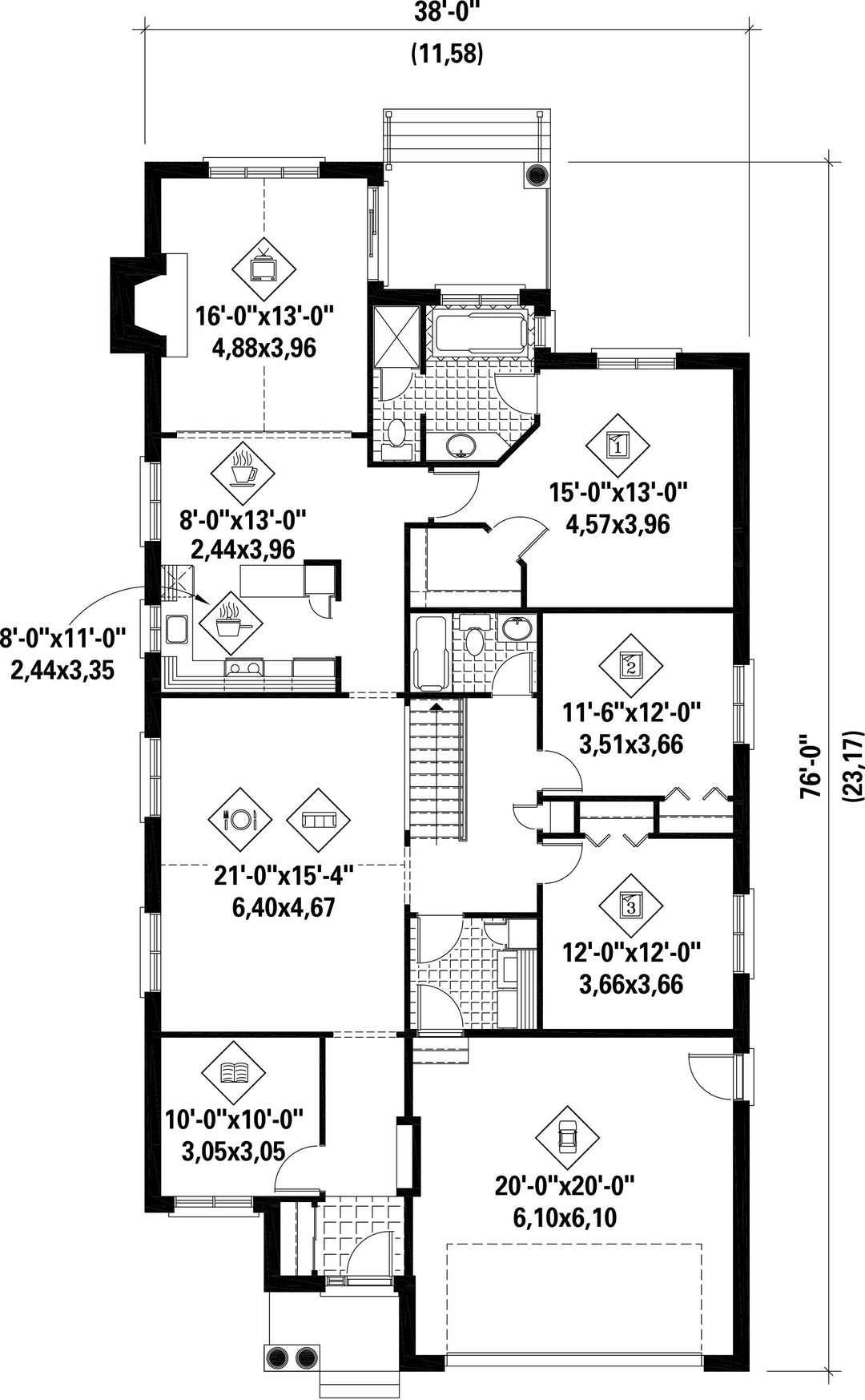
Cette maison de plain-pied se distingue par sa superficie, son revêtement de briques sur les quatre côtés et ses deux colonnes à l’entrée. La demeure mesure 38 pieds de largeur sur 76 pieds de profondeur et offre une surface habitable de 2 091 pieds carrés.
Plusieurs des pièces ont un plafond cathédrale. La résidence comprend une salle de lecture, une salle à manger, un salon, une cuisine avec coin-repas, une salle familiale avec foyer, une salle d’eau, une salle de lavage, une chambre principale avec penderie et salle de bains privée, deux chambres supplémentaires et un garage double de 446 pieds carrés.
Plusieurs des pièces ont un plafond cathédrale. La résidence comprend une salle de lecture, une salle à manger, un salon, une cuisine avec coin-repas, une salle familiale avec foyer, une salle d’eau, une salle de lavage, une chambre principale avec penderie et salle de bains privée, deux chambres supplémentaires et un garage double de 446 pieds carrés.
Caractéristiques
Mesures : Impérial| Style d'architecture | Européen |
Coût de construction
Montant approximatif équivalent à celui d'un entrepreneur général (région de la Rive-Sud de Montréal) pour une construction clé en main sans terrain ni infrastructures.
|
598528 $ |
|---|---|---|---|
| Façade | 76 pi | Surface habitable totale | 2091 pi² |
| Profondeur | 38 pi | Nombre de salles de bain | 2 |
| Hauteur | 25 pi 5 po | Nombre de chambres | 3 |
| Chambre des maîtres | Baignoire + Douche + Lavabo simple + Penderie + Toilettes | Chambre des maîtres - commentaires | Séparation dans la salle de bain |
| Surface rez-de-chaussée | 2091 pi² | Finition extérieure | Brique + Pierre |
| Type de cuisine | Forme en L + Salle à manger + Îlot | ||
| Surface garage | 446 pi² | Garage | 2 |
| Mur garage | 8 pi | Mur rez-de-chaussée | 9 pi |
| Inclinaison toit avant/arrière | 8/12 | ||
| Inclinaison toit gauche/droite | 8/12 |
| Style d'architecture | Européen |
|---|---|
|
Coût de construction
Montant approximatif équivalent à celui d'un entrepreneur général (région de la Rive-Sud de Montréal) pour une construction clé en main sans terrain ni infrastructures.
|
598528 $ |
| Façade | 76 pi |
| Surface habitable totale | 2091 pi² |
| Profondeur | 38 pi |
| Nombre de salles de bain | 2 |
| Hauteur | 25 pi 5 po |
| Nombre de chambres | 3 |
| Chambre des maîtres | Baignoire + Douche + Lavabo simple + Penderie + Toilettes |
| Chambre des maîtres - commentaires | Séparation dans la salle de bain |
| Surface rez-de-chaussée | 2091 pi² |
| Finition extérieure | Brique + Pierre |
| Type de cuisine | Forme en L + Salle à manger + Îlot |
| Surface garage | 446 pi² |
| Garage | 2 |
| Mur garage | 8 pi |
| Mur rez-de-chaussée | 9 pi |
| Inclinaison toit avant/arrière | 8/12 |
| Inclinaison toit gauche/droite | 8/12 |