Description
Ces maisons à étage jumelées de style résolument moderne se distinguent par leur façade de briques, leur fenestration abondante et leur puits de lumière. Elles disposent chacune d’une superficie habitable totale de 1 499 pieds carrés. La disposition des pièces et la superficie des étages sont identiques dans les deux unités.
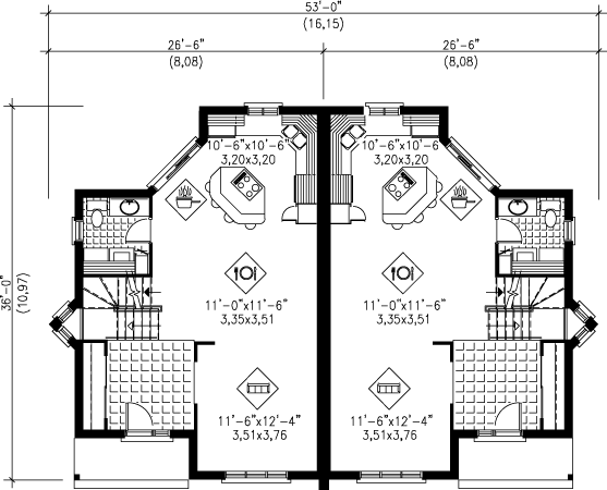
Le rez-de-chaussée de chaque maison a une superficie de 742 pieds carrés et comprend un grand vestibule ouvert avec placard, une salle d’eau avec espace pour la laveuse et la sécheuse, une cuisine en L avec îlot pouvant servir de comptoir repas, ainsi qu’un salon et une salle à manger à aire ouverte.
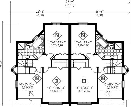
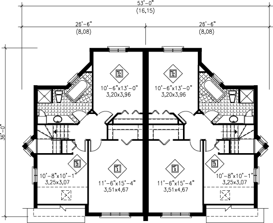
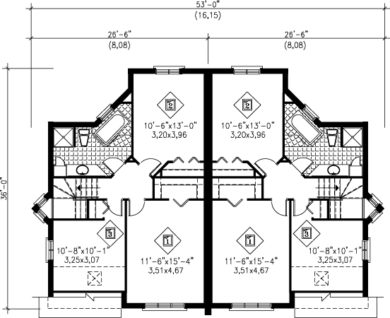
L’étage de 756 pieds carrés est composé d’une salle de bains et de trois chambres, dont une chambre des maîtres disposant d’une grande penderie.
Le rez-de-chaussée de chaque maison a une superficie de 742 pieds carrés et comprend un grand vestibule ouvert avec placard, une salle d’eau avec espace pour la laveuse et la sécheuse, une cuisine en L avec îlot pouvant servir de comptoir repas, ainsi qu’un salon et une salle à manger à aire ouverte.
L’étage de 756 pieds carrés est composé d’une salle de bains et de trois chambres, dont une chambre des maîtres disposant d’une grande penderie.
Caractéristiques
Mesures : Impérial| Style d'architecture | Européen |
Coût de construction
Montant approximatif équivalent à celui d'un entrepreneur général (région de la Rive-Sud de Montréal) pour une construction clé en main sans terrain ni infrastructures.
|
574590 $ |
|---|---|---|---|
| Façade | 53 pi | Surface habitable totale | 2998 pi² |
| Profondeur | 36 pi | Nombre de salles de bain | 2 |
| Hauteur | 27 pi 3 po | Nombre de chambres | 6 |
| Chambre des maîtres - commentaires | Grand walk-in | ||
| Surface rez-de-chaussée | 1485 pi² | Finition extérieure | Aluminium + Brique |
| Surface étage | 1513 pi² | Type de cuisine | Comptoir repas + Forme en L |
| Garage | 0 | ||
| Mur rez-de-chaussée | 8 pi | ||
| Mur étage | 8 pi | Inclinaison toit avant/arrière | 14/12+4/12 |
| Inclinaison toit gauche/droite | 6/12 |
| Style d'architecture | Européen |
|---|---|
|
Coût de construction
Montant approximatif équivalent à celui d'un entrepreneur général (région de la Rive-Sud de Montréal) pour une construction clé en main sans terrain ni infrastructures.
|
574590 $ |
| Façade | 53 pi |
| Surface habitable totale | 2998 pi² |
| Profondeur | 36 pi |
| Nombre de salles de bain | 2 |
| Hauteur | 27 pi 3 po |
| Nombre de chambres | 6 |
| Chambre des maîtres - commentaires | Grand walk-in |
| Surface rez-de-chaussée | 1485 pi² |
| Finition extérieure | Aluminium + Brique |
| Surface étage | 1513 pi² |
| Type de cuisine | Comptoir repas + Forme en L |
| Garage | 0 |
| Mur rez-de-chaussée | 8 pi |
| Mur étage | 8 pi |
| Inclinaison toit avant/arrière | 14/12+4/12 |
| Inclinaison toit gauche/droite | 6/12 |