08902
08902
08902
08902

Jeux de plans - Sets of plans
Prix régulier$1,940.00
/

Ce site est protégé par hCaptcha, et la Politique de confidentialité et les Conditions de service de hCaptcha s’appliquent.

Description

Foyer à 2 faces

Caractéristiques

Mesures : Impérial

Style d'architecture Européen Coût de construction 
Montant approximatif équivalent à celui d'un entrepreneur général (région de la Rive-Sud de Montréal) pour une construction clé en main sans terrain ni infrastructures.
539361 $
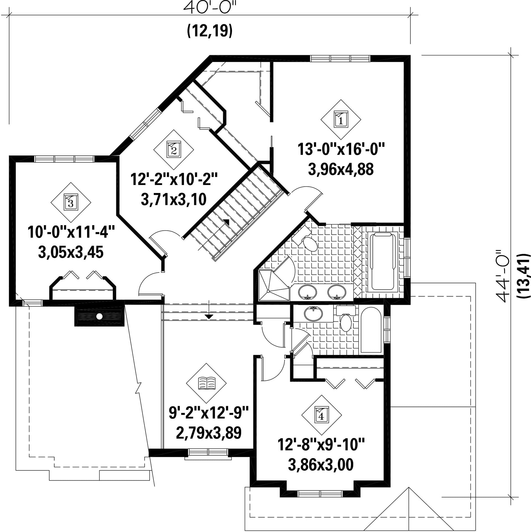
Façade 46 pi Surface habitable totale 2422 pi²
Profondeur 46 piNombre de salles de bain 2
Hauteur 33 pi 5 poNombre de chambres 4
Chambre des maîtres Bain podium + Douche + Lavabo double + Penderie + Toilettes Chambre des maîtres - commentaires Grand walk-in
Surface rez-de-chaussée 1180 pi² Finition extérieure Aluminium + Brique
Surface étage 1242 pi² Type de cuisine Coin repas + Laboratoire
Surface garage 460 pi² Garage 2
Mur garage 8 piMur rez-de-chaussée 9 pi
Mur étage 8 piInclinaison toit avant/arrière 6/12
Style d'architecture Européen
Coût de construction 
Montant approximatif équivalent à celui d'un entrepreneur général (région de la Rive-Sud de Montréal) pour une construction clé en main sans terrain ni infrastructures.
539361 $
Façade 46 pi
Surface habitable totale 2422 pi²
Profondeur 46 pi
Nombre de salles de bain 2
Hauteur 33 pi 5 po
Nombre de chambres 4
Chambre des maîtres Bain podium + Douche + Lavabo double + Penderie + Toilettes
Chambre des maîtres - commentaires Grand walk-in
Surface rez-de-chaussée 1180 pi²
Finition extérieure Aluminium + Brique
Surface étage 1242 pi²
Type de cuisine Coin repas + Laboratoire
Surface garage 460 pi²
Garage 2
Mur garage 8 pi
Mur rez-de-chaussée 9 pi
Mur étage 8 pi
Inclinaison toit avant/arrière 6/12

Ces plans de maison pourraient également vous intéresser


Vu récemment