08192
08192
08192
08192

Jeux de plans - Sets of plans
Prix régulier$1,640.00
/

Ce site est protégé par hCaptcha, et la Politique de confidentialité et les Conditions de service de hCaptcha s’appliquent.

Description

Salle de lecture

Caractéristiques

Mesures : Impérial

Style d'architecture Européen Coût de construction 
Montant approximatif équivalent à celui d'un entrepreneur général (région de la Rive-Sud de Montréal) pour une construction clé en main sans terrain ni infrastructures.
397736 $
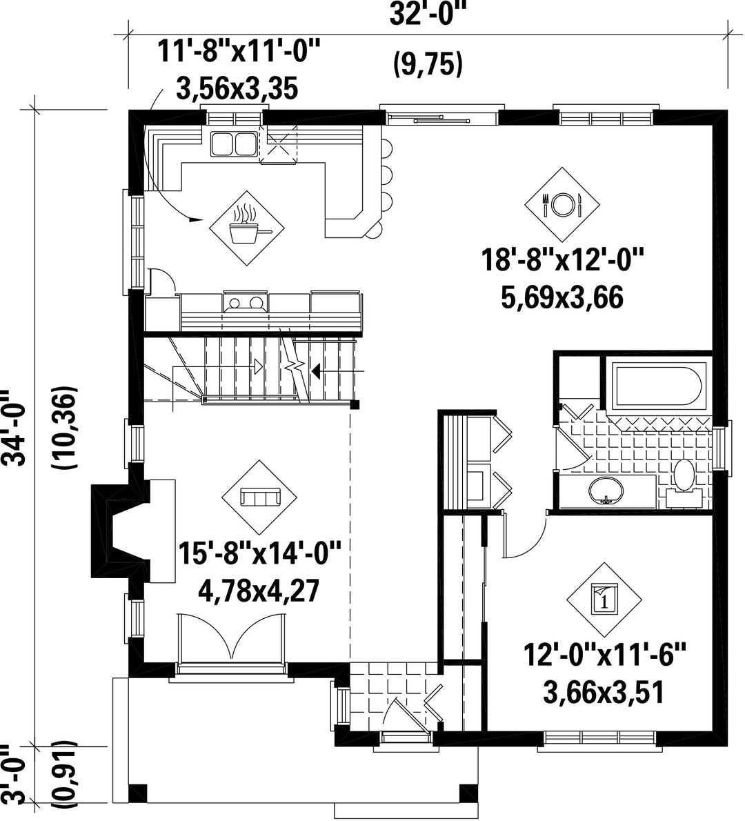
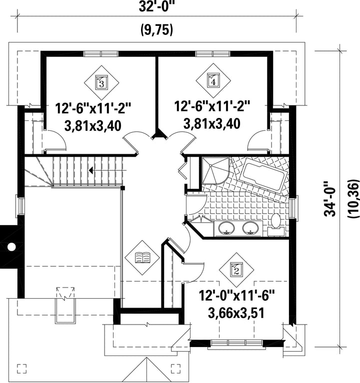
Façade 32 pi Surface habitable totale 1817 pi²
Profondeur 34 piNombre de salles de bain 2
Hauteur 25 pi 9 poNombre de chambres 4
Chambre des maîtres - commentaires Grande fenêtre
Surface rez-de-chaussée 1048 pi² Finition extérieure Aluminium + Brique
Surface étage 769 pi² Type de cuisine Comptoir repas + Forme en U
Garage 0
Mur rez-de-chaussée 8 pi
Mur étage 8 piInclinaison toit avant/arrière 9/12+3,46/12
Style d'architecture Européen
Coût de construction 
Montant approximatif équivalent à celui d'un entrepreneur général (région de la Rive-Sud de Montréal) pour une construction clé en main sans terrain ni infrastructures.
397736 $
Façade 32 pi
Surface habitable totale 1817 pi²
Profondeur 34 pi
Nombre de salles de bain 2
Hauteur 25 pi 9 po
Nombre de chambres 4
Chambre des maîtres - commentaires Grande fenêtre
Surface rez-de-chaussée 1048 pi²
Finition extérieure Aluminium + Brique
Surface étage 769 pi²
Type de cuisine Comptoir repas + Forme en U
Garage 0
Mur rez-de-chaussée 8 pi
Mur étage 8 pi
Inclinaison toit avant/arrière 9/12+3,46/12

Ces plans de maison pourraient également vous intéresser


Vu récemment