08135
08135
08135
08135

Jeux de plans - Sets of plans
Prix régulier$1,565.00
/

Ce site est protégé par hCaptcha, et la Politique de confidentialité et les Conditions de service de hCaptcha s’appliquent.

Description

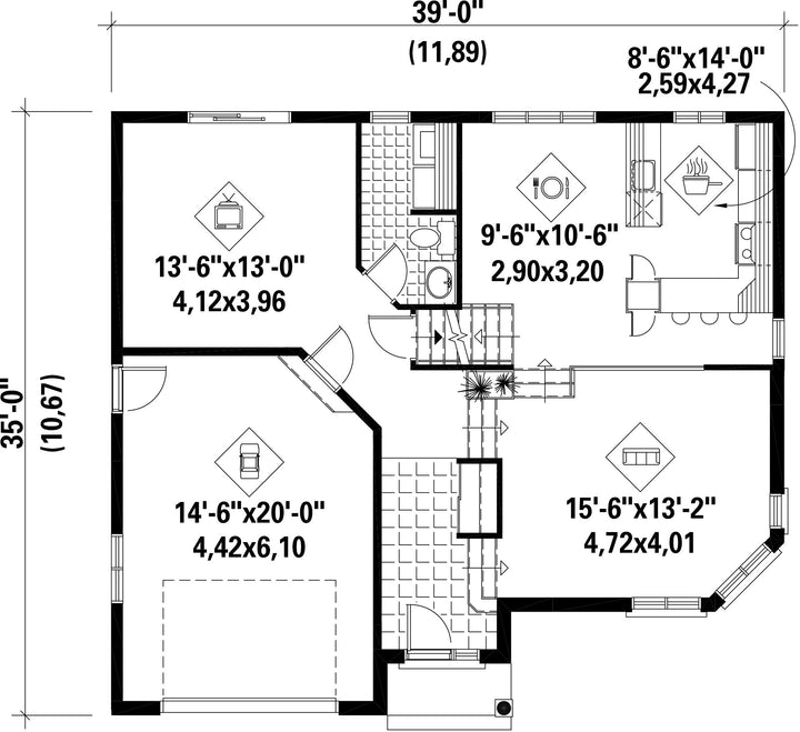
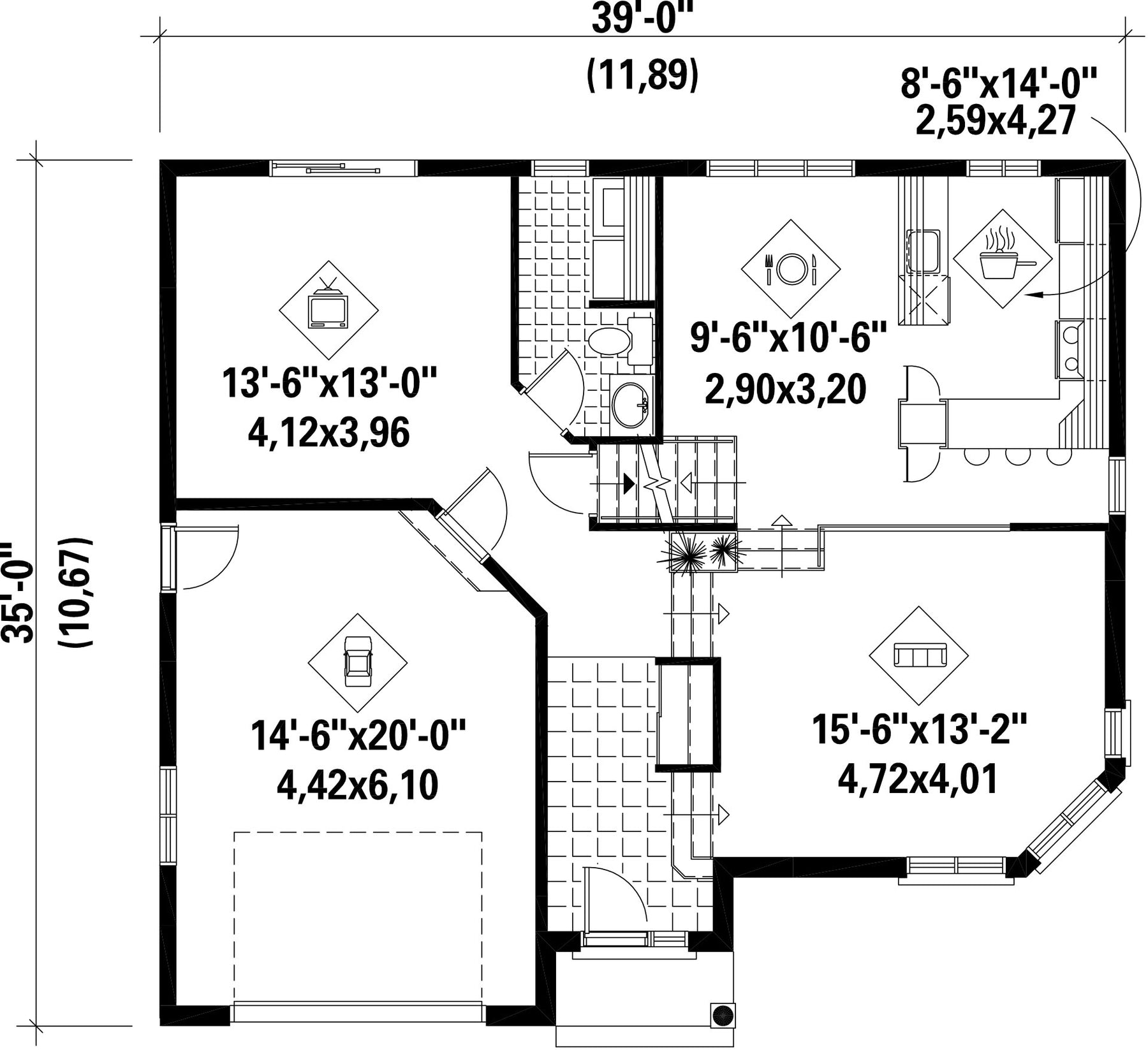
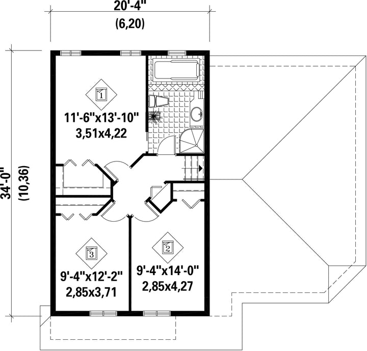
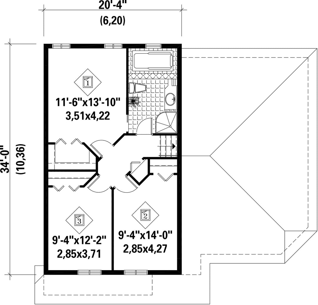
"Salle familiale au niveau du sol 3 chambres à l'étage"

Caractéristiques

Mesures : Impérial

Style d'architecture Européen Coût de construction 
Montant approximatif équivalent à celui d'un entrepreneur général (région de la Rive-Sud de Montréal) pour une construction clé en main sans terrain ni infrastructures.
352843 $
Façade 39 pi Surface habitable totale 1624 pi²
Profondeur 35 piNombre de salles de bain 1
Hauteur 26 pi 10 poNombre de chambres 3
Chambre des maîtres Penderie Chambre des maîtres - commentaires Grande chambre
Surface rez-de-chaussée 932 pi² Finition extérieure Agrégats + Brique
Surface étage 692 pi² Type de cuisine Comptoir repas
Surface garage 310 pi² Garage 1
Mur garage 8 piMur rez-de-chaussée 8 pi
Mur étage 8 piInclinaison toit avant/arrière 8/12
Inclinaison toit gauche/droite 8/12
Style d'architecture Européen
Coût de construction 
Montant approximatif équivalent à celui d'un entrepreneur général (région de la Rive-Sud de Montréal) pour une construction clé en main sans terrain ni infrastructures.
352843 $
Façade 39 pi
Surface habitable totale 1624 pi²
Profondeur 35 pi
Nombre de salles de bain 1
Hauteur 26 pi 10 po
Nombre de chambres 3
Chambre des maîtres Penderie
Chambre des maîtres - commentaires Grande chambre
Surface rez-de-chaussée 932 pi²
Finition extérieure Agrégats + Brique
Surface étage 692 pi²
Type de cuisine Comptoir repas
Surface garage 310 pi²
Garage 1
Mur garage 8 pi
Mur rez-de-chaussée 8 pi
Mur étage 8 pi
Inclinaison toit avant/arrière 8/12
Inclinaison toit gauche/droite 8/12

Ces plans de maison pourraient également vous intéresser


Vu récemment