08002
08002
08002
08002

Jeux de plans - Sets of plans
Prix régulier$2,340.00
/

Ce site est protégé par hCaptcha, et la Politique de confidentialité et les Conditions de service de hCaptcha s’appliquent.

Description

Escalier en rond

Caractéristiques

Mesures : Impérial

Style d'architecture Européen Coût de construction 
Montant approximatif équivalent à celui d'un entrepreneur général (région de la Rive-Sud de Montréal) pour une construction clé en main sans terrain ni infrastructures.
729062 $
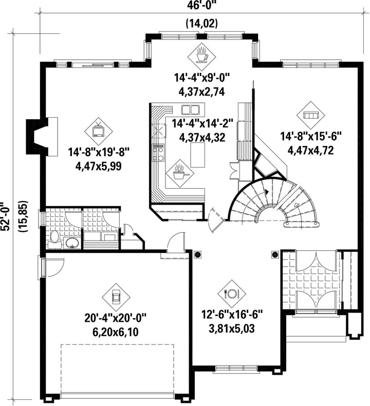
Façade 46 pi Surface habitable totale 3476 pi²
Profondeur 52 piNombre de salles de bain 2
Hauteur 28 pi 3 poNombre de chambres 4
Chambre des maîtres Bain podium + Douche + Lavabo double + Penderie + Portes doubles + Toilettes Chambre des maîtres - commentaires Maquilleuse dans la salle de bain
Surface rez-de-chaussée 1644 pi² Finition extérieure Agrégats + Brique
Surface étage 1832 pi² Type de cuisine Coin repas + Forme en U + Îlot
Surface garage 444 pi² Garage 2
Mur garage 8 piMur rez-de-chaussée 8 pi
Mur étage 8 piInclinaison toit avant/arrière 6/12
Inclinaison toit gauche/droite 6/12
Style d'architecture Européen
Coût de construction 
Montant approximatif équivalent à celui d'un entrepreneur général (région de la Rive-Sud de Montréal) pour une construction clé en main sans terrain ni infrastructures.
729062 $
Façade 46 pi
Surface habitable totale 3476 pi²
Profondeur 52 pi
Nombre de salles de bain 2
Hauteur 28 pi 3 po
Nombre de chambres 4
Chambre des maîtres Bain podium + Douche + Lavabo double + Penderie + Portes doubles + Toilettes
Chambre des maîtres - commentaires Maquilleuse dans la salle de bain
Surface rez-de-chaussée 1644 pi²
Finition extérieure Agrégats + Brique
Surface étage 1832 pi²
Type de cuisine Coin repas + Forme en U + Îlot
Surface garage 444 pi²
Garage 2
Mur garage 8 pi
Mur rez-de-chaussée 8 pi
Mur étage 8 pi
Inclinaison toit avant/arrière 6/12
Inclinaison toit gauche/droite 6/12

Ces plans de maison pourraient également vous intéresser


Vu récemment