07774
07774
07774
07774

Jeux de plans - Sets of plans
Prix régulier$1,565.00
/

Ce site est protégé par hCaptcha, et la Politique de confidentialité et les Conditions de service de hCaptcha s’appliquent.

Description

"Puits de lumière dans la chambre #3 Salon abaissé Salle de lavage au rez-de-chaussée"

Caractéristiques

Mesures : Impérial

Style d'architecture Européen Coût de construction 
Montant approximatif équivalent à celui d'un entrepreneur général (région de la Rive-Sud de Montréal) pour une construction clé en main sans terrain ni infrastructures.
325317 $
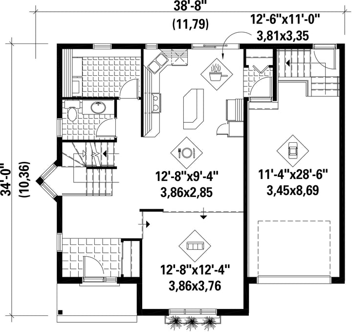
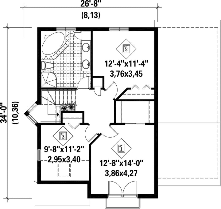
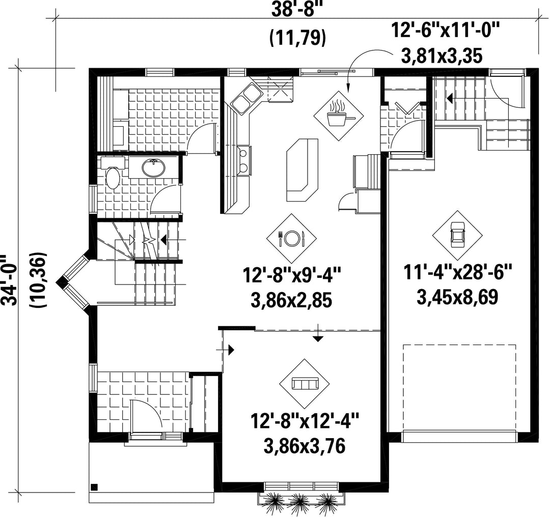
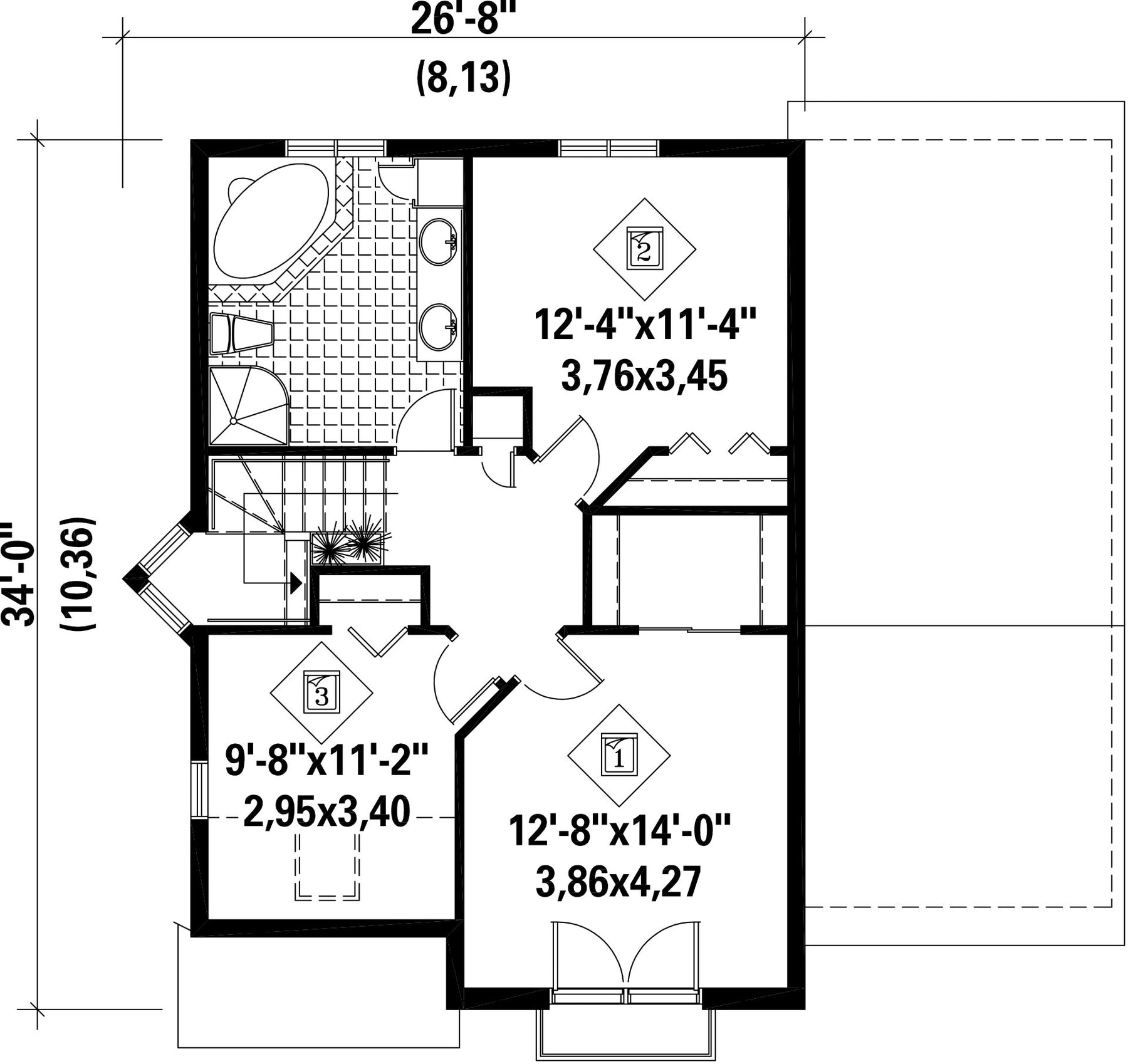
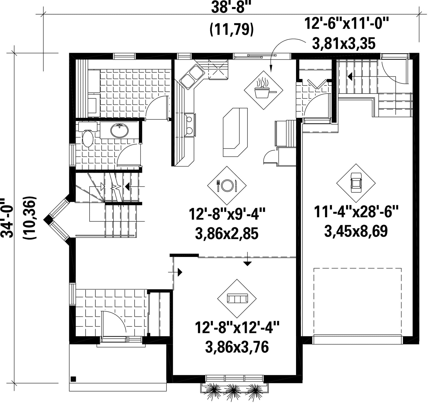
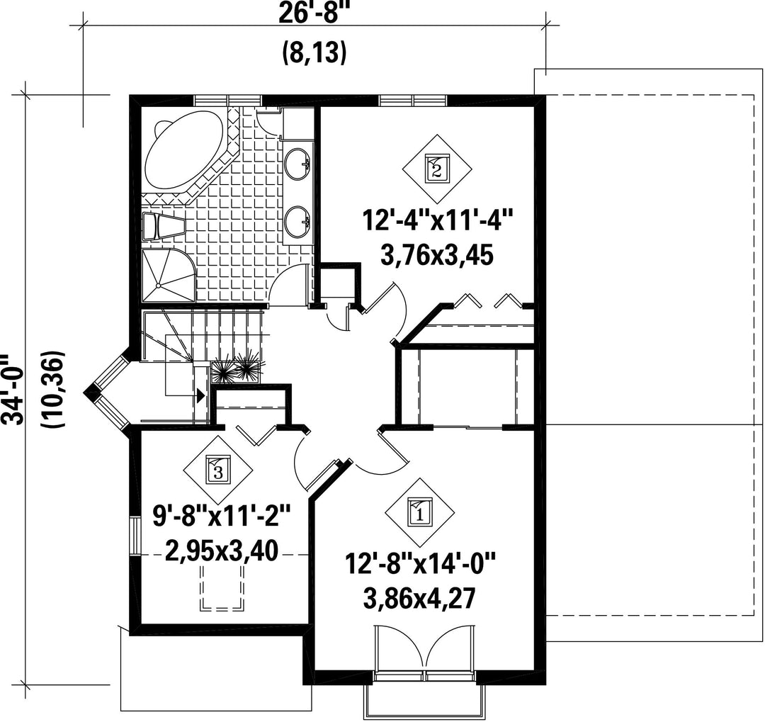
Façade 38 pi 8 po Surface habitable totale 1600 pi²
Profondeur 34 piNombre de salles de bain 1
Hauteur 31 pi 8 poNombre de chambres 3
Chambre des maîtres Penderie Chambre des maîtres - commentaires Petite galerie
Surface rez-de-chaussée 805 pi² Finition extérieure Aluminium + Brique
Surface étage 795 pi² Type de cuisine Comptoir repas + Forme en L + Îlot
Surface garage 338 pi² Garage 1
Mur garage 8 piMur rez-de-chaussée 8 pi
Mur étage 8 piInclinaison toit avant/arrière 12/12+6/12
Style d'architecture Européen
Coût de construction 
Montant approximatif équivalent à celui d'un entrepreneur général (région de la Rive-Sud de Montréal) pour une construction clé en main sans terrain ni infrastructures.
325317 $
Façade 38 pi 8 po
Surface habitable totale 1600 pi²
Profondeur 34 pi
Nombre de salles de bain 1
Hauteur 31 pi 8 po
Nombre de chambres 3
Chambre des maîtres Penderie
Chambre des maîtres - commentaires Petite galerie
Surface rez-de-chaussée 805 pi²
Finition extérieure Aluminium + Brique
Surface étage 795 pi²
Type de cuisine Comptoir repas + Forme en L + Îlot
Surface garage 338 pi²
Garage 1
Mur garage 8 pi
Mur rez-de-chaussée 8 pi
Mur étage 8 pi
Inclinaison toit avant/arrière 12/12+6/12

Ces plans de maison pourraient également vous intéresser


Vu récemment