07012
07012
07012
07012

Jeux de plans - Sets of plans
Prix régulier$1,940.00
/

Ce site est protégé par hCaptcha, et la Politique de confidentialité et les Conditions de service de hCaptcha s’appliquent.

Description

Grandes pièces

Caractéristiques

Mesures : Impérial

Style d'architecture Européen Coût de construction 
Montant approximatif équivalent à celui d'un entrepreneur général (région de la Rive-Sud de Montréal) pour une construction clé en main sans terrain ni infrastructures.
507020 $
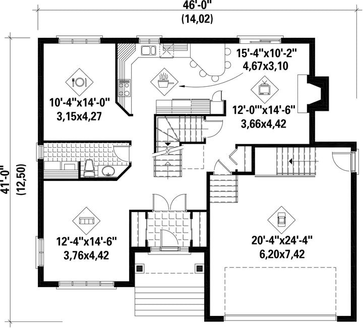
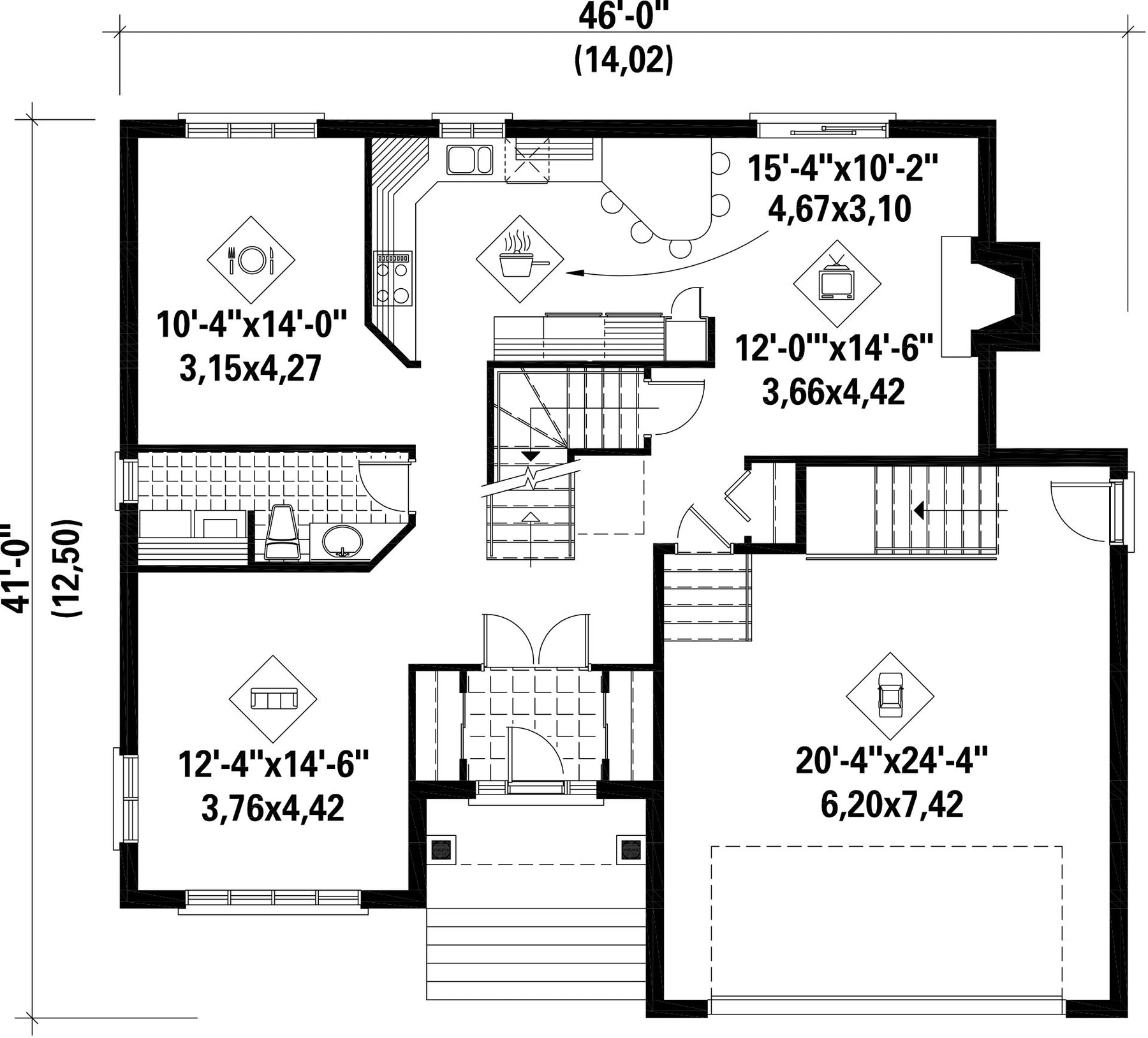
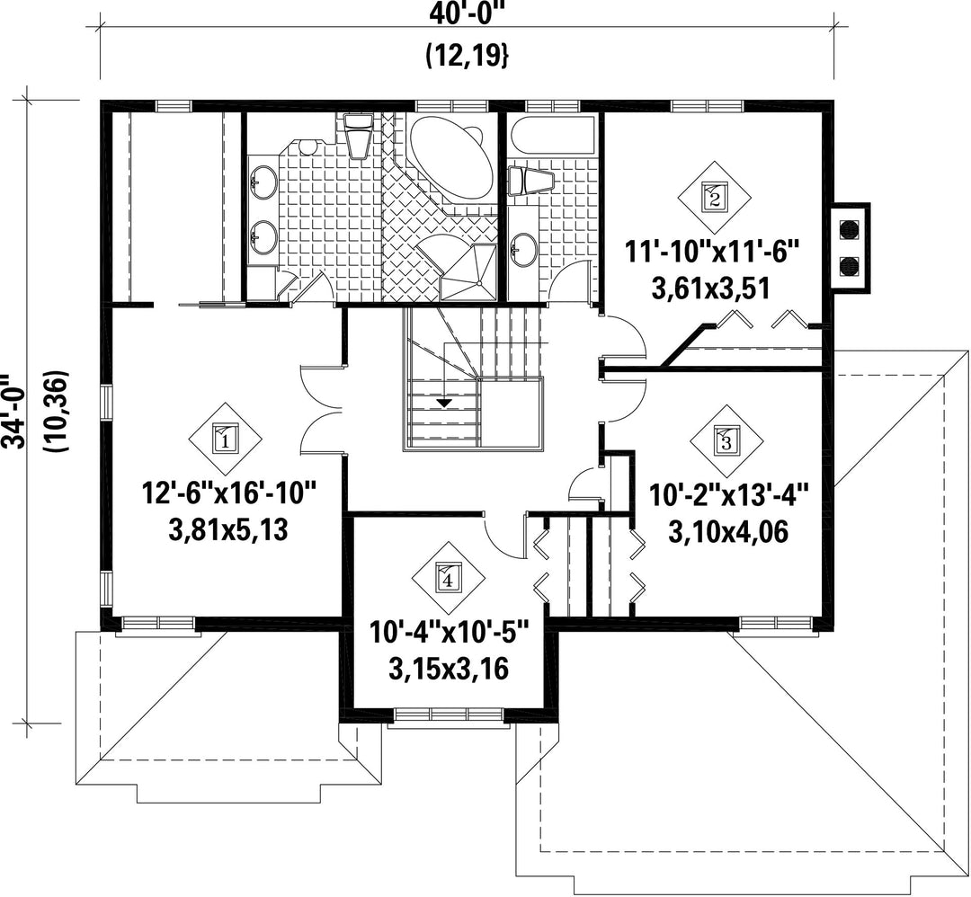
Façade 46 pi Surface habitable totale 2326 pi²
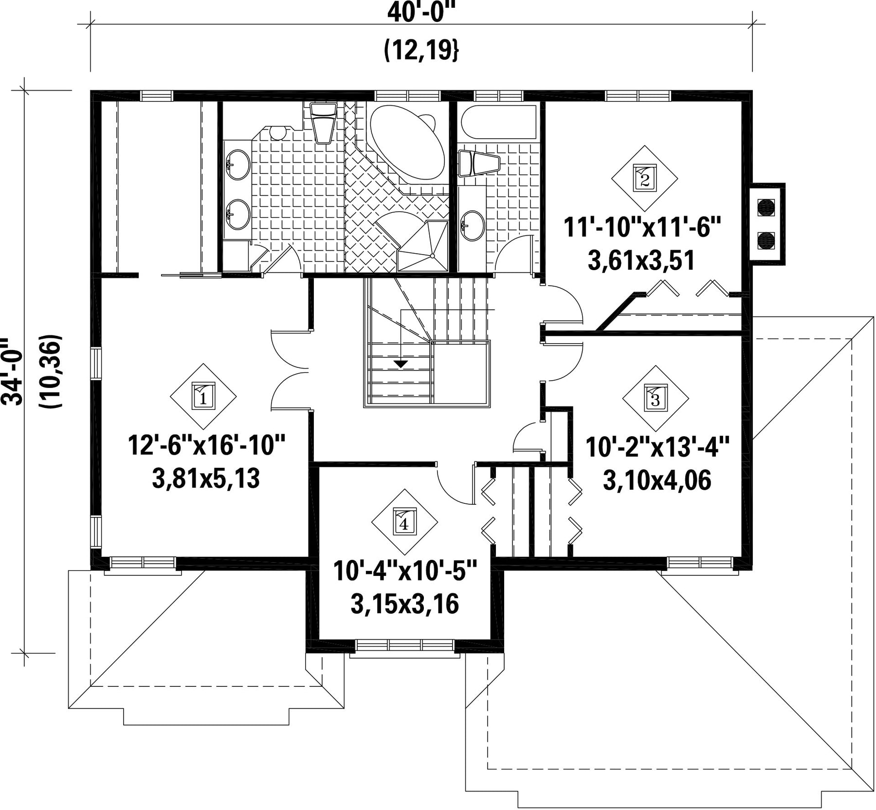
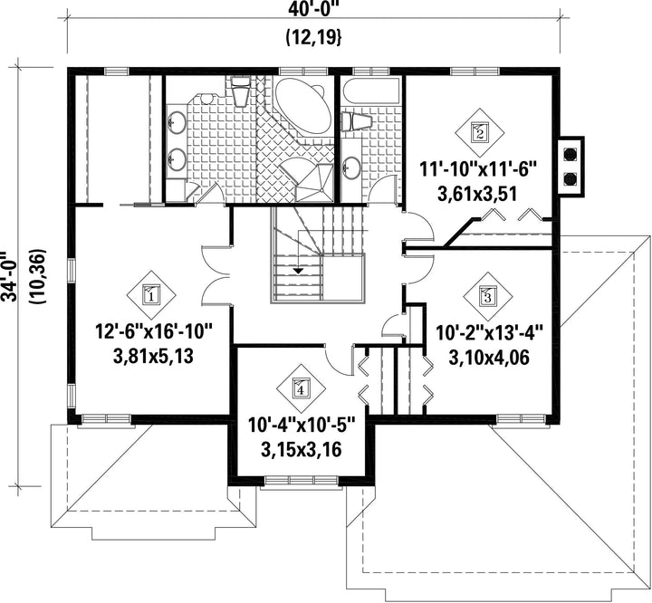
Profondeur 41 piNombre de salles de bain 2
Hauteur 28 piNombre de chambres 4
Chambre des maîtres Bain podium + Douche + Lavabo double + Penderie + Portes doubles Chambre des maîtres - commentaires Maquilleuse
Surface rez-de-chaussée 1106 pi² Finition extérieure Aluminium + Brique
Surface étage 1220 pi² Type de cuisine Comptoir repas + Forme en L
Surface garage 520 pi² Garage 2
Mur garage 8 piMur rez-de-chaussée 8 pi
Mur étage 8 piInclinaison toit avant/arrière 5/12
Inclinaison toit gauche/droite 5/12
Style d'architecture Européen
Coût de construction 
Montant approximatif équivalent à celui d'un entrepreneur général (région de la Rive-Sud de Montréal) pour une construction clé en main sans terrain ni infrastructures.
507020 $
Façade 46 pi
Surface habitable totale 2326 pi²
Profondeur 41 pi
Nombre de salles de bain 2
Hauteur 28 pi
Nombre de chambres 4
Chambre des maîtres Bain podium + Douche + Lavabo double + Penderie + Portes doubles
Chambre des maîtres - commentaires Maquilleuse
Surface rez-de-chaussée 1106 pi²
Finition extérieure Aluminium + Brique
Surface étage 1220 pi²
Type de cuisine Comptoir repas + Forme en L
Surface garage 520 pi²
Garage 2
Mur garage 8 pi
Mur rez-de-chaussée 8 pi
Mur étage 8 pi
Inclinaison toit avant/arrière 5/12
Inclinaison toit gauche/droite 5/12

Ces plans de maison pourraient également vous intéresser


Vu récemment