06957
06957
06957
06957
06957
06957

Jeux de plans - Sets of plans
Prix régulier$1,940.00
/

Ce site est protégé par hCaptcha, et la Politique de confidentialité et les Conditions de service de hCaptcha s’appliquent.

Description

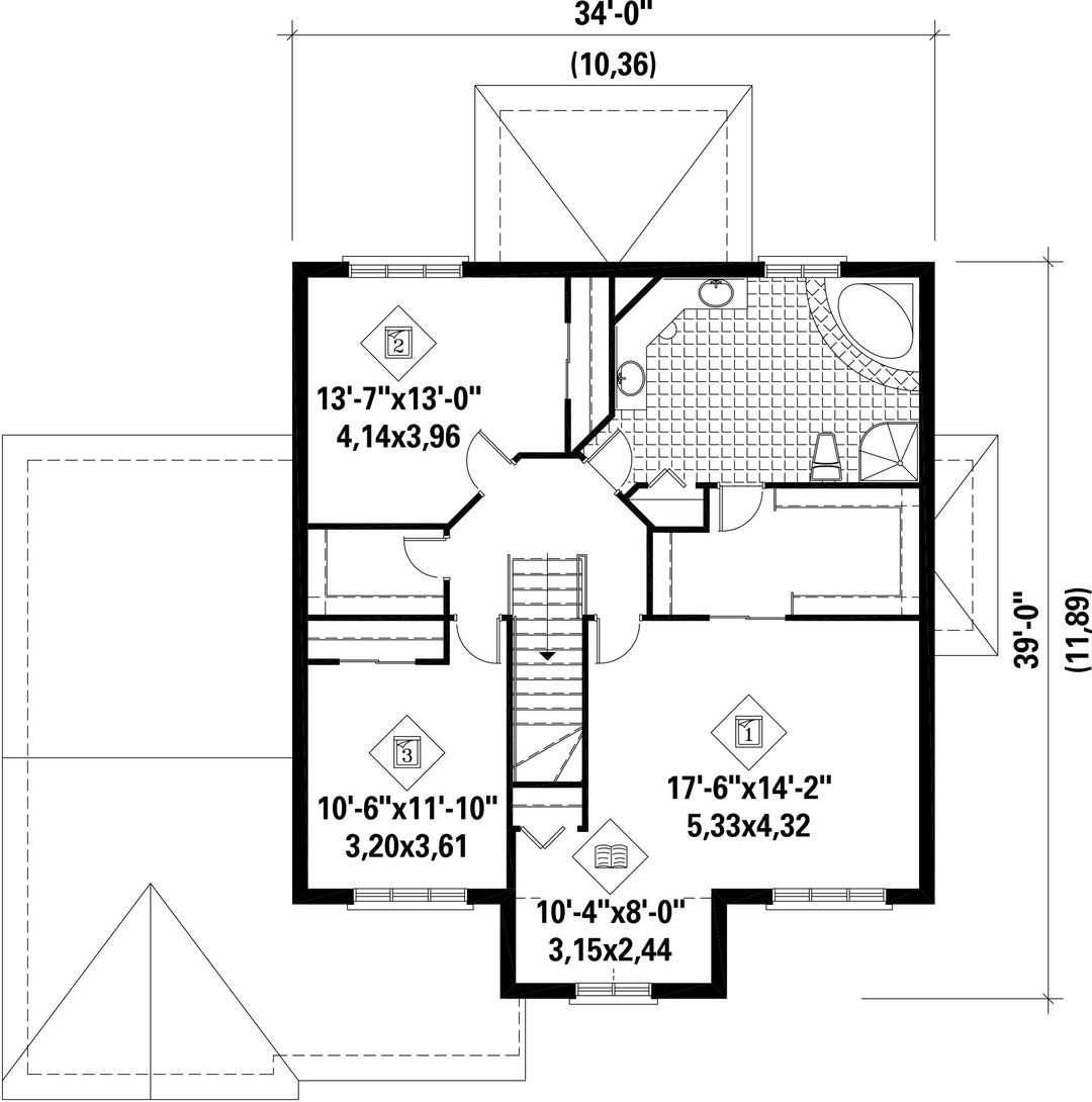
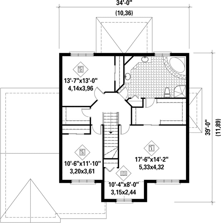
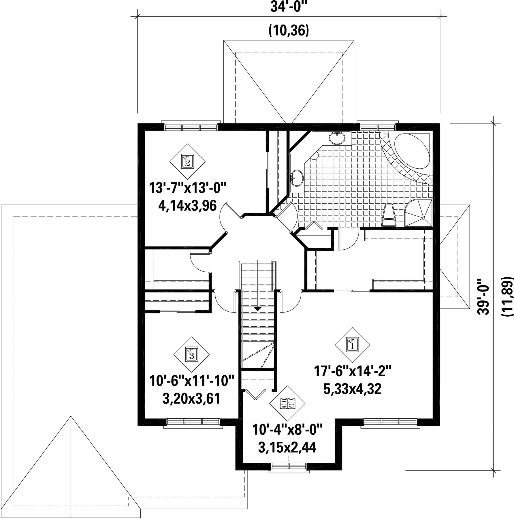
Coin lecture dans la chambre principale

Caractéristiques

Mesures : Impérial

Style d'architecture Européen Coût de construction 
Montant approximatif équivalent à celui d'un entrepreneur général (région de la Rive-Sud de Montréal) pour une construction clé en main sans terrain ni infrastructures.
548975 $
Façade 50 pi Surface habitable totale 2365 pi²
Profondeur 51 piNombre de salles de bain 1
Hauteur 31 piNombre de chambres 3
Chambre des maîtres Penderie Chambre des maîtres - commentaires Accès dans la salle de bain
Surface rez-de-chaussée 1149 pi² Finition extérieure Agrégats + Brique + Pierre
Surface étage 1216 pi² Type de cuisine Coin repas + Comptoir repas + Forme en L
Surface garage 694 pi² Garage 2
Mur garage 8 piMur rez-de-chaussée 8 pi
Mur étage 8 piInclinaison toit avant/arrière 8/12
Inclinaison toit gauche/droite 8/12
Style d'architecture Européen
Coût de construction 
Montant approximatif équivalent à celui d'un entrepreneur général (région de la Rive-Sud de Montréal) pour une construction clé en main sans terrain ni infrastructures.
548975 $
Façade 50 pi
Surface habitable totale 2365 pi²
Profondeur 51 pi
Nombre de salles de bain 1
Hauteur 31 pi
Nombre de chambres 3
Chambre des maîtres Penderie
Chambre des maîtres - commentaires Accès dans la salle de bain
Surface rez-de-chaussée 1149 pi²
Finition extérieure Agrégats + Brique + Pierre
Surface étage 1216 pi²
Type de cuisine Coin repas + Comptoir repas + Forme en L
Surface garage 694 pi²
Garage 2
Mur garage 8 pi
Mur rez-de-chaussée 8 pi
Mur étage 8 pi
Inclinaison toit avant/arrière 8/12
Inclinaison toit gauche/droite 8/12

Ces plans de maison pourraient également vous intéresser


Vu récemment