06427
06427
06427
06427
06427
06427

Jeux de plans - Sets of plans
Prix régulier$1,440.00
/

Ce site est protégé par hCaptcha, et la Politique de confidentialité et les Conditions de service de hCaptcha s’appliquent.

Description

Pièces de bonnes dimensions

Caractéristiques

Mesures : Impérial

Style d'architecture Européen Coût de construction 
Montant approximatif équivalent à celui d'un entrepreneur général (région de la Rive-Sud de Montréal) pour une construction clé en main sans terrain ni infrastructures.
254285 $
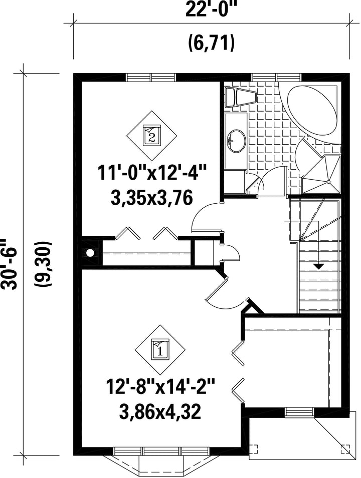
Façade 22 pi Surface habitable totale 1302 pi²
Profondeur 32 piNombre de salles de bain 1
Hauteur 29 piNombre de chambres 2
Chambre des maîtres Penderie Chambre des maîtres - commentaires Grande fenêtre, fenêtre dans la penderie
Surface rez-de-chaussée 655 pi² Finition extérieure Agrégats + Brique
Surface étage 647 pi² Type de cuisine Comptoir repas + Forme en L
Garage 0
Mur rez-de-chaussée 8 pi
Mur étage 8 piInclinaison toit avant/arrière 8/12
Inclinaison toit gauche/droite 12/12
Style d'architecture Européen
Coût de construction 
Montant approximatif équivalent à celui d'un entrepreneur général (région de la Rive-Sud de Montréal) pour une construction clé en main sans terrain ni infrastructures.
254285 $
Façade 22 pi
Surface habitable totale 1302 pi²
Profondeur 32 pi
Nombre de salles de bain 1
Hauteur 29 pi
Nombre de chambres 2
Chambre des maîtres Penderie
Chambre des maîtres - commentaires Grande fenêtre, fenêtre dans la penderie
Surface rez-de-chaussée 655 pi²
Finition extérieure Agrégats + Brique
Surface étage 647 pi²
Type de cuisine Comptoir repas + Forme en L
Garage 0
Mur rez-de-chaussée 8 pi
Mur étage 8 pi
Inclinaison toit avant/arrière 8/12
Inclinaison toit gauche/droite 12/12

Ces plans de maison pourraient également vous intéresser


Vu récemment