06316
06316
06316
06316

Jeux de plans - Sets of plans
Prix régulier$1,440.00
/

Ce site est protégé par hCaptcha, et la Politique de confidentialité et les Conditions de service de hCaptcha s’appliquent.

Description

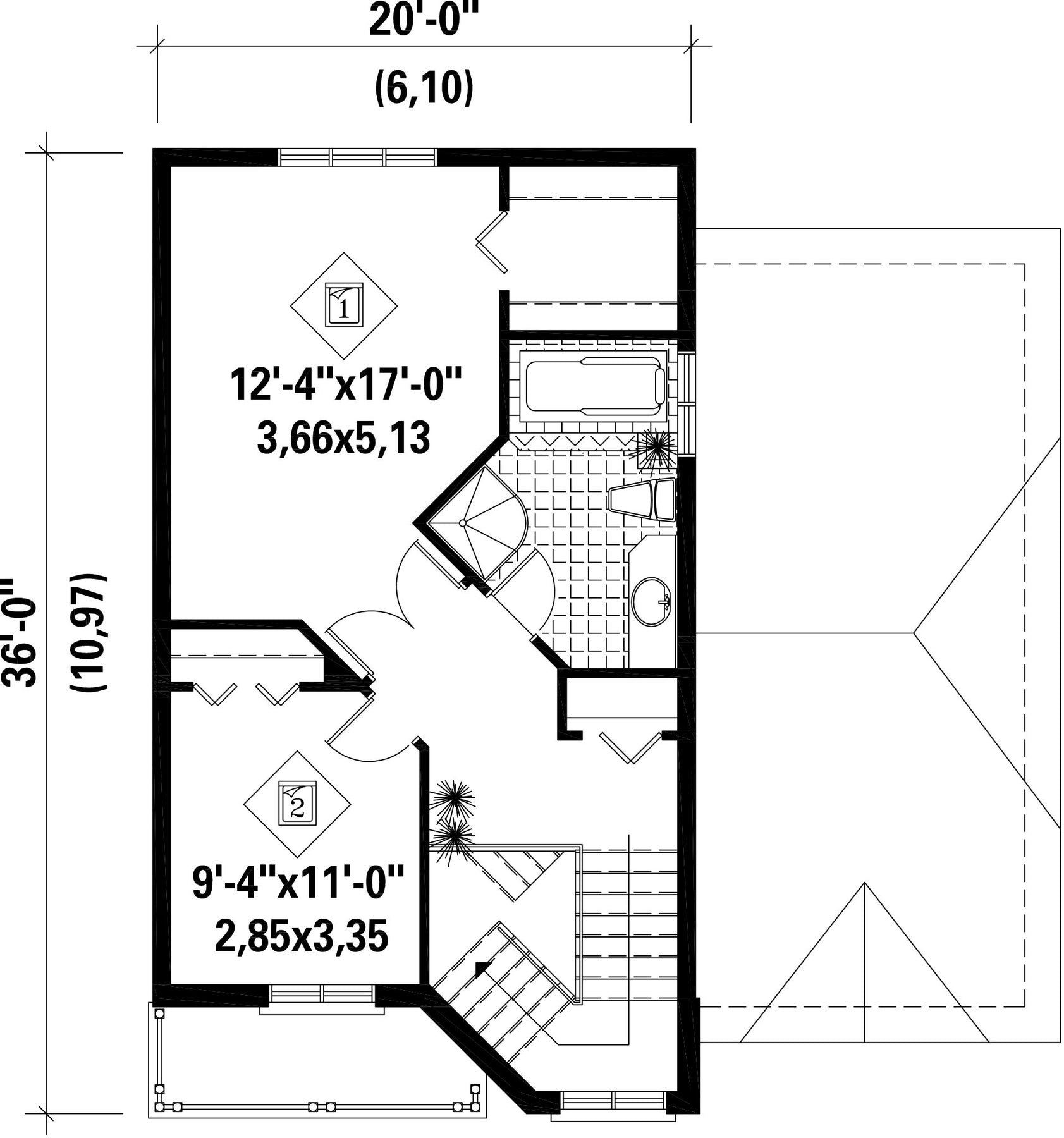
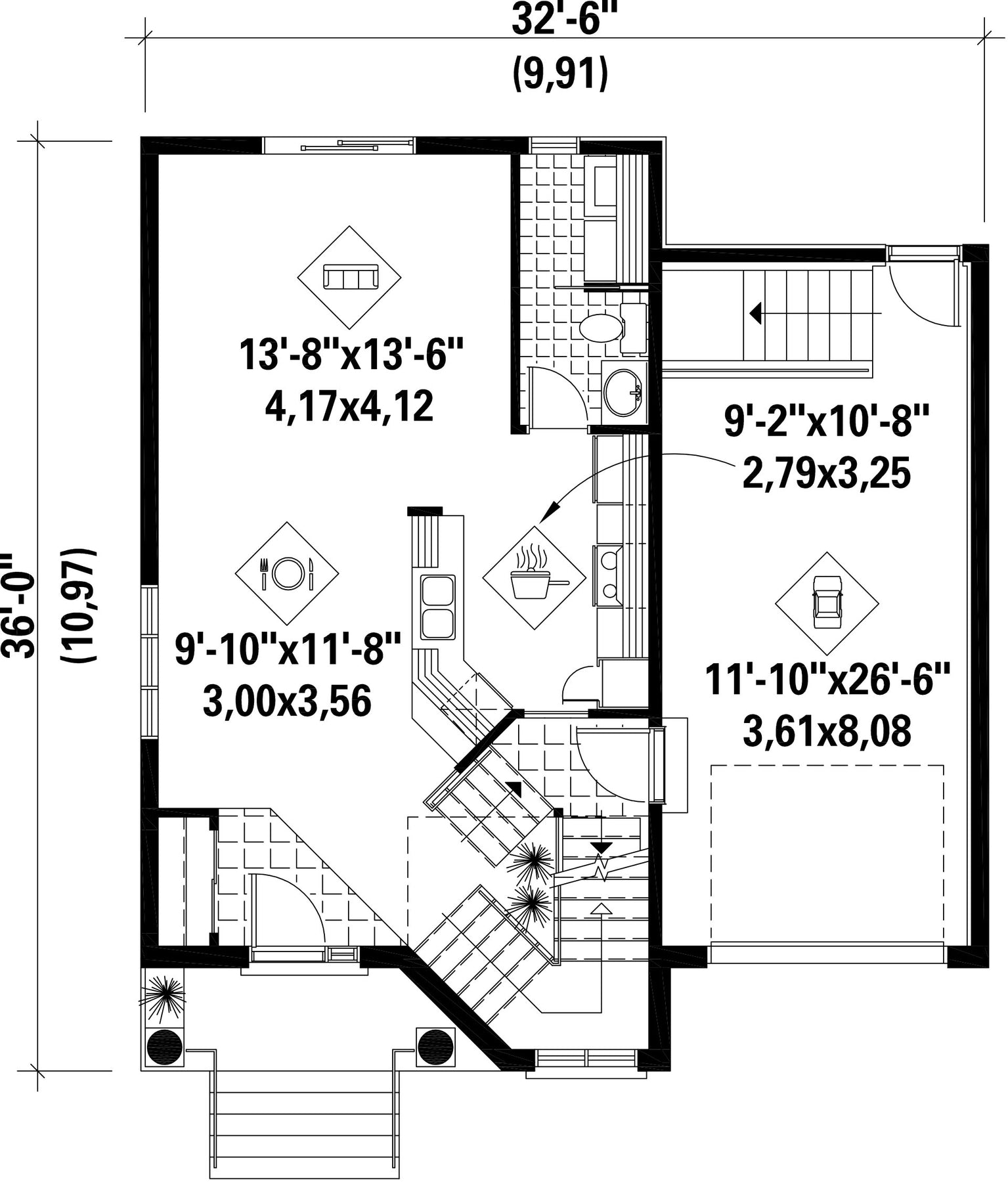
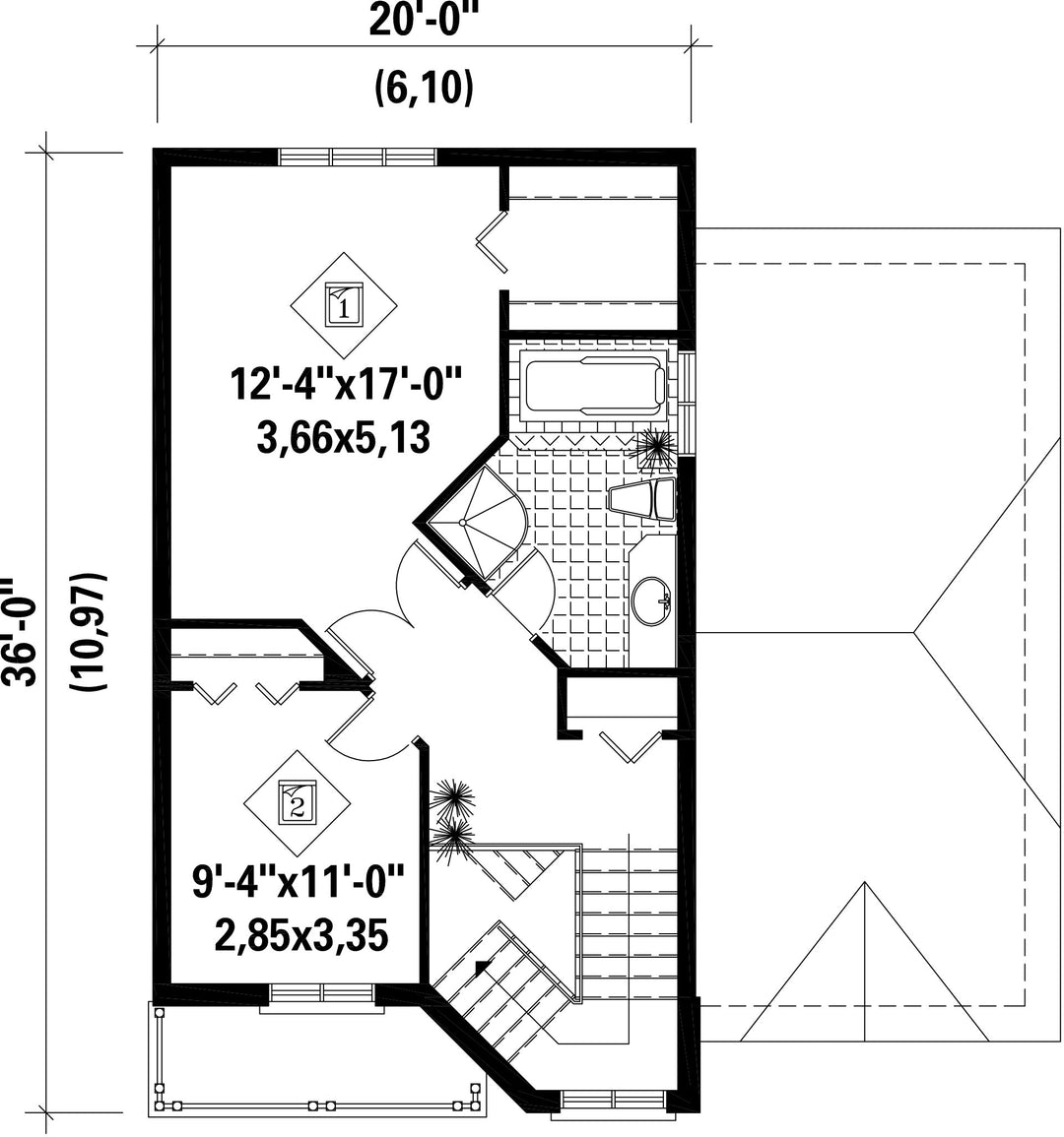
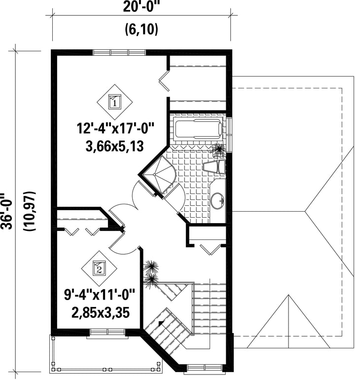
Vue sur le rez-de-chaussée de l'étage

Caractéristiques

Mesures : Impérial

Style d'architecture Européen Coût de construction 
Montant approximatif équivalent à celui d'un entrepreneur général (région de la Rive-Sud de Montréal) pour une construction clé en main sans terrain ni infrastructures.
278904 $
Façade 32 pi 6 po Surface habitable totale 1348 pi²
Profondeur 36 piNombre de salles de bain 1
Hauteur 30 pi 8 poNombre de chambres 2
Chambre des maîtres Penderie + Portes doubles Chambre des maîtres - commentaires Grande chambre
Surface rez-de-chaussée 674 pi² Finition extérieure Aluminium + Brique
Surface étage 674 pi² Type de cuisine Forme en U
Surface garage 350 pi² Garage 1
Mur garage 8 piMur rez-de-chaussée 8 pi
Mur étage 8 piInclinaison toit avant/arrière 6/12
Style d'architecture Européen
Coût de construction 
Montant approximatif équivalent à celui d'un entrepreneur général (région de la Rive-Sud de Montréal) pour une construction clé en main sans terrain ni infrastructures.
278904 $
Façade 32 pi 6 po
Surface habitable totale 1348 pi²
Profondeur 36 pi
Nombre de salles de bain 1
Hauteur 30 pi 8 po
Nombre de chambres 2
Chambre des maîtres Penderie + Portes doubles
Chambre des maîtres - commentaires Grande chambre
Surface rez-de-chaussée 674 pi²
Finition extérieure Aluminium + Brique
Surface étage 674 pi²
Type de cuisine Forme en U
Surface garage 350 pi²
Garage 1
Mur garage 8 pi
Mur rez-de-chaussée 8 pi
Mur étage 8 pi
Inclinaison toit avant/arrière 6/12

Ces plans de maison pourraient également vous intéresser


Vu récemment