06157
06157
06157
06157
06157
06157

Jeux de plans - Sets of plans
Prix régulier$2,390.00
/

Ce site est protégé par hCaptcha, et la Politique de confidentialité et les Conditions de service de hCaptcha s’appliquent.

Description

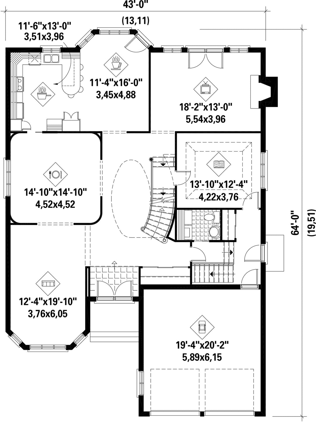
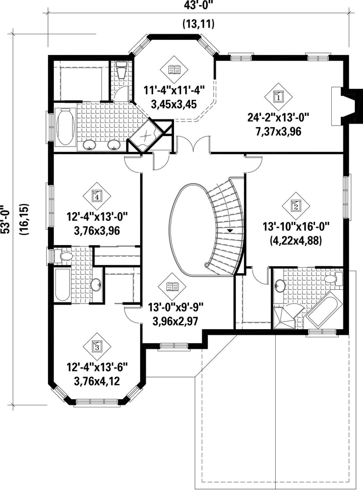
"Salle de lecture au rez-de-chaussée Salle familiale avec foyer Escalier de forme ovale Mezzanine à l'étage"

Caractéristiques

Mesures : Impérial

Style d'architecture Européen Coût de construction 
Montant approximatif équivalent à celui d'un entrepreneur général (région de la Rive-Sud de Montréal) pour une construction clé en main sans terrain ni infrastructures.
834134 $
Façade 43 pi Surface habitable totale 3798 pi²
Profondeur 64 piNombre de salles de bain 3
Hauteur 36 piNombre de chambres 4
Chambre des maîtres Bain podium + Douche + Foyer + Lavabo double + Penderie + Portes doubles + Toilettes Chambre des maîtres - commentaires Walk-in dans la salle de bain
Surface rez-de-chaussée 1899 pi² Finition extérieure Brique
Surface étage 1899 pi² Type de cuisine Coin repas + Comptoir repas + Forme en U + Salle à manger
Surface garage 439 pi² Garage 2
Mur garage 8 piMur rez-de-chaussée 9 pi
Mur étage 8 piInclinaison toit avant/arrière 8/12
Inclinaison toit gauche/droite 8/12
Style d'architecture Européen
Coût de construction 
Montant approximatif équivalent à celui d'un entrepreneur général (région de la Rive-Sud de Montréal) pour une construction clé en main sans terrain ni infrastructures.
834134 $
Façade 43 pi
Surface habitable totale 3798 pi²
Profondeur 64 pi
Nombre de salles de bain 3
Hauteur 36 pi
Nombre de chambres 4
Chambre des maîtres Bain podium + Douche + Foyer + Lavabo double + Penderie + Portes doubles + Toilettes
Chambre des maîtres - commentaires Walk-in dans la salle de bain
Surface rez-de-chaussée 1899 pi²
Finition extérieure Brique
Surface étage 1899 pi²
Type de cuisine Coin repas + Comptoir repas + Forme en U + Salle à manger
Surface garage 439 pi²
Garage 2
Mur garage 8 pi
Mur rez-de-chaussée 9 pi
Mur étage 8 pi
Inclinaison toit avant/arrière 8/12
Inclinaison toit gauche/droite 8/12

Ces plans de maison pourraient également vous intéresser


Vu récemment