06037
06037
06037
06037
06037
06037

Jeux de plans - Sets of plans
Prix régulier$2,140.00
/

Ce site est protégé par hCaptcha, et la Politique de confidentialité et les Conditions de service de hCaptcha s’appliquent.

Description

"Vestibule fermé Salle familiale avec foyer"

Caractéristiques

Mesures : Impérial

Style d'architecture Européen Coût de construction 
Montant approximatif équivalent à celui d'un entrepreneur général (région de la Rive-Sud de Montréal) pour une construction clé en main sans terrain ni infrastructures.
573759 $
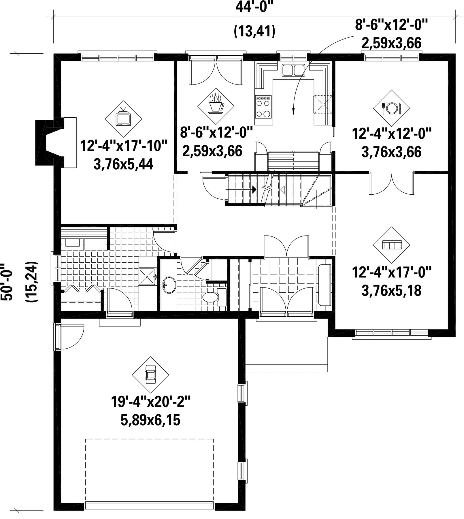
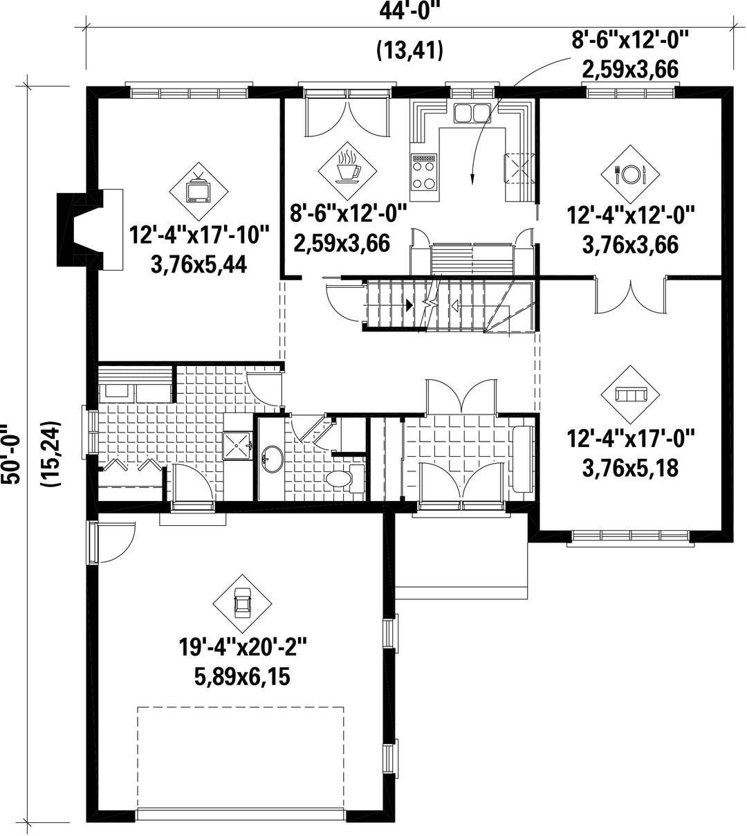
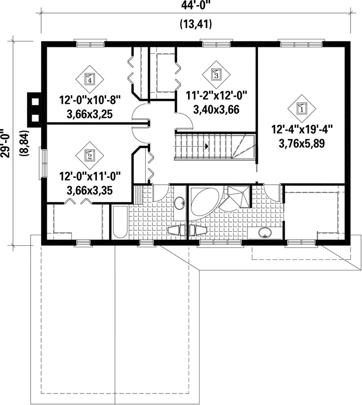
Façade 44 pi Surface habitable totale 2580 pi²
Profondeur 50 piNombre de salles de bain 2
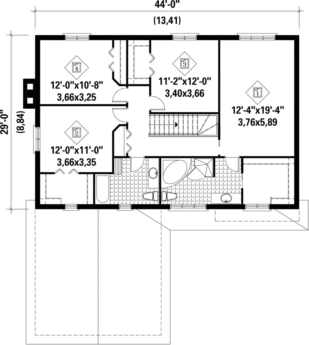
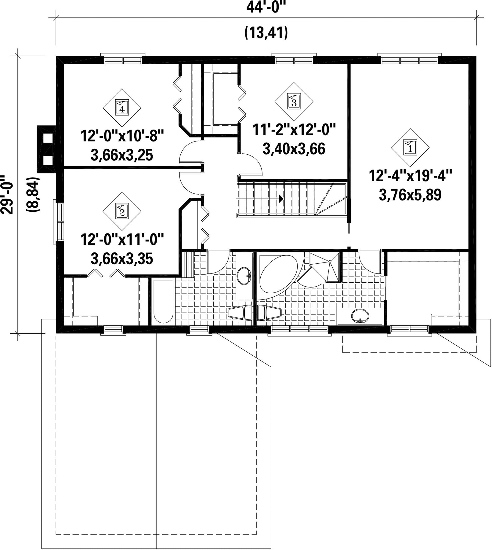
Hauteur 30 piNombre de chambres 4
Chambre des maîtres Bain podium + Douche + Lavabo simple + Penderie + Toilettes Chambre des maîtres - commentaires Porte coulissante dans la chambre et penderie
Surface rez-de-chaussée 1304 pi² Finition extérieure Brique
Surface étage 1276 pi² Type de cuisine Coin repas + Forme en U + Salle à manger
Surface garage 441 pi² Garage 2
Mur garage 8 piMur rez-de-chaussée 8 pi
Mur étage 8 piInclinaison toit avant/arrière 8/12
Inclinaison toit gauche/droite 8/12
Style d'architecture Européen
Coût de construction 
Montant approximatif équivalent à celui d'un entrepreneur général (région de la Rive-Sud de Montréal) pour une construction clé en main sans terrain ni infrastructures.
573759 $
Façade 44 pi
Surface habitable totale 2580 pi²
Profondeur 50 pi
Nombre de salles de bain 2
Hauteur 30 pi
Nombre de chambres 4
Chambre des maîtres Bain podium + Douche + Lavabo simple + Penderie + Toilettes
Chambre des maîtres - commentaires Porte coulissante dans la chambre et penderie
Surface rez-de-chaussée 1304 pi²
Finition extérieure Brique
Surface étage 1276 pi²
Type de cuisine Coin repas + Forme en U + Salle à manger
Surface garage 441 pi²
Garage 2
Mur garage 8 pi
Mur rez-de-chaussée 8 pi
Mur étage 8 pi
Inclinaison toit avant/arrière 8/12
Inclinaison toit gauche/droite 8/12

Ces plans de maison pourraient également vous intéresser


Vu récemment