04826
04826
04826
04826
04826
04826

Jeux de plans - Sets of plans
Prix régulier$2,340.00
/

Ce site est protégé par hCaptcha, et la Politique de confidentialité et les Conditions de service de hCaptcha s’appliquent.

Description

Cinéma maison

Caractéristiques

Mesures : Impérial

Style d'architecture Européen Coût de construction 
Montant approximatif équivalent à celui d'un entrepreneur général (région de la Rive-Sud de Montréal) pour une construction clé en main sans terrain ni infrastructures.
635193 $
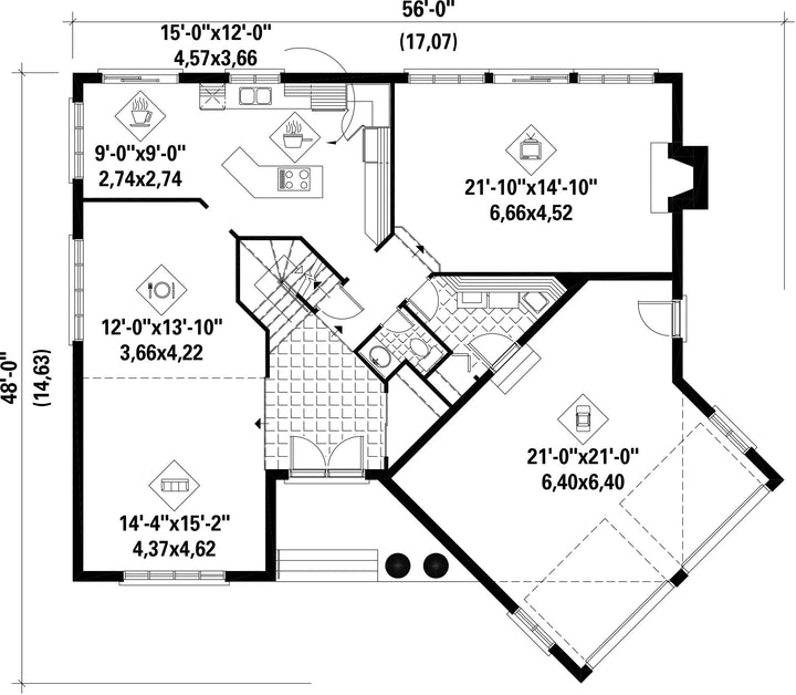
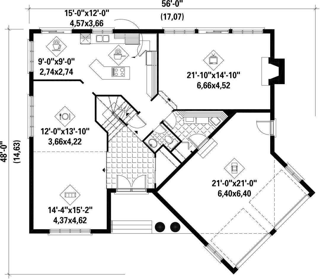
Façade 56 pi Surface habitable totale 3250 pi²
Profondeur 48 piNombre de salles de bain 2
Hauteur 30 pi 8 poNombre de chambres 4
Chambre des maîtres Bain podium + Douche + Lavabo double + Penderie + Portes doubles Chambre des maîtres - commentaires Salle de lecture
Surface rez-de-chaussée 1426 pi² Finition extérieure Agrégats + Brique
Surface étage 1824 pi² Type de cuisine Coin repas + Forme en L + Salle à manger + Îlot
Surface garage 527 pi² Garage 2
Mur garage 8 piMur rez-de-chaussée 8 pi
Mur étage 8 piInclinaison toit avant/arrière 6/12
Inclinaison toit gauche/droite 6/12
Style d'architecture Européen
Coût de construction 
Montant approximatif équivalent à celui d'un entrepreneur général (région de la Rive-Sud de Montréal) pour une construction clé en main sans terrain ni infrastructures.
635193 $
Façade 56 pi
Surface habitable totale 3250 pi²
Profondeur 48 pi
Nombre de salles de bain 2
Hauteur 30 pi 8 po
Nombre de chambres 4
Chambre des maîtres Bain podium + Douche + Lavabo double + Penderie + Portes doubles
Chambre des maîtres - commentaires Salle de lecture
Surface rez-de-chaussée 1426 pi²
Finition extérieure Agrégats + Brique
Surface étage 1824 pi²
Type de cuisine Coin repas + Forme en L + Salle à manger + Îlot
Surface garage 527 pi²
Garage 2
Mur garage 8 pi
Mur rez-de-chaussée 8 pi
Mur étage 8 pi
Inclinaison toit avant/arrière 6/12
Inclinaison toit gauche/droite 6/12

Ces plans de maison pourraient également vous intéresser


Vu récemment