04821
04821
04821
04821

Jeux de plans - Sets of plans
Prix régulier$2,140.00
/

Ce site est protégé par hCaptcha, et la Politique de confidentialité et les Conditions de service de hCaptcha s’appliquent.

Description

"Coin lecture à l'étage (mezzanine) Escalier ouvert Salle familiale avec foyer"

Caractéristiques

Mesures : Impérial

Style d'architecture Européen Coût de construction 
Montant approximatif équivalent à celui d'un entrepreneur général (région de la Rive-Sud de Montréal) pour une construction clé en main sans terrain ni infrastructures.
567941 $
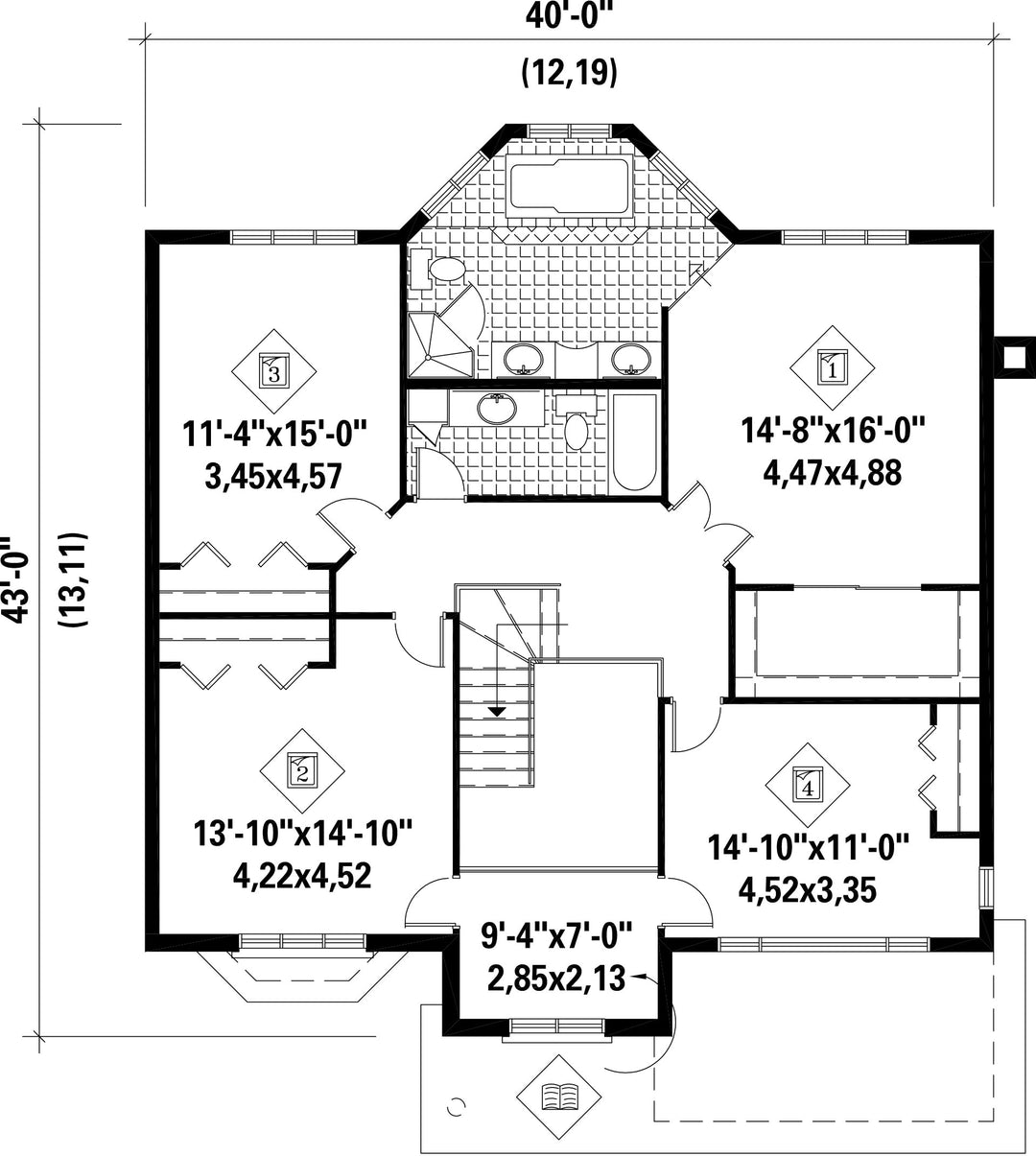
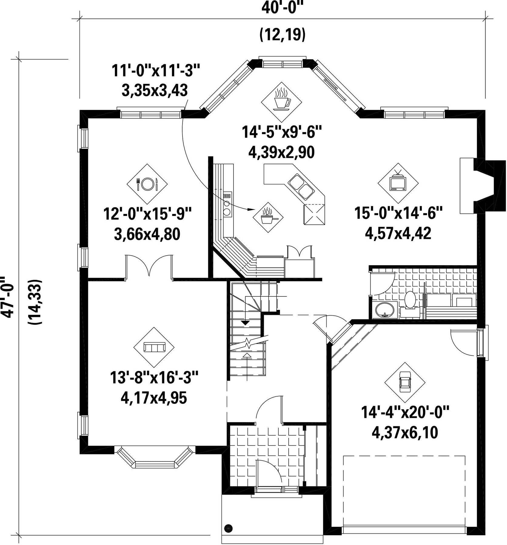
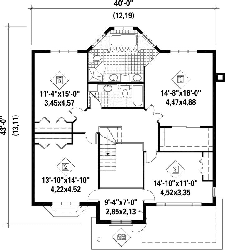
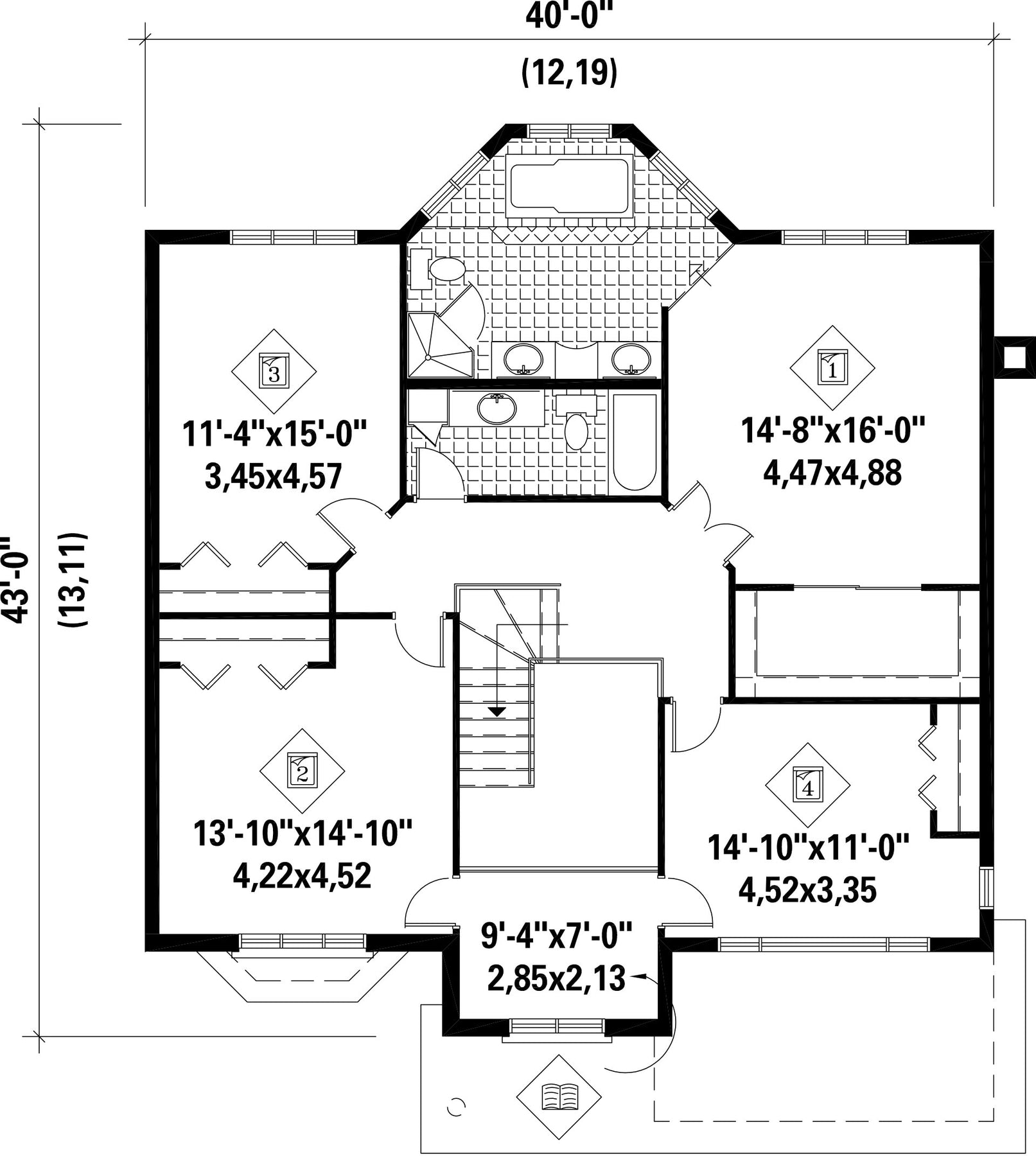
Façade 40 pi Surface habitable totale 2733 pi²
Profondeur 47 piNombre de salles de bain 2
Hauteur 30 pi 4 poNombre de chambres 4
Chambre des maîtres Bain podium + Douche + Lavabo double + Penderie + Portes doubles + Toilettes Chambre des maîtres - commentaires Podium
Surface rez-de-chaussée 1274 pi² Finition extérieure Agrégats + Brique
Surface étage 1459 pi² Type de cuisine Coin repas + Forme en L + Salle à manger + Îlot
Surface garage 317 pi² Garage 1
Mur garage 8 piMur rez-de-chaussée 8 pi
Mur étage 8 piInclinaison toit avant/arrière 7/12
Style d'architecture Européen
Coût de construction 
Montant approximatif équivalent à celui d'un entrepreneur général (région de la Rive-Sud de Montréal) pour une construction clé en main sans terrain ni infrastructures.
567941 $
Façade 40 pi
Surface habitable totale 2733 pi²
Profondeur 47 pi
Nombre de salles de bain 2
Hauteur 30 pi 4 po
Nombre de chambres 4
Chambre des maîtres Bain podium + Douche + Lavabo double + Penderie + Portes doubles + Toilettes
Chambre des maîtres - commentaires Podium
Surface rez-de-chaussée 1274 pi²
Finition extérieure Agrégats + Brique
Surface étage 1459 pi²
Type de cuisine Coin repas + Forme en L + Salle à manger + Îlot
Surface garage 317 pi²
Garage 1
Mur garage 8 pi
Mur rez-de-chaussée 8 pi
Mur étage 8 pi
Inclinaison toit avant/arrière 7/12

Ces plans de maison pourraient également vous intéresser


Vu récemment