04446
04446
04446
04446
04446
04446

Jeux de plans - Sets of plans
Prix régulier$2,340.00
/

Ce site est protégé par hCaptcha, et la Politique de confidentialité et les Conditions de service de hCaptcha s’appliquent.

Description

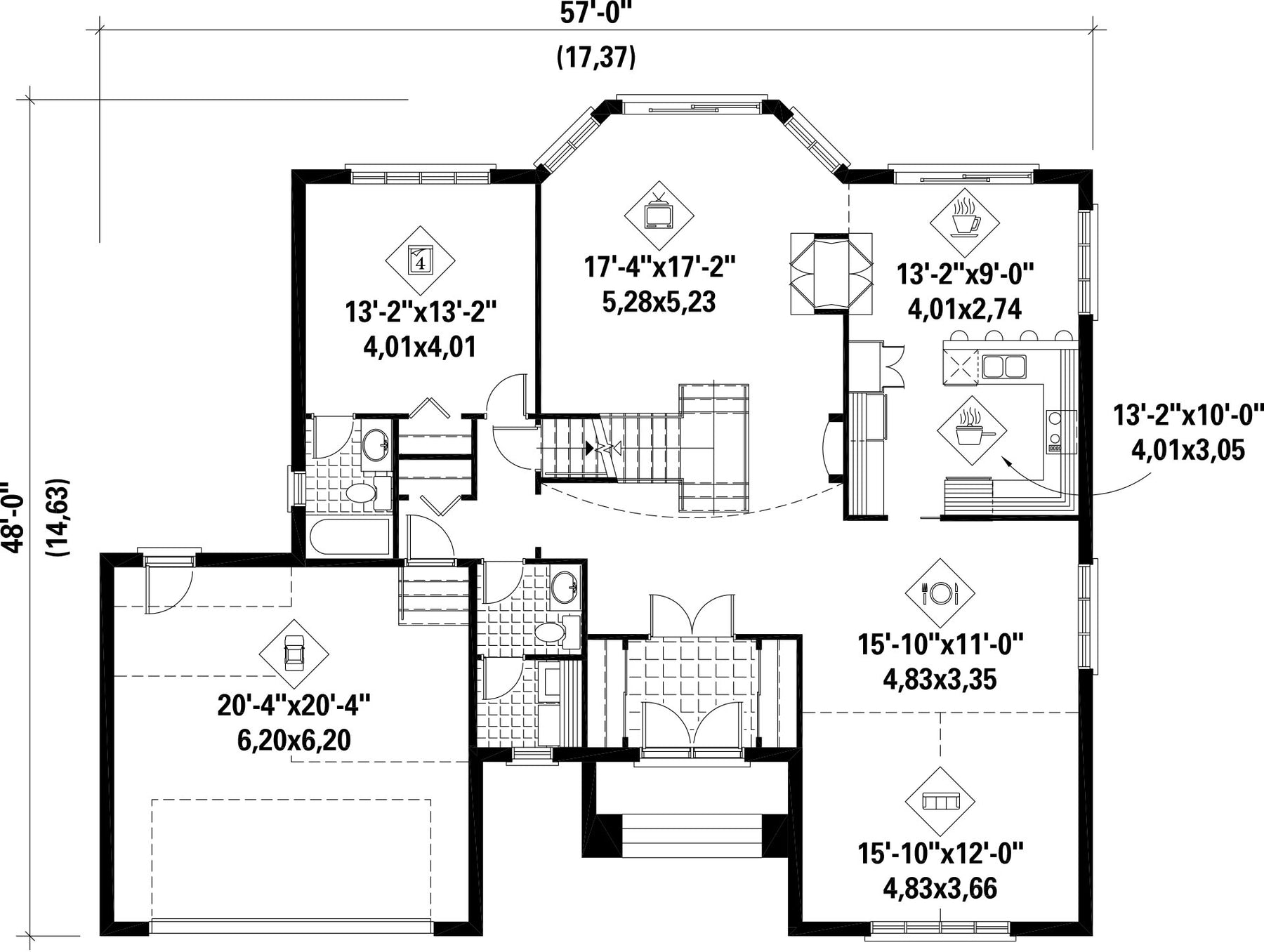
"Plafond cathédrale au salon Foyer sur 2 faces entre la salle familiale et la dînette Grande mezzanine avec coin lecture et balcon sur la façade"

Caractéristiques

Mesures : Impérial

Style d'architecture Européen Coût de construction 
Montant approximatif équivalent à celui d'un entrepreneur général (région de la Rive-Sud de Montréal) pour une construction clé en main sans terrain ni infrastructures.
741272 $
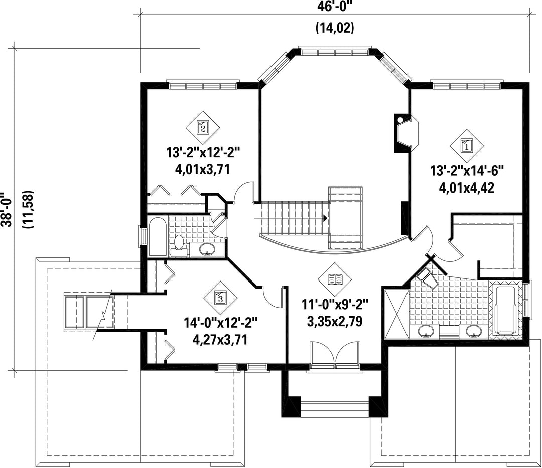
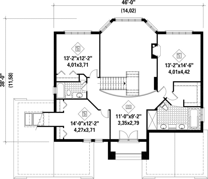
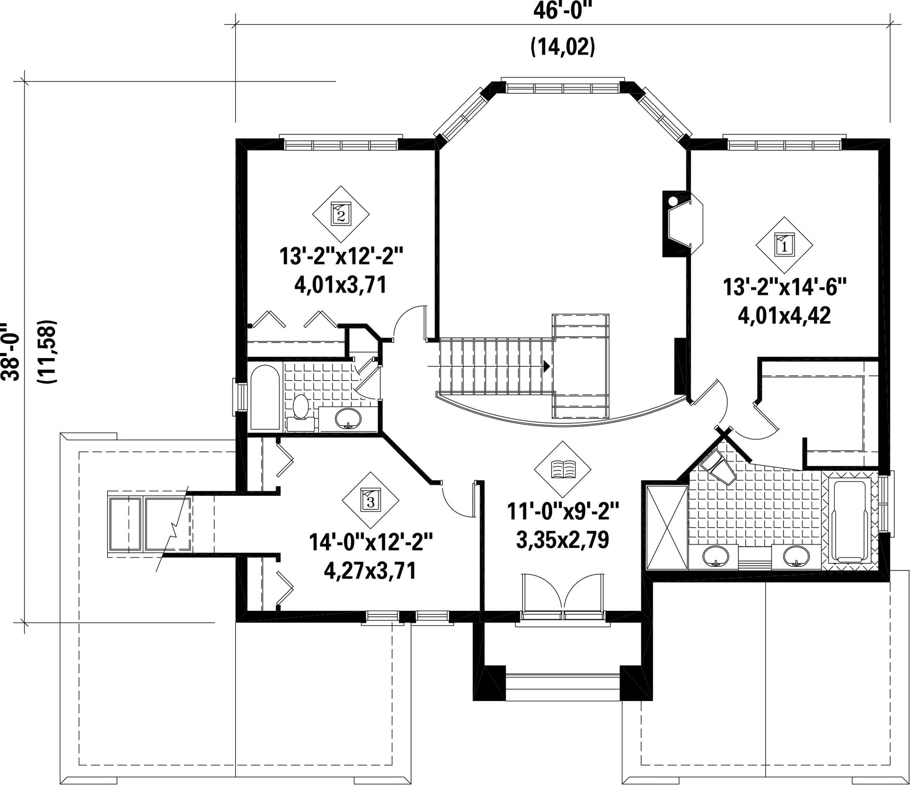
Façade 57 pi Surface habitable totale 3255 pi²
Profondeur 48 piNombre de salles de bain 3
Hauteur 33 piNombre de chambres 4
Chambre des maîtres Bain podium + Douche + Foyer + Lavabo double + Penderie + Toilettes Chambre des maîtres - commentaires Foyer dans la chambre des maîtres
Surface rez-de-chaussée 1682 pi² Finition extérieure Agrégats + Brique
Surface étage 1573 pi² Type de cuisine Coin repas + Comptoir repas + Forme en U + Salle à manger
Surface garage 466 pi² Garage 2
Mur garage 8 piMur rez-de-chaussée 8 pi
Mur étage 8 piInclinaison toit avant/arrière 8/12
Inclinaison toit gauche/droite 12/12
Style d'architecture Européen
Coût de construction 
Montant approximatif équivalent à celui d'un entrepreneur général (région de la Rive-Sud de Montréal) pour une construction clé en main sans terrain ni infrastructures.
741272 $
Façade 57 pi
Surface habitable totale 3255 pi²
Profondeur 48 pi
Nombre de salles de bain 3
Hauteur 33 pi
Nombre de chambres 4
Chambre des maîtres Bain podium + Douche + Foyer + Lavabo double + Penderie + Toilettes
Chambre des maîtres - commentaires Foyer dans la chambre des maîtres
Surface rez-de-chaussée 1682 pi²
Finition extérieure Agrégats + Brique
Surface étage 1573 pi²
Type de cuisine Coin repas + Comptoir repas + Forme en U + Salle à manger
Surface garage 466 pi²
Garage 2
Mur garage 8 pi
Mur rez-de-chaussée 8 pi
Mur étage 8 pi
Inclinaison toit avant/arrière 8/12
Inclinaison toit gauche/droite 12/12

Ces plans de maison pourraient également vous intéresser


Vu récemment