04336
04336
04336
04336
04336
04336

Jeux de plans - Sets of plans
Prix régulier$1,565.00
/

Ce site est protégé par hCaptcha, et la Politique de confidentialité et les Conditions de service de hCaptcha s’appliquent.

Description

"Penderie dans les 3 chambres Salon abaissé"

Caractéristiques

Mesures : Impérial

Style d'architecture Européen Coût de construction 
Montant approximatif équivalent à celui d'un entrepreneur général (région de la Rive-Sud de Montréal) pour une construction clé en main sans terrain ni infrastructures.
373508 $
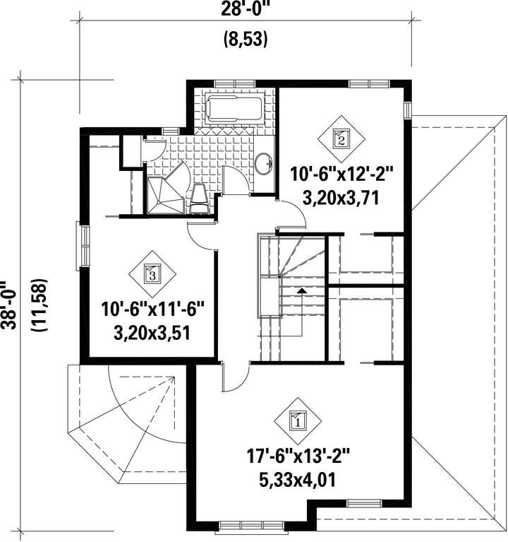
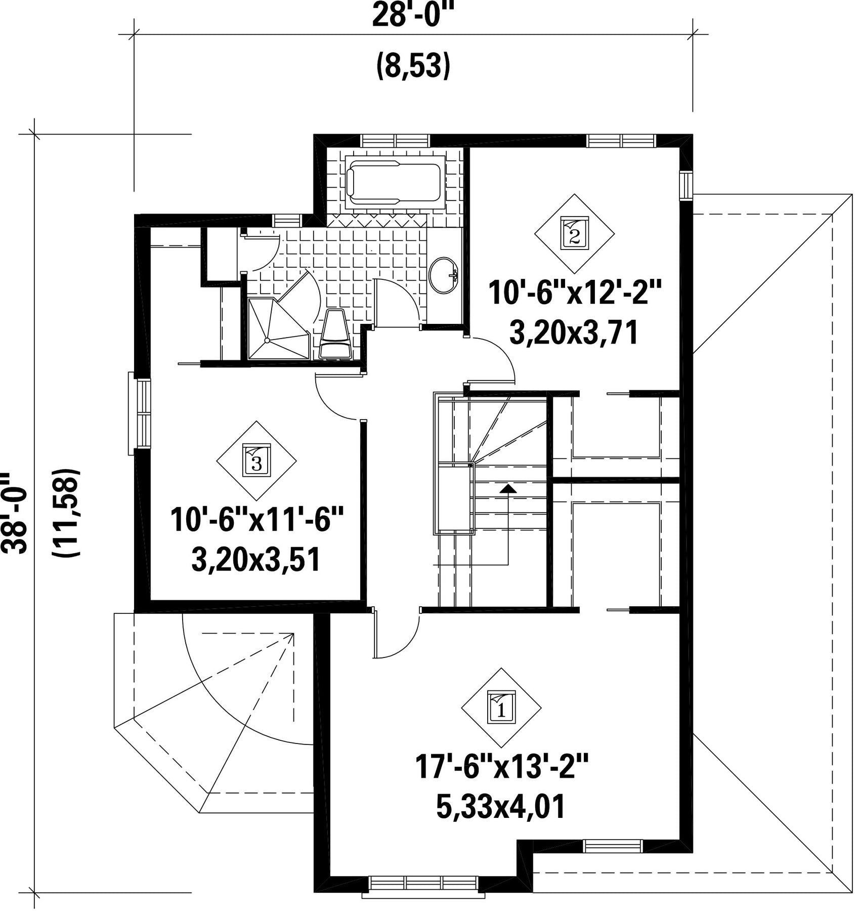
Façade 35 pi Surface habitable totale 1721 pi²
Profondeur 37 piNombre de salles de bain 1
Hauteur 31 pi 8 poNombre de chambres 3
Chambre des maîtres Penderie Chambre des maîtres - commentaires Bien éclairée
Surface rez-de-chaussée 835 pi² Finition extérieure Agrégats + Brique
Surface étage 886 pi² Type de cuisine Coin repas + Comptoir repas + Forme en U
Surface garage 329 pi² Garage 1
Mur garage 8 piMur rez-de-chaussée 8 pi
Mur étage 8 piInclinaison toit avant/arrière 12/12
Inclinaison toit gauche/droite 12/12
Style d'architecture Européen
Coût de construction 
Montant approximatif équivalent à celui d'un entrepreneur général (région de la Rive-Sud de Montréal) pour une construction clé en main sans terrain ni infrastructures.
373508 $
Façade 35 pi
Surface habitable totale 1721 pi²
Profondeur 37 pi
Nombre de salles de bain 1
Hauteur 31 pi 8 po
Nombre de chambres 3
Chambre des maîtres Penderie
Chambre des maîtres - commentaires Bien éclairée
Surface rez-de-chaussée 835 pi²
Finition extérieure Agrégats + Brique
Surface étage 886 pi²
Type de cuisine Coin repas + Comptoir repas + Forme en U
Surface garage 329 pi²
Garage 1
Mur garage 8 pi
Mur rez-de-chaussée 8 pi
Mur étage 8 pi
Inclinaison toit avant/arrière 12/12
Inclinaison toit gauche/droite 12/12

Ces plans de maison pourraient également vous intéresser


Vu récemment