Description
Cette somptueuse résidence de 66 pieds de largeur sur 50 pieds de profondeur possède une superficie habitable de 3 314 pieds carrés.
Au rez-de-chaussée, qui fait 1 912 pieds carrés, on retrouve un salon avec foyer, une vaste cuisine avec coin-repas, une salle à manger, une salle de lecture, une salle familiale avec un autre foyer, une salle d’eau, une salle de lavage et un garage triple de 792 pieds carrés avec un escalier menant au sous-sol.
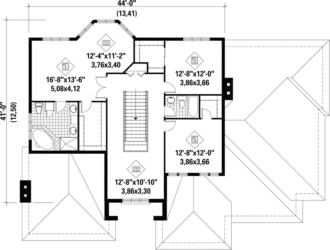
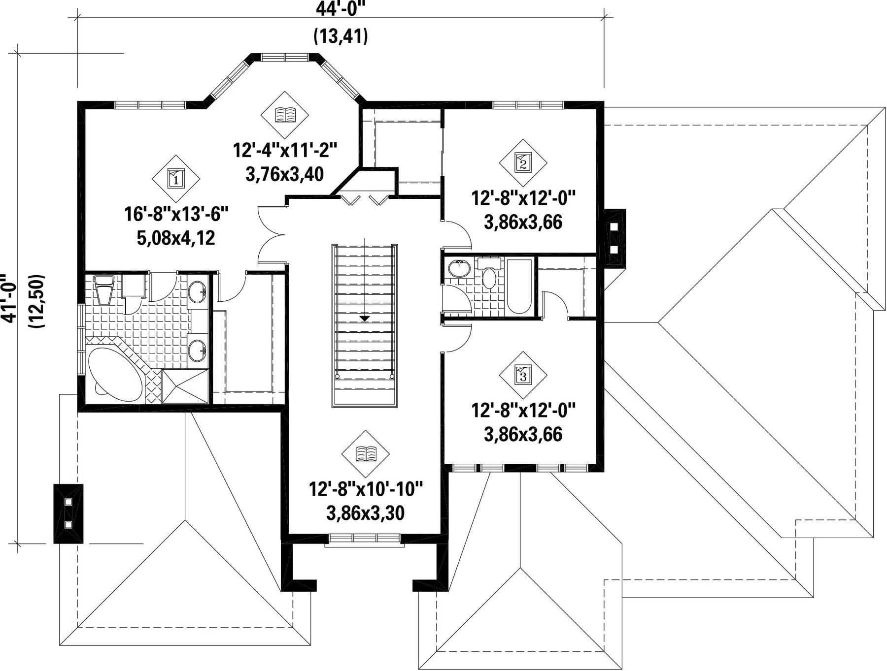
L’étage de 1 402 pieds carrés comprend une salle de lecture, une salle de bains, trois chambres à coucher, dont une immense chambre principale avec salle de bains privée, une penderie et un coin lecture.
Au rez-de-chaussée, qui fait 1 912 pieds carrés, on retrouve un salon avec foyer, une vaste cuisine avec coin-repas, une salle à manger, une salle de lecture, une salle familiale avec un autre foyer, une salle d’eau, une salle de lavage et un garage triple de 792 pieds carrés avec un escalier menant au sous-sol.
L’étage de 1 402 pieds carrés comprend une salle de lecture, une salle de bains, trois chambres à coucher, dont une immense chambre principale avec salle de bains privée, une penderie et un coin lecture.
Caractéristiques
Mesures : Impérial| Style d'architecture | Européen |
Coût de construction
Montant approximatif équivalent à celui d'un entrepreneur général (région de la Rive-Sud de Montréal) pour une construction clé en main sans terrain ni infrastructures.
|
798619 $ |
|---|---|---|---|
| Façade | 66 pi | Surface habitable totale | 3314 pi² |
| Profondeur | 50 pi | Nombre de salles de bain | 3 |
| Hauteur | 32 pi | Nombre de chambres | 3 |
| Chambre des maîtres | Bain podium + Douche + Lavabo double + Penderie + Portes doubles + Toilettes | Chambre des maîtres - commentaires | Grande chambre |
| Surface rez-de-chaussée | 1912 pi² | Finition extérieure | Agrégats + Brique |
| Surface étage | 1402 pi² | Type de cuisine | Coin repas + Forme en U + Salle à manger |
| Surface garage | 792 pi² | Garage | 3 et plus |
| Mur garage | 8 pi | Mur rez-de-chaussée | 9 pi |
| Mur étage | 8 pi | Inclinaison toit avant/arrière | 8/12 |
| Inclinaison toit gauche/droite | 8/12 |
| Style d'architecture | Européen |
|---|---|
|
Coût de construction
Montant approximatif équivalent à celui d'un entrepreneur général (région de la Rive-Sud de Montréal) pour une construction clé en main sans terrain ni infrastructures.
|
798619 $ |
| Façade | 66 pi |
| Surface habitable totale | 3314 pi² |
| Profondeur | 50 pi |
| Nombre de salles de bain | 3 |
| Hauteur | 32 pi |
| Nombre de chambres | 3 |
| Chambre des maîtres | Bain podium + Douche + Lavabo double + Penderie + Portes doubles + Toilettes |
| Chambre des maîtres - commentaires | Grande chambre |
| Surface rez-de-chaussée | 1912 pi² |
| Finition extérieure | Agrégats + Brique |
| Surface étage | 1402 pi² |
| Type de cuisine | Coin repas + Forme en U + Salle à manger |
| Surface garage | 792 pi² |
| Garage | 3 et plus |
| Mur garage | 8 pi |
| Mur rez-de-chaussée | 9 pi |
| Mur étage | 8 pi |
| Inclinaison toit avant/arrière | 8/12 |
| Inclinaison toit gauche/droite | 8/12 |