04211
04211
04211
04211

Jeux de plans - Sets of plans
Prix régulier$1,740.00
/

Ce site est protégé par hCaptcha, et la Politique de confidentialité et les Conditions de service de hCaptcha s’appliquent.

Description

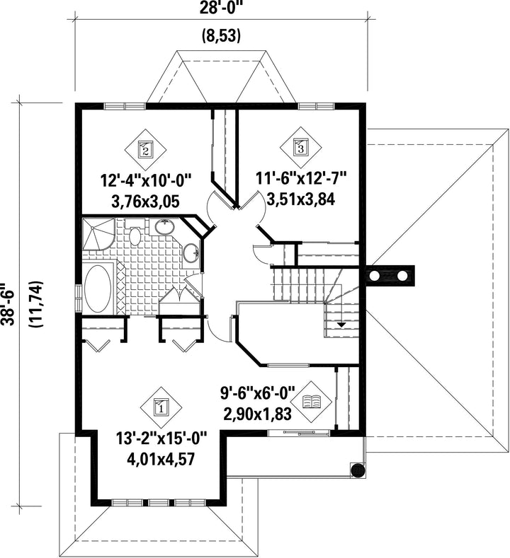
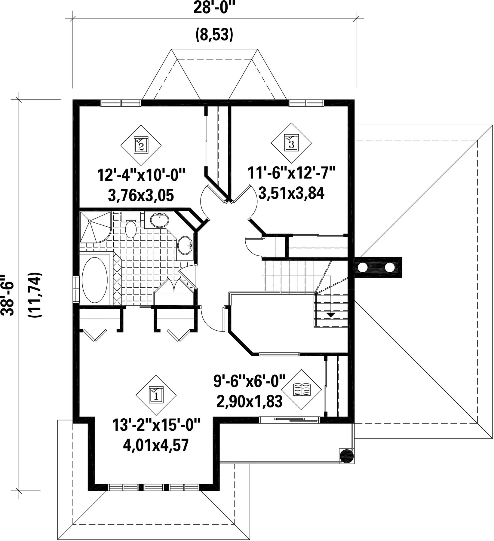
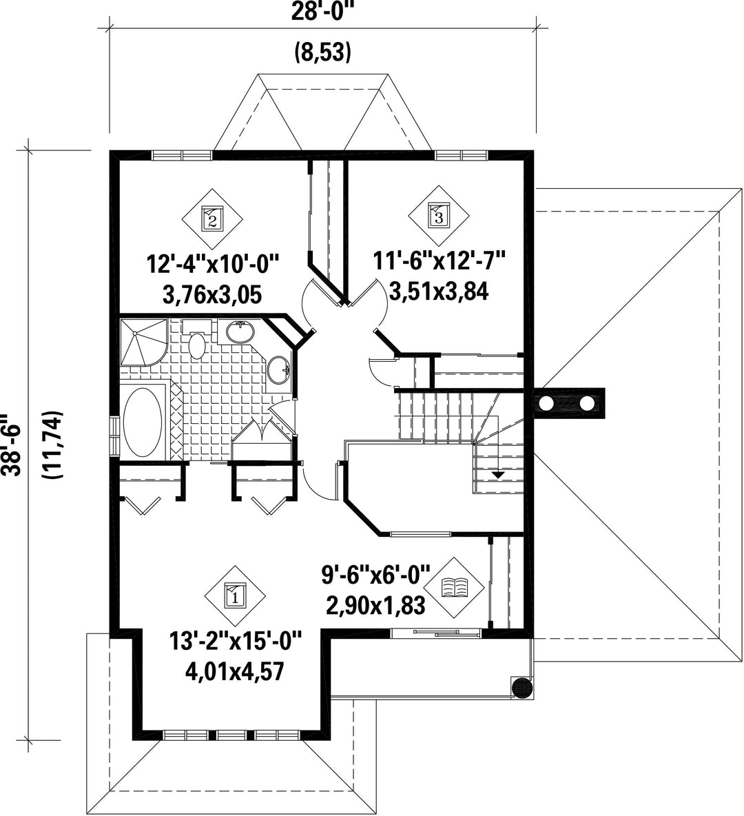
"Vestibule fermé Escalier ouvert sur les 2 étages"

Caractéristiques

Mesures : Impérial

Style d'architecture Européen Coût de construction 
Montant approximatif équivalent à celui d'un entrepreneur général (région de la Rive-Sud de Montréal) pour une construction clé en main sans terrain ni infrastructures.
450965 $
Façade 40 pi Surface habitable totale 2085 pi²
Profondeur 46 piNombre de salles de bain 1
Hauteur 28 pi 6 poNombre de chambres 3
Chambre des maîtres - commentaires Accès à la salle de bain, boudoir avec balcon
Surface rez-de-chaussée 1107 pi² Finition extérieure Agrégats + Aluminium + Brique
Surface étage 978 pi² Type de cuisine Coin repas + Comptoir repas + Salle à manger + Îlot
Surface garage 324 pi² Garage 1
Mur garage 8 piMur rez-de-chaussée 8 pi
Mur étage 8 piInclinaison toit avant/arrière 7/12
Inclinaison toit gauche/droite 7/12
Style d'architecture Européen
Coût de construction 
Montant approximatif équivalent à celui d'un entrepreneur général (région de la Rive-Sud de Montréal) pour une construction clé en main sans terrain ni infrastructures.
450965 $
Façade 40 pi
Surface habitable totale 2085 pi²
Profondeur 46 pi
Nombre de salles de bain 1
Hauteur 28 pi 6 po
Nombre de chambres 3
Chambre des maîtres - commentaires Accès à la salle de bain, boudoir avec balcon
Surface rez-de-chaussée 1107 pi²
Finition extérieure Agrégats + Aluminium + Brique
Surface étage 978 pi²
Type de cuisine Coin repas + Comptoir repas + Salle à manger + Îlot
Surface garage 324 pi²
Garage 1
Mur garage 8 pi
Mur rez-de-chaussée 8 pi
Mur étage 8 pi
Inclinaison toit avant/arrière 7/12
Inclinaison toit gauche/droite 7/12

Ces plans de maison pourraient également vous intéresser


Vu récemment