04064
04064
04064
04064

Jeux de plans - Sets of plans
Prix régulier$1,640.00
/

Ce site est protégé par hCaptcha, et la Politique de confidentialité et les Conditions de service de hCaptcha s’appliquent.

Description

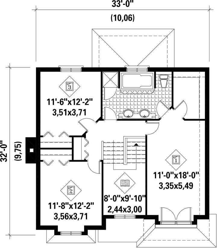
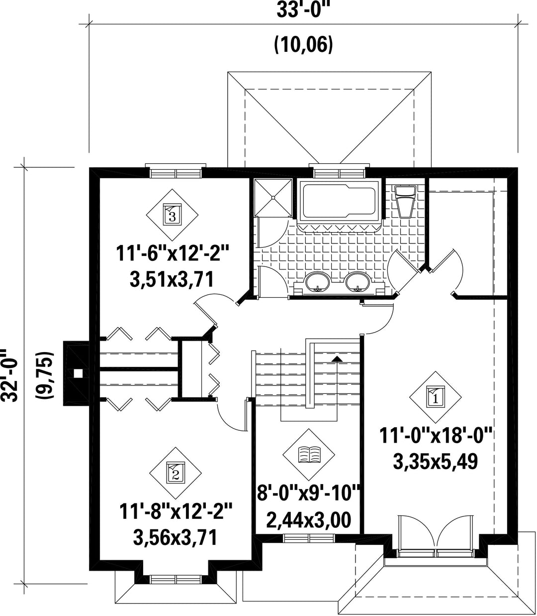
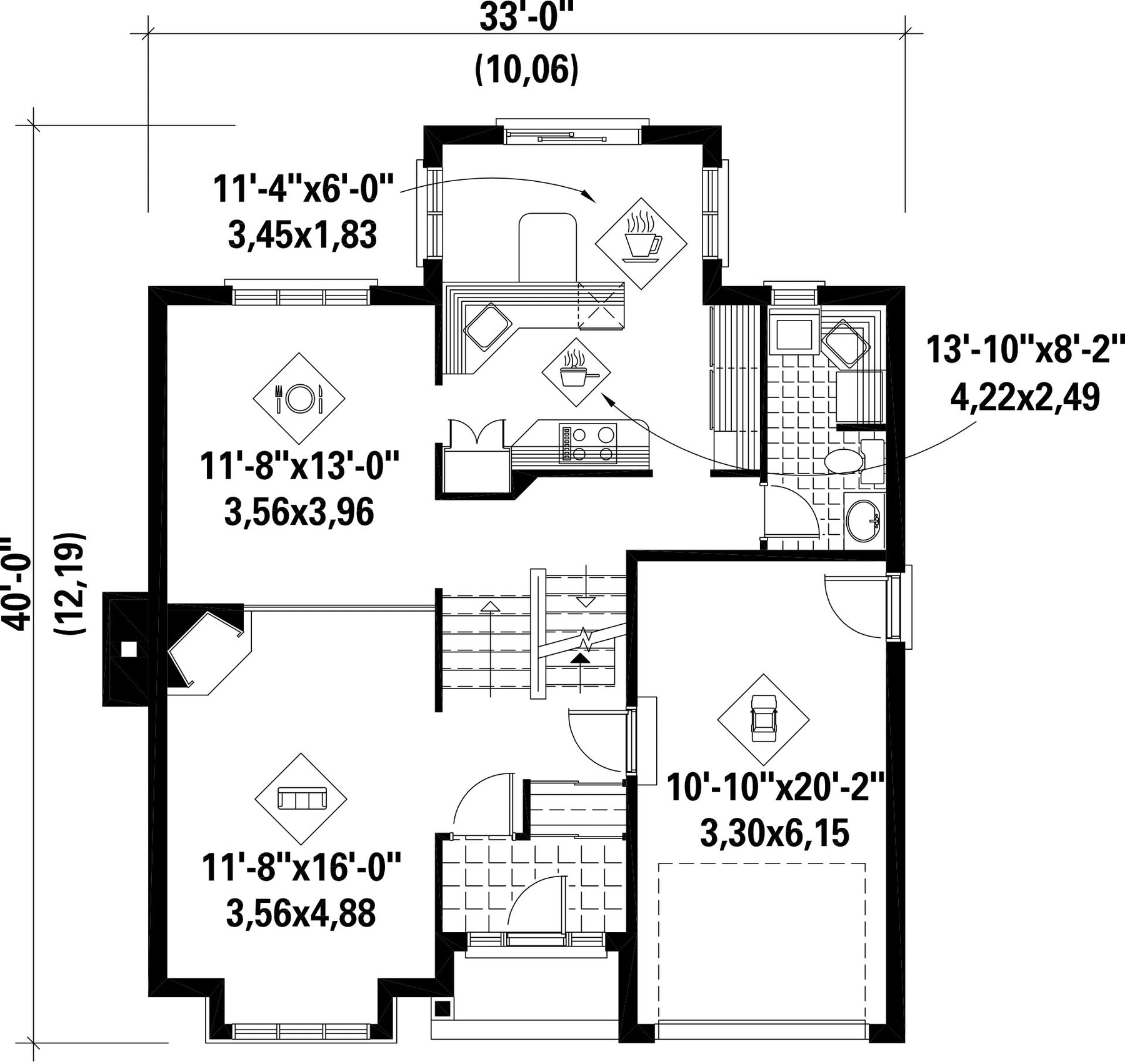
"Salon avec plafond à 11'-6"" de haut Garde-robe à l'entrée accessible sur 2 côtés Belle fenestration sur la façade"

Caractéristiques

Mesures : Impérial

Style d'architecture Européen Coût de construction 
Montant approximatif équivalent à celui d'un entrepreneur général (région de la Rive-Sud de Montréal) pour une construction clé en main sans terrain ni infrastructures.
414773 $
Façade 33 pi Surface habitable totale 1891 pi²
Profondeur 40 piNombre de salles de bain 1
Hauteur 31 pi 10 poNombre de chambres 3
Chambre des maîtres Penderie Chambre des maîtres - commentaires Accès à la salle de bain
Surface rez-de-chaussée 893 pi² Finition extérieure Aluminium + Brique
Surface étage 998 pi² Type de cuisine Coin repas + Comptoir repas + Laboratoire + Salle à manger
Surface garage 249 pi² Garage 1
Mur garage 8 piMur rez-de-chaussée 10 pi
Mur étage 8 piInclinaison toit avant/arrière 7/12
Inclinaison toit gauche/droite 7/12
Style d'architecture Européen
Coût de construction 
Montant approximatif équivalent à celui d'un entrepreneur général (région de la Rive-Sud de Montréal) pour une construction clé en main sans terrain ni infrastructures.
414773 $
Façade 33 pi
Surface habitable totale 1891 pi²
Profondeur 40 pi
Nombre de salles de bain 1
Hauteur 31 pi 10 po
Nombre de chambres 3
Chambre des maîtres Penderie
Chambre des maîtres - commentaires Accès à la salle de bain
Surface rez-de-chaussée 893 pi²
Finition extérieure Aluminium + Brique
Surface étage 998 pi²
Type de cuisine Coin repas + Comptoir repas + Laboratoire + Salle à manger
Surface garage 249 pi²
Garage 1
Mur garage 8 pi
Mur rez-de-chaussée 10 pi
Mur étage 8 pi
Inclinaison toit avant/arrière 7/12
Inclinaison toit gauche/droite 7/12

Ces plans de maison pourraient également vous intéresser


Vu récemment