03304
03304
03304
03304

Jeux de plans - Sets of plans
Prix régulier$1,240.00
/

Ce site est protégé par hCaptcha, et la Politique de confidentialité et les Conditions de service de hCaptcha s’appliquent.

Description

Vestibule fermé

Caractéristiques

Mesures : Impérial

Style d'architecture Européen Coût de construction 
Montant approximatif équivalent à celui d'un entrepreneur général (région de la Rive-Sud de Montréal) pour une construction clé en main sans terrain ni infrastructures.
246671 $
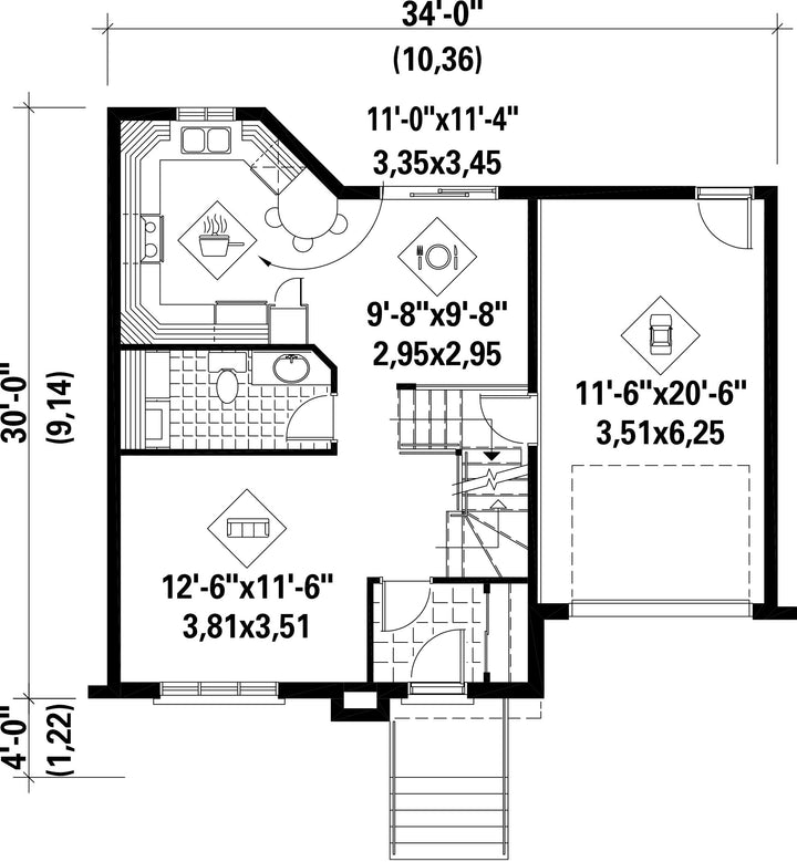
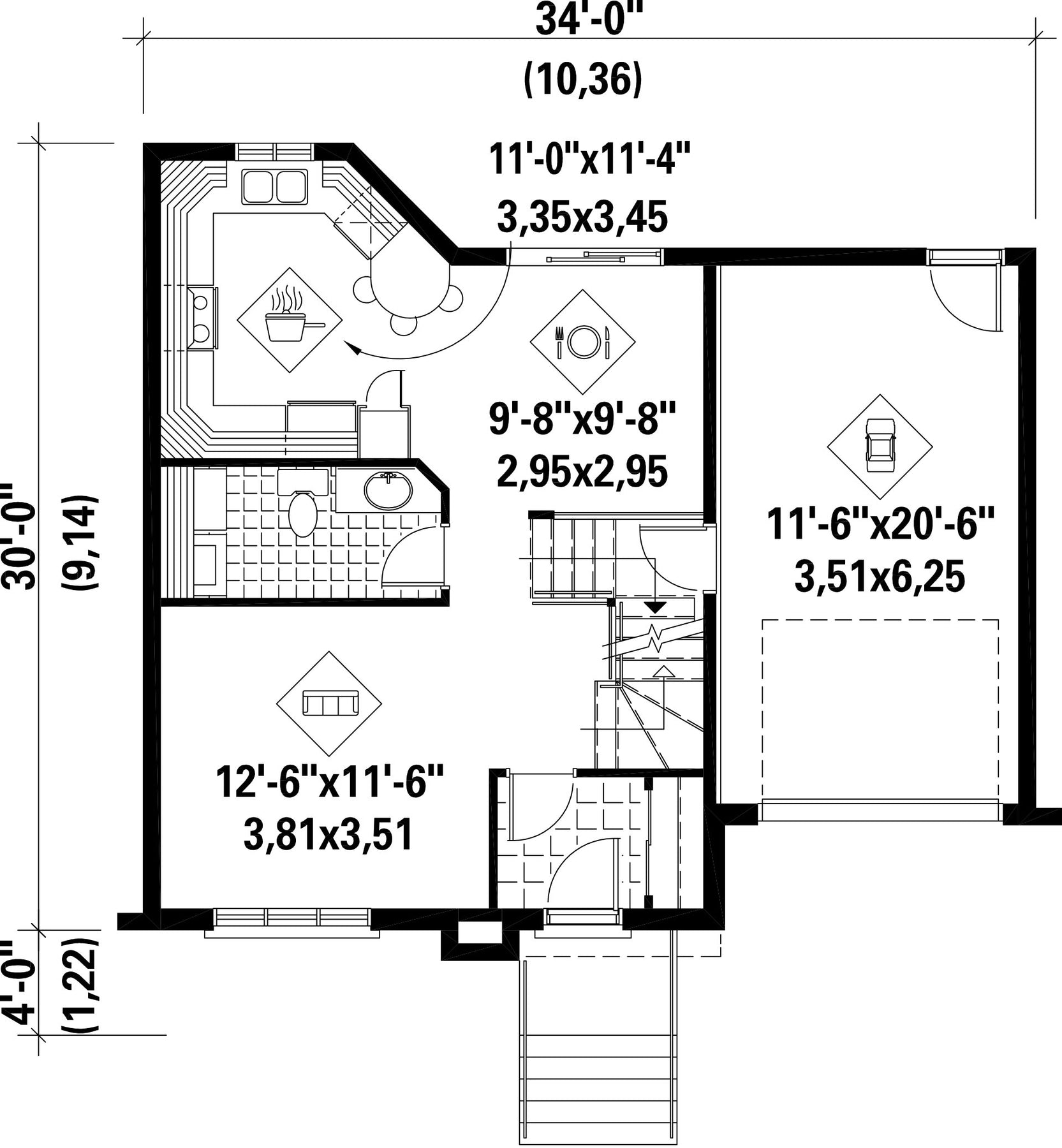
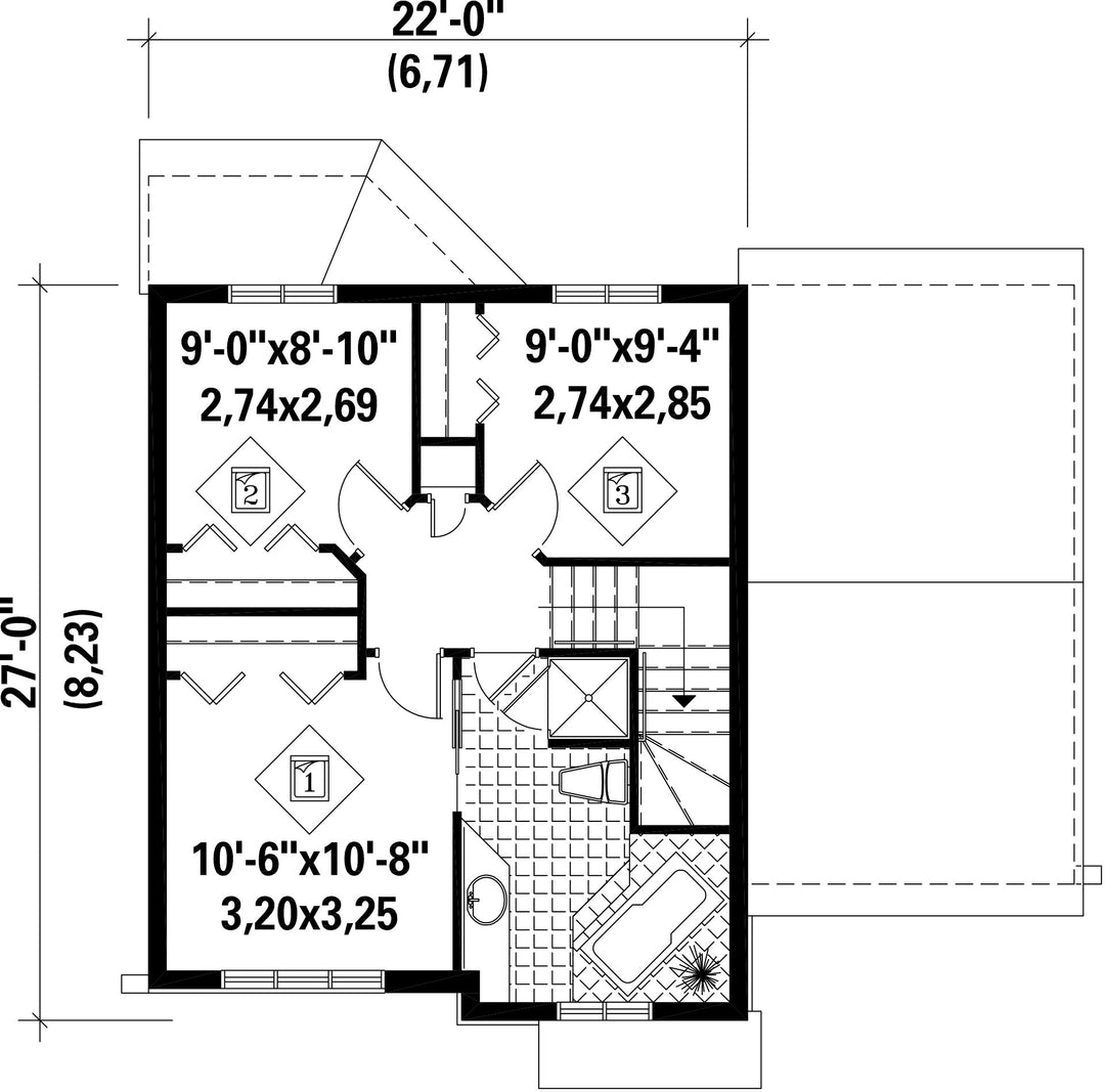
Façade 34 pi Surface habitable totale 1196 pi²
Profondeur 30 piNombre de salles de bain 1
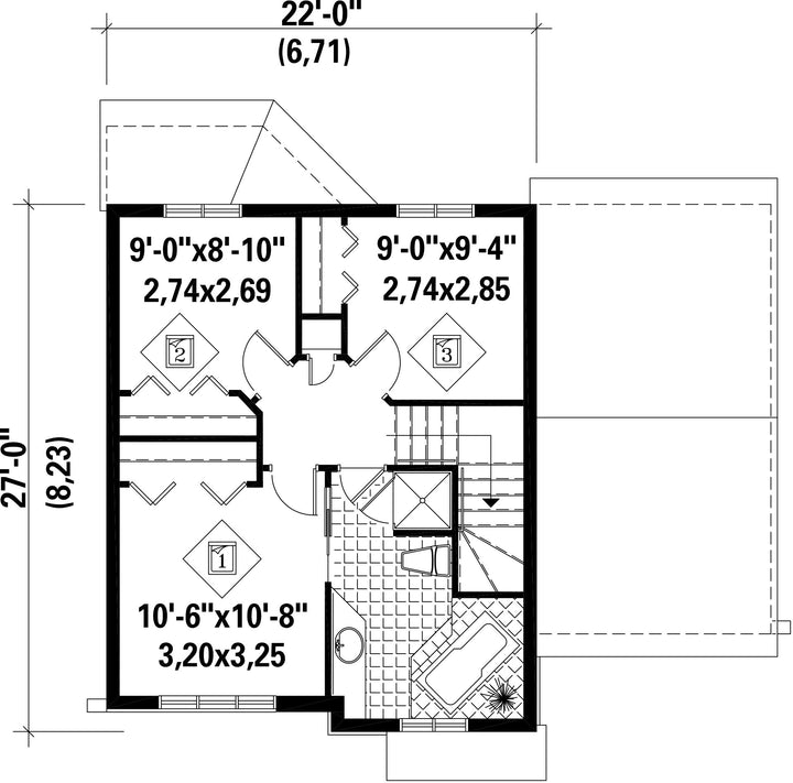
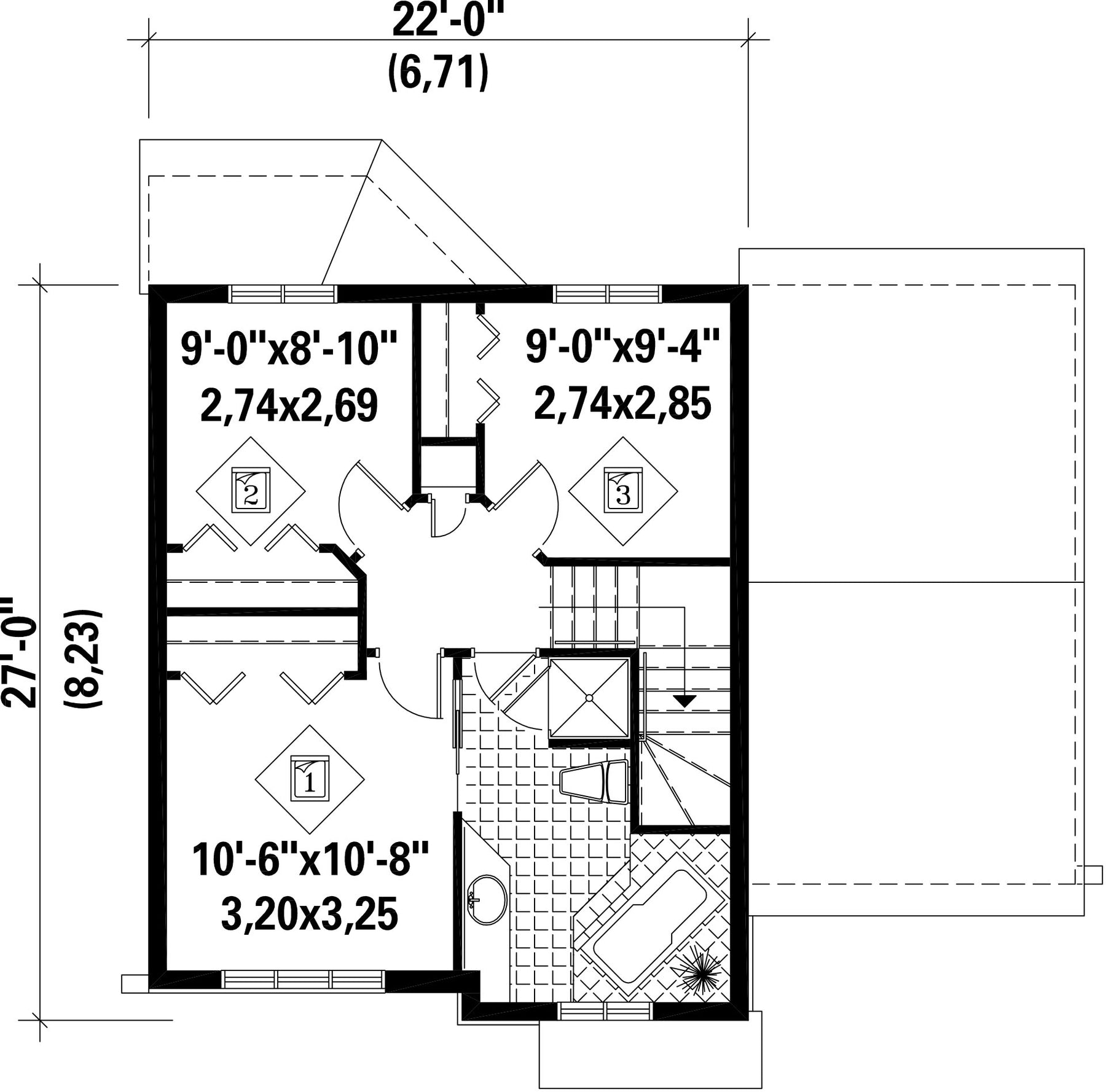
Hauteur 30 piNombre de chambres 3
Chambre des maîtres - commentaires Accès à la salle de bain
Surface rez-de-chaussée 613 pi² Finition extérieure Aluminium + Brique
Surface étage 583 pi² Type de cuisine Comptoir repas + Forme en U + Salle à manger
Surface garage 264 pi² Garage 1
Mur garage 8 piMur rez-de-chaussée 8 pi
Mur étage 8 piInclinaison toit avant/arrière 8/12
Inclinaison toit gauche/droite 8/12
Style d'architecture Européen
Coût de construction 
Montant approximatif équivalent à celui d'un entrepreneur général (région de la Rive-Sud de Montréal) pour une construction clé en main sans terrain ni infrastructures.
246671 $
Façade 34 pi
Surface habitable totale 1196 pi²
Profondeur 30 pi
Nombre de salles de bain 1
Hauteur 30 pi
Nombre de chambres 3
Chambre des maîtres - commentaires Accès à la salle de bain
Surface rez-de-chaussée 613 pi²
Finition extérieure Aluminium + Brique
Surface étage 583 pi²
Type de cuisine Comptoir repas + Forme en U + Salle à manger
Surface garage 264 pi²
Garage 1
Mur garage 8 pi
Mur rez-de-chaussée 8 pi
Mur étage 8 pi
Inclinaison toit avant/arrière 8/12
Inclinaison toit gauche/droite 8/12

Ces plans de maison pourraient également vous intéresser


Vu récemment