01641
01641
01641
01641

Jeux de plans - Sets of plans
Prix régulier$1,035.00
/

Ce site est protégé par hCaptcha, et la Politique de confidentialité et les Conditions de service de hCaptcha s’appliquent.

Description

"Petite maison à étage avec foyer au salon Comptoir lunch dans la cuisine Laveuse et sécheuse au rez-de-chaussée"

Caractéristiques

Mesures : Impérial

Style d'architecture Européen Coût de construction 
Montant approximatif équivalent à celui d'un entrepreneur général (région de la Rive-Sud de Montréal) pour une construction clé en main sans terrain ni infrastructures.
250402 $
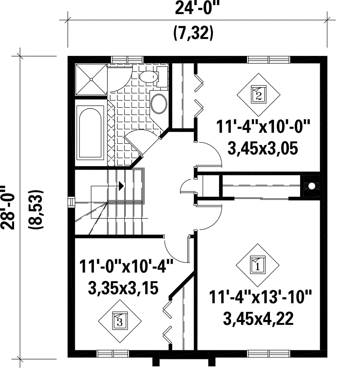
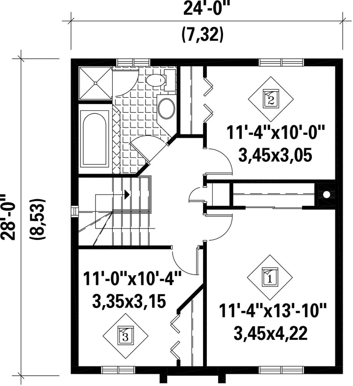
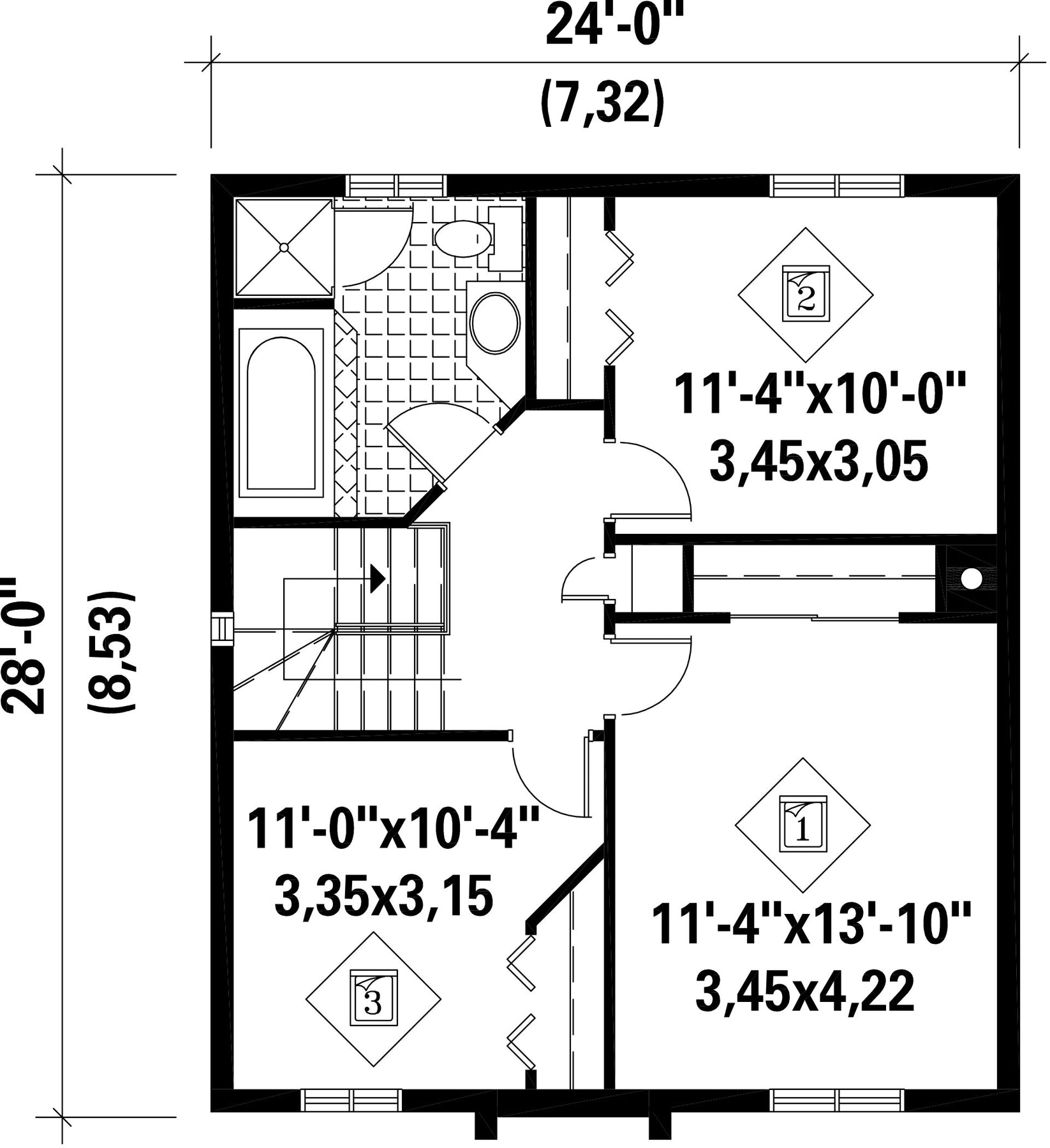
Façade 24 pi Surface habitable totale 1333 pi²
Profondeur 28 piNombre de salles de bain 1
Hauteur 25 pi 3 poNombre de chambres 3
Chambre des maîtres - commentaires ---
Surface rez-de-chaussée 661 pi² Finition extérieure Aluminium + Brique
Surface étage 672 pi² Type de cuisine Comptoir repas + Forme en U + Salle à manger
Garage 0
Mur rez-de-chaussée 8 pi
Mur étage 8 piInclinaison toit avant/arrière 5/12
Inclinaison toit gauche/droite 12/12
Style d'architecture Européen
Coût de construction 
Montant approximatif équivalent à celui d'un entrepreneur général (région de la Rive-Sud de Montréal) pour une construction clé en main sans terrain ni infrastructures.
250402 $
Façade 24 pi
Surface habitable totale 1333 pi²
Profondeur 28 pi
Nombre de salles de bain 1
Hauteur 25 pi 3 po
Nombre de chambres 3
Chambre des maîtres - commentaires ---
Surface rez-de-chaussée 661 pi²
Finition extérieure Aluminium + Brique
Surface étage 672 pi²
Type de cuisine Comptoir repas + Forme en U + Salle à manger
Garage 0
Mur rez-de-chaussée 8 pi
Mur étage 8 pi
Inclinaison toit avant/arrière 5/12
Inclinaison toit gauche/droite 12/12

Ces plans de maison pourraient également vous intéresser


Vu récemment