01208
01208
01208
01208

Jeux de plans - Sets of plans
Prix régulier$1,640.00
/

Ce site est protégé par hCaptcha, et la Politique de confidentialité et les Conditions de service de hCaptcha s’appliquent.

Description

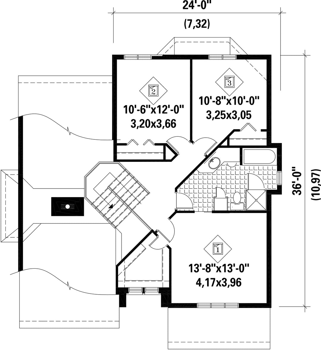
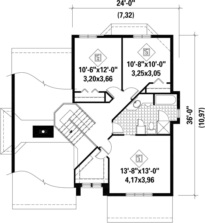
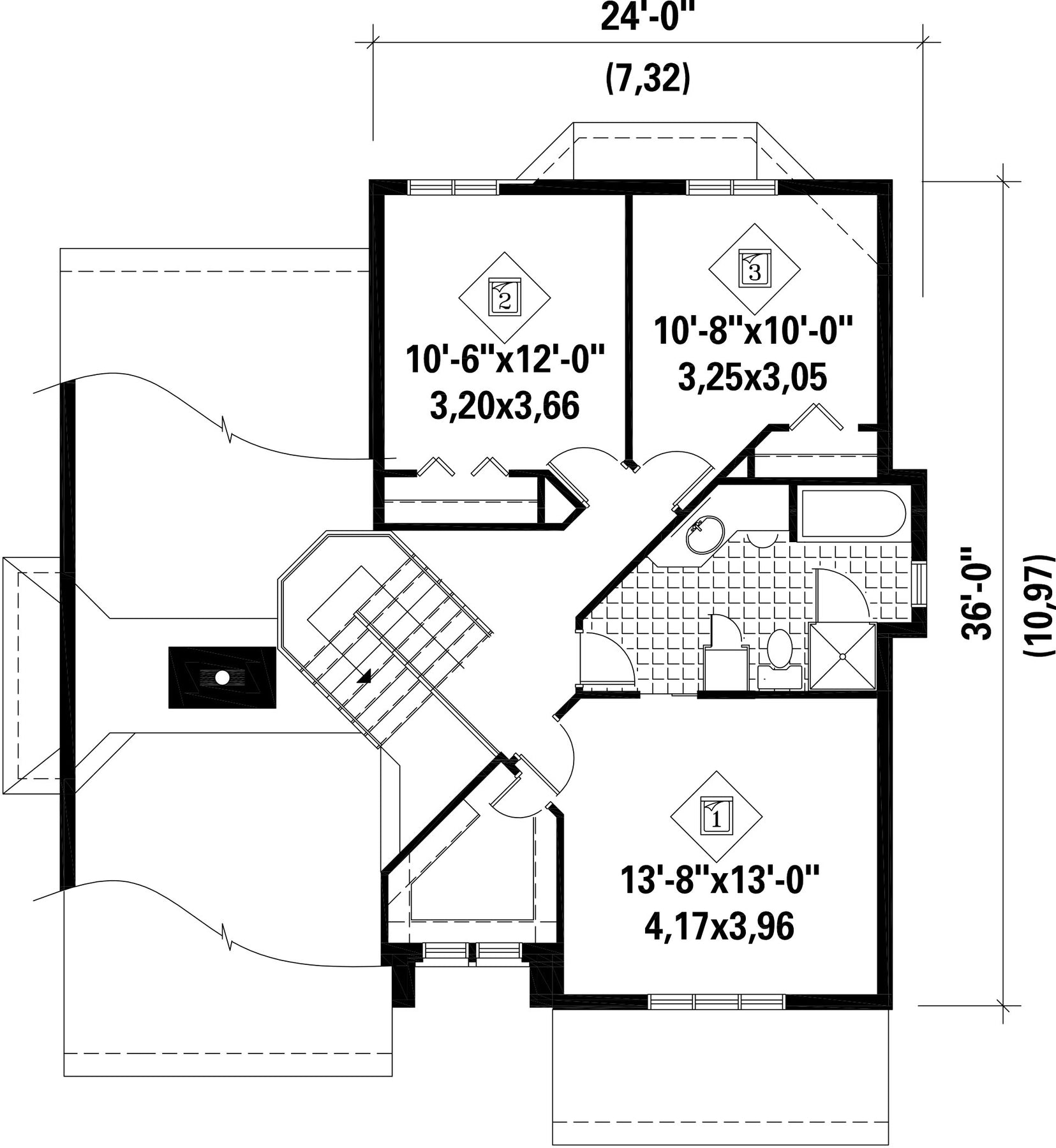
Plusieurs niveaux de planchers

Caractéristiques

Mesures : Impérial

Style d'architecture Européen Coût de construction 
Montant approximatif équivalent à celui d'un entrepreneur général (région de la Rive-Sud de Montréal) pour une construction clé en main sans terrain ni infrastructures.
399989 $
Façade 38 pi Surface habitable totale 1869 pi²
Profondeur 43 piNombre de salles de bain 2
Hauteur 29 pi 6 poNombre de chambres 3
Chambre des maîtres Penderie Chambre des maîtres - commentaires ACCÈS À LA SALLE DE BAIN
Surface rez-de-chaussée 1063 pi² Finition extérieure Aluminium + Bois + Brique
Surface étage 806 pi² Type de cuisine Comptoir repas + Forme en U + Salle à manger
Surface garage 300 pi² Garage 1
Mur garage 8 piMur rez-de-chaussée 10 pi
Mur étage 8 piInclinaison toit avant/arrière 6/12
Inclinaison toit gauche/droite 10/12
Style d'architecture Européen
Coût de construction 
Montant approximatif équivalent à celui d'un entrepreneur général (région de la Rive-Sud de Montréal) pour une construction clé en main sans terrain ni infrastructures.
399989 $
Façade 38 pi
Surface habitable totale 1869 pi²
Profondeur 43 pi
Nombre de salles de bain 2
Hauteur 29 pi 6 po
Nombre de chambres 3
Chambre des maîtres Penderie
Chambre des maîtres - commentaires ACCÈS À LA SALLE DE BAIN
Surface rez-de-chaussée 1063 pi²
Finition extérieure Aluminium + Bois + Brique
Surface étage 806 pi²
Type de cuisine Comptoir repas + Forme en U + Salle à manger
Surface garage 300 pi²
Garage 1
Mur garage 8 pi
Mur rez-de-chaussée 10 pi
Mur étage 8 pi
Inclinaison toit avant/arrière 6/12
Inclinaison toit gauche/droite 10/12

Ces plans de maison pourraient également vous intéresser


Vu récemment