01038
01038
01038
01038

Jeux de plans - Sets of plans
Prix régulier$1,565.00
/

Ce site est protégé par hCaptcha, et la Politique de confidentialité et les Conditions de service de hCaptcha s’appliquent.

Description

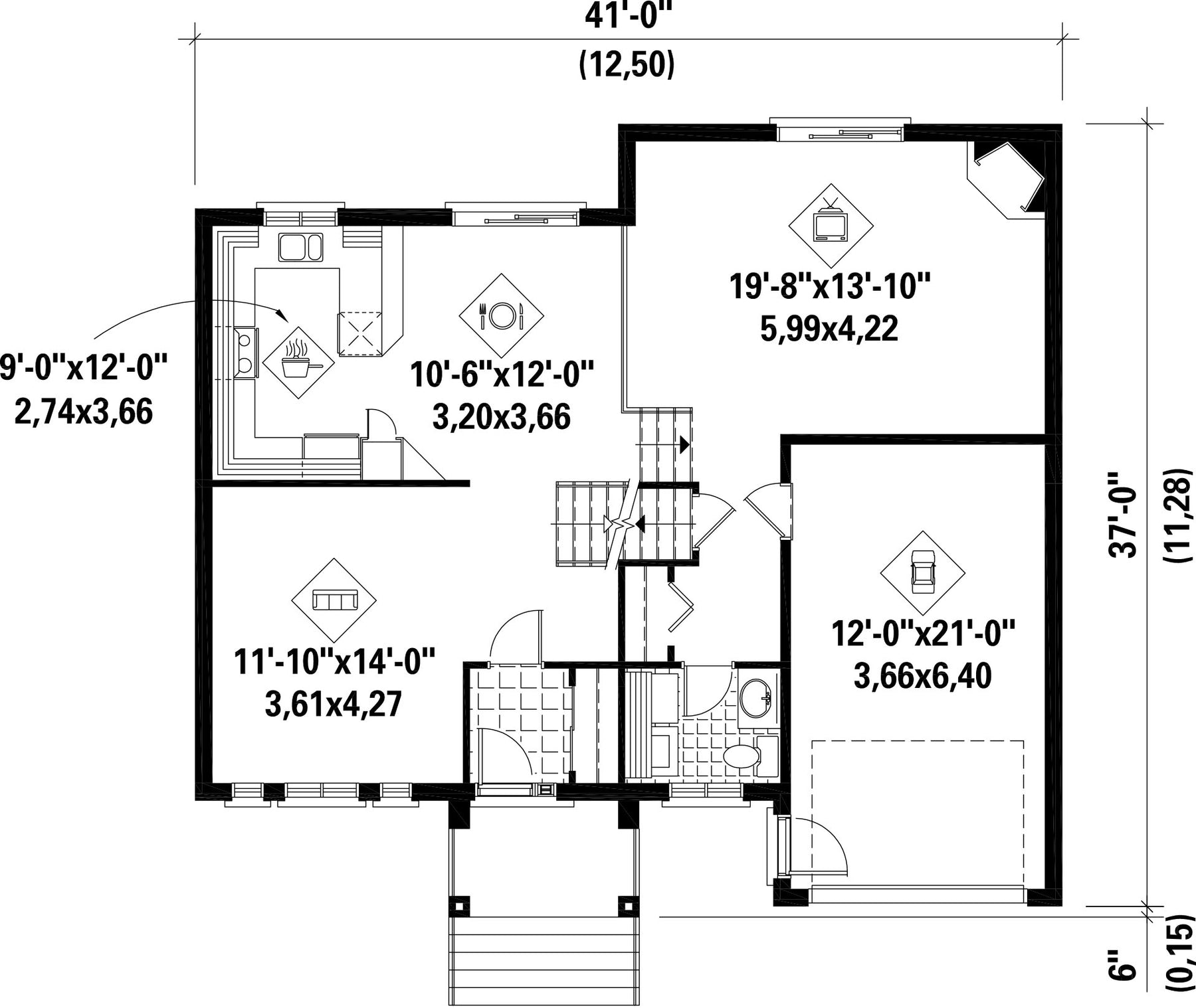
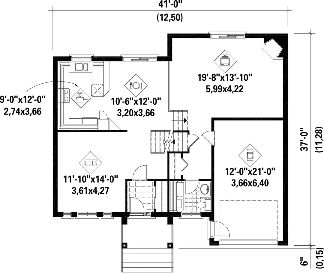
Salon séparé de la cuisine

Caractéristiques

Mesures : Impérial

Style d'architecture Européen Coût de construction 
Montant approximatif équivalent à celui d'un entrepreneur général (région de la Rive-Sud de Montréal) pour une construction clé en main sans terrain ni infrastructures.
372989 $
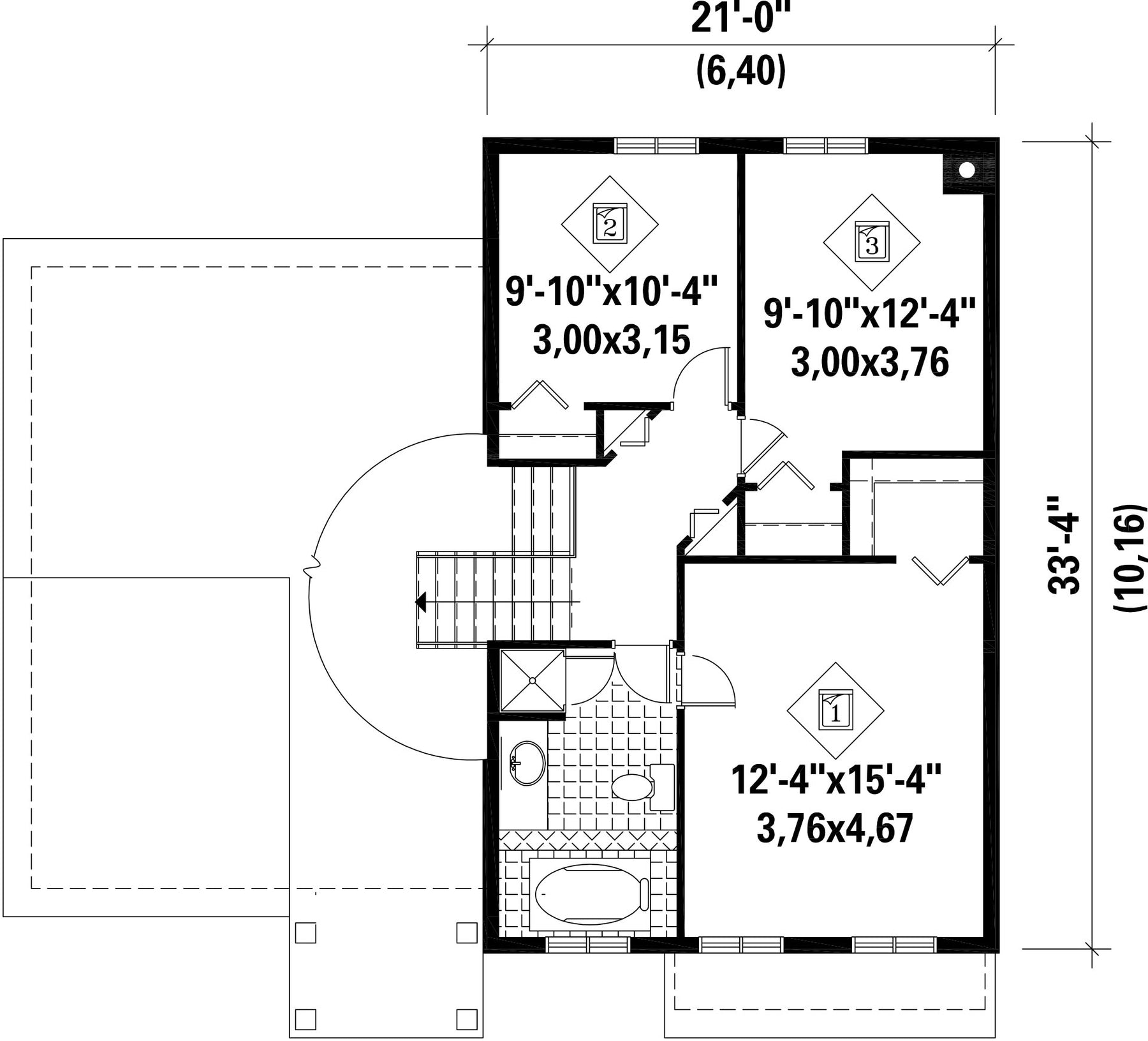
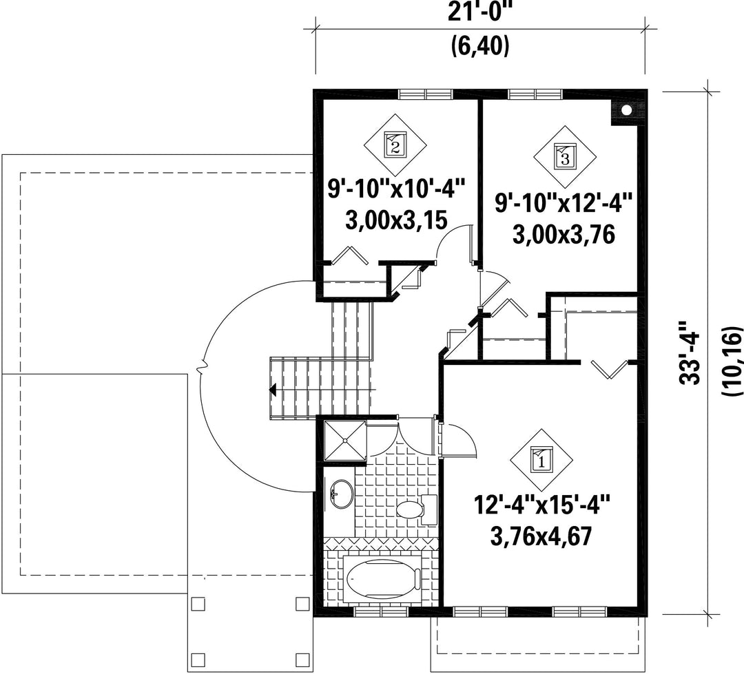
Façade 41 pi Surface habitable totale 1716 pi²
Profondeur 37 piNombre de salles de bain 2
Hauteur 27 pi 3 poNombre de chambres 3
Chambre des maîtres - commentaires ACCÈS À LA SALLE DE BAIN
Surface rez-de-chaussée 1016 pi² Finition extérieure Aluminium + Brique
Surface étage 700 pi² Type de cuisine Comptoir repas + Salle à manger
Surface garage 284 pi² Garage 1
Mur garage 8 piMur rez-de-chaussée 8 pi
Mur étage 8 piInclinaison toit avant/arrière 6/12
Style d'architecture Européen
Coût de construction 
Montant approximatif équivalent à celui d'un entrepreneur général (région de la Rive-Sud de Montréal) pour une construction clé en main sans terrain ni infrastructures.
372989 $
Façade 41 pi
Surface habitable totale 1716 pi²
Profondeur 37 pi
Nombre de salles de bain 2
Hauteur 27 pi 3 po
Nombre de chambres 3
Chambre des maîtres - commentaires ACCÈS À LA SALLE DE BAIN
Surface rez-de-chaussée 1016 pi²
Finition extérieure Aluminium + Brique
Surface étage 700 pi²
Type de cuisine Comptoir repas + Salle à manger
Surface garage 284 pi²
Garage 1
Mur garage 8 pi
Mur rez-de-chaussée 8 pi
Mur étage 8 pi
Inclinaison toit avant/arrière 6/12

Ces plans de maison pourraient également vous intéresser


Vu récemment